Prodej bytu 3+KK 71 m²
Praha, Na výběžku
vč. kompletních služeb RK




















Popis
Nabízíme k prodeji byt 3+KK s plochou přes 67 m2 s balkonem v 2.NP novostavby kolaudované v roce 2024 – jedná se o krásné bydlení nebo také skvělou investici s klidné části Prahy 9 - Vysočan
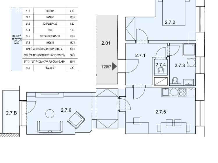
Ideálně řešená dispozice a plocha bytu je účelně rozdělena do jednotlivých místností, kde nechybí hned 2 ložnice s vlastní lodžií či obývací pokoj s plně vybavenou kuchyňskou linkou vč. spotřebičů. V koupelně naleznete dostatek místa pro pračku a sušičku, sprchový kout, WC a bidet a k dispozici je také další oddělená toaleta. Orientace oken na východ a západ dodávají bytu dostatečný přísun denního světla.
V suterénu domu budete mít i zabezpečenou sklepní kóji, kam lze umístit sezónní věci.
Již při první prohlídce zjistíte, že se na provedení rozhodně nešetřilo. Celý dům byl dokončen ve vysokém standardu a ať se svým pohledem při prohlídce zaměříte na dům celkově nebo na detaily bytu samotného, zjistíte, že si developer opravdu dal záležet.
Výhodou této lokality je velmi snadná dostupnost všech služeb, metro 3 minuty od domu a zcela jistě oceníte i možnost parkovat přímo před domem bez nutnosti investice do parkovacího stání. Existuje jen málo míst, kde tuto kombinaci v Praze naleznete.
Díky dispozičnímu řešení je tento byt vhodnější především pro mladé páry, popřípadě rodinu nevyžadující zrovna obrovský obývací pokoj. Detaily naleznete v přiloženém půdorysu.
Přijďte se podívat sami na svůj nový domov. Budu se těšit na viděnou.
Lokalita
Ideálně řešená dispozice a plocha bytu je účelně rozdělena do jednotlivých místností, kde nechybí hned 2 ložnice s vlastní lodžií či obývací pokoj s plně vybavenou kuchyňskou linkou vč. spotřebičů. V koupelně naleznete dostatek místa pro pračku a sušičku, sprchový kout, WC a bidet a k dispozici je také další oddělená toaleta. Orientace oken na východ a západ dodávají bytu dostatečný přísun denního světla.
V suterénu domu budete mít i zabezpečenou sklepní kóji, kam lze umístit sezónní věci.
Již při první prohlídce zjistíte, že se na provedení rozhodně nešetřilo. Celý dům byl dokončen ve vysokém standardu a ať se svým pohledem při prohlídce zaměříte na dům celkově nebo na detaily bytu samotného, zjistíte, že si developer opravdu dal záležet.
Výhodou této lokality je velmi snadná dostupnost všech služeb, metro 3 minuty od domu a zcela jistě oceníte i možnost parkovat přímo před domem bez nutnosti investice do parkovacího stání. Existuje jen málo míst, kde tuto kombinaci v Praze naleznete.
Díky dispozičnímu řešení je tento byt vhodnější především pro mladé páry, popřípadě rodinu nevyžadující zrovna obrovský obývací pokoj. Detaily naleznete v přiloženém půdorysu.
Přijďte se podívat sami na svůj nový domov. Budu se těšit na viděnou.
Lokalita
Další parametry
- vodovod
- ústřední dálkové
- vlak, dálnice, silnice, mhd, bus
- internet
- 2
- 3 m2
- plynovod
- veřejná kanalizace
- 5
- č. 264/2020 Sb.
- 3 m2
- 158 m2
- 3 m2
- 3
- Novostavba
- Cihla
- C - Úsporná
- osobní
Na tomto webu zpracováváme cookies potřebné pro jeho fungování a analytiku.