Оренда квартири 2+KK 54 m²
Beroun, Nepilova 2111

















Опис
Nabízíme Vám k pronájmu velmi příjemný, úplně nový byt 2+kk v Berouně, který je součástí čerstvě dokončené novostavby s moderní osobitou architekturou.
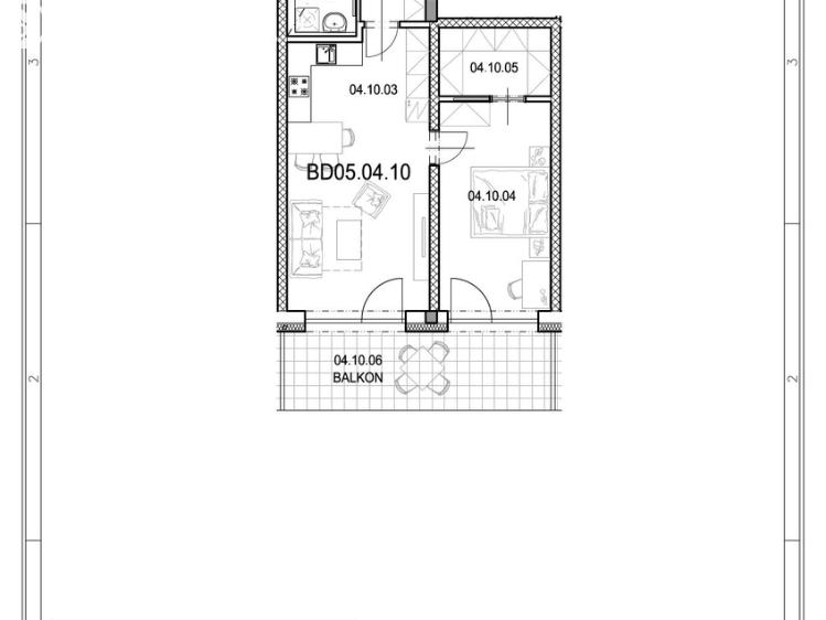
Byt s užitnou plochou 54,8 m² se nachází ve 4. NP z pěti a má velmi praktické uspořádání. Po vstupu vás přivítá chodba, ze které se dostanete do koupelny se sprchovým koutem a WC. Hlavní obytný prostor tvoří světlý obývací pokoj s kuchyňským koutem, na který navazuje ložnice se šatnou. Šatna je osazena posuvnými dveřmi. Z obou pokojů je možné vstoupit přes francouzská okna na velký balkon (13,5 m²) orientovaný na jih – takže si tu užijete spoustu denního světla.
Byt se právě dokončuje tak, aby byl připravený pro svého prvního nájemce. Budou zde instalována moderní světla a nová rohová kuchyňská linka podle vizualizace – v bílé matné barvě, čistá, nadčasová a s velkými úložnými prostory. Samozřejmostí jsou vestavěné spotřebiče: myčka, indukční deska, elektrická trouba i lednice.
V ceně nájmu je zahrnuto garážové parkovací stání v suterénu domu, kam se pohodlně dostanete výtahem, a také sklepní kóje umístěná přímo na patře – vše máte hezky po ruce.
Dům je navržený s důrazem na úsporný provoz a komfort – má rekuperaci, je nízkoenergetický a na střeše jsou fotovoltaické panely. Díky tomu se tu bydlí nejen příjemně, ale i úsporně.
Lokalita Beroun - Máchovna, Nepilova ulice je v blízkosti veškeré občanské vybavenosti. V Praze jste po dálnici za 20 minut, můžete využít přímé spoje do Prahy jak autobusem, tak vlakem. Majitel upřednostní zájemce nekuřáky, bez domácích mazlíčků.
Pokud hledáte moderní, světlé bydlení s balkonem, parkováním a bez starostí v novém domě, tohle je byt, kde se budete cítit opravdu dobře. Dopřejte si bydlet jako první nájemníci.
Byt s užitnou plochou 54,8 m² se nachází ve 4. NP z pěti a má velmi praktické uspořádání. Po vstupu vás přivítá chodba, ze které se dostanete do koupelny se sprchovým koutem a WC. Hlavní obytný prostor tvoří světlý obývací pokoj s kuchyňským koutem, na který navazuje ložnice se šatnou. Šatna je osazena posuvnými dveřmi. Z obou pokojů je možné vstoupit přes francouzská okna na velký balkon (13,5 m²) orientovaný na jih – takže si tu užijete spoustu denního světla.
Byt se právě dokončuje tak, aby byl připravený pro svého prvního nájemce. Budou zde instalována moderní světla a nová rohová kuchyňská linka podle vizualizace – v bílé matné barvě, čistá, nadčasová a s velkými úložnými prostory. Samozřejmostí jsou vestavěné spotřebiče: myčka, indukční deska, elektrická trouba i lednice.
V ceně nájmu je zahrnuto garážové parkovací stání v suterénu domu, kam se pohodlně dostanete výtahem, a také sklepní kóje umístěná přímo na patře – vše máte hezky po ruce.
Dům je navržený s důrazem na úsporný provoz a komfort – má rekuperaci, je nízkoenergetický a na střeše jsou fotovoltaické panely. Díky tomu se tu bydlí nejen příjemně, ale i úsporně.
Lokalita Beroun - Máchovna, Nepilova ulice je v blízkosti veškeré občanské vybavenosti. V Praze jste po dálnici za 20 minut, můžete využít přímé spoje do Prahy jak autobusem, tak vlakem. Majitel upřednostní zájemce nekuřáky, bez domácích mazlíčků.
Pokud hledáte moderní, světlé bydlení s balkonem, parkováním a bez starostí v novém domě, tohle je byt, kde se budete cítit opravdu dobře. Dopřejte si bydlet jako první nájemníci.
Інші параметри
- далеководопровід
- радіатори
- централізоване опалення
- потяг, автострада, mhd, автобус
- асфальтова
- публічна каналізація
- 1
- 5
- č. 264/2020 Sb.
- 2 m2
- 13 m2
- 4
- Новобудова
- Змішана
- B - Вельми економічне
- особистий
а цьому веб-сайті ми обробляємо файли cookie, необхідні для його роботи та аналізу.