Продаж квартири 2+1 64 m²
Brno, Stará osada 3976/27




















Опис
Exkluzivně nabízíme k prodeji panelový byt v osobním vlastnictví o velikosti 2+1 na ulici Stará osada, v Brně. Panelový byt se nachází ve 2. nadzemním podlaží s výtahem a jeho celková plocha činí 64 m2.
Byt disponuje opravdu velkorysým a vzdušným prostorem a samostatnými vstupy do pokojů:
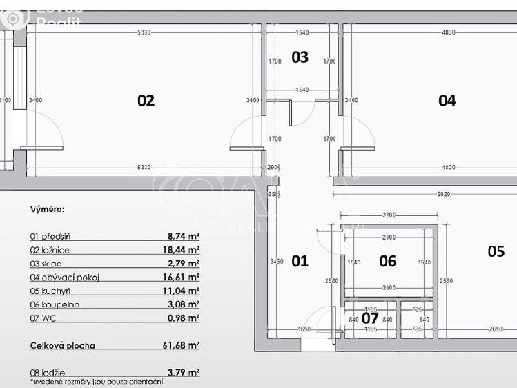
• obývací pokoj - 16,61 m2
• ložnice - 18,44 m2
• kuchyně - 11,04 m2
• koupelna - 3,8 m2
• spíž/šatna - 2,79 m2
• předsíň 8,74 m2
• WC - 0,98 m2
• Sklepní kóje 1,45 m2
Byt je čerstvě po rekonstrukci. V celém bytě jsou nové omítky, sádrokartonové podhledy, vinylová podlaha, nové zásuvky. Zůstávají původní dveře a chybí kuchyňská linka, kterou si nový majitel může vybrat podle vlastních představ - což je určitě výhoda. Zděné bytové jádro a koupelna prošli rekonstrukcí před 12 lety. Koupelna s WC jsou v dobrém a udržovaném stavu. Lodžie (o velikosti 3,79 m2) je zasklená. V bytě jsou plastová okna s žaluziemi a v oknech jsou instalovány sítě proti hmyzu. Dům je po celkové revitalizaci a zateplený. Měsíční náklady na provoz bytu jsou cca 5 672 Kč), nesplácí se žádný úvěr. V domě se nachází dva výtahy , včetně nákladního výtahu, vhodného pro stěhování větších břemen. K využití jsou i společná kočárkárna s kolárnou.
Kromě velikosti bytu je nesporně jeho další předností výborná strategická poloha:
• hned před domem je nákupní centrum a obchod Albert
• z tramvajové smyčky se tramvají pohodlně dostanete za pár minut do centra města, nebo kamkoli jinam po Brně
• za domem je mateřská škola
• o kousek dál je Kaufland
• navazuje vlakové nádraží
• hned za tratí se nachází koupaliště Zábrdovice – jediné koupaliště s umělým vlnobitím v Brně
• před Albertem je tramvajová smyčka a zastávky autobusů
• přes ulici se dostanete do lesoparku Akátky
• za domem je souběžně s řekou Svitavou cyklostezka až do Bílovic
• autobus č.201 vás doveze dál do přírody, např. do Jedovnic
Byt je volný ihned. Majitel si vyhrazuje právo vybrat si kupujícího dle jeho kritérií.
Byt disponuje opravdu velkorysým a vzdušným prostorem a samostatnými vstupy do pokojů:
• obývací pokoj - 16,61 m2
• ložnice - 18,44 m2
• kuchyně - 11,04 m2
• koupelna - 3,8 m2
• spíž/šatna - 2,79 m2
• předsíň 8,74 m2
• WC - 0,98 m2
• Sklepní kóje 1,45 m2
Byt je čerstvě po rekonstrukci. V celém bytě jsou nové omítky, sádrokartonové podhledy, vinylová podlaha, nové zásuvky. Zůstávají původní dveře a chybí kuchyňská linka, kterou si nový majitel může vybrat podle vlastních představ - což je určitě výhoda. Zděné bytové jádro a koupelna prošli rekonstrukcí před 12 lety. Koupelna s WC jsou v dobrém a udržovaném stavu. Lodžie (o velikosti 3,79 m2) je zasklená. V bytě jsou plastová okna s žaluziemi a v oknech jsou instalovány sítě proti hmyzu. Dům je po celkové revitalizaci a zateplený. Měsíční náklady na provoz bytu jsou cca 5 672 Kč), nesplácí se žádný úvěr. V domě se nachází dva výtahy , včetně nákladního výtahu, vhodného pro stěhování větších břemen. K využití jsou i společná kočárkárna s kolárnou.
Kromě velikosti bytu je nesporně jeho další předností výborná strategická poloha:
• hned před domem je nákupní centrum a obchod Albert
• z tramvajové smyčky se tramvají pohodlně dostanete za pár minut do centra města, nebo kamkoli jinam po Brně
• za domem je mateřská škola
• o kousek dál je Kaufland
• navazuje vlakové nádraží
• hned za tratí se nachází koupaliště Zábrdovice – jediné koupaliště s umělým vlnobitím v Brně
• před Albertem je tramvajová smyčka a zastávky autobusů
• přes ulici se dostanete do lesoparku Akátky
• za domem je souběžně s řekou Svitavou cyklostezka až do Bílovic
• autobus č.201 vás doveze dál do přírody, např. do Jedovnic
Byt je volný ihned. Majitel si vyhrazuje právo vybrat si kupujícího dle jeho kritérií.
Інші параметри
- 1
- потяг, mhd, автобус
- асфальтова
- 1
- 3 m2
- газопровід
- публічна каналізація
- 14
- 78 kWh/m2
- č. 78/2013 Sb.
- 230V
- 2
- Дуже добре
- Панельне
- C - Економічне
- особистий
- Показати енергетичний сертифікат будівлі
а цьому веб-сайті ми обробляємо файли cookie, необхідні для його роботи та аналізу.