Продаж квартири 3+KK 81 m²
Frýdek-Místek, Karla Hynka Máchy 1710










Опис
Prostorný 3+kk (81 m²) s balkonem v cihlovém domě po revitalizaci – Karla Hynka Máchy, Frýdek-Místek
Hledáte byt, který má „to, co lidé chtějí“? Poctivá cihlová zástavba, klidný dům po revitalizaci (zateplení, plastová okna) a k tomu velkorysá výměra 81 m² – přesně takový si nyní můžete koupit.
Byt prošel kompletní rekonstrukcí, elektroinstalace v mědi, sadrokartonové podhledy, led osvětlení, nové omítky, sanita, zkrátka vše je hotové a ve stavu jako nové.
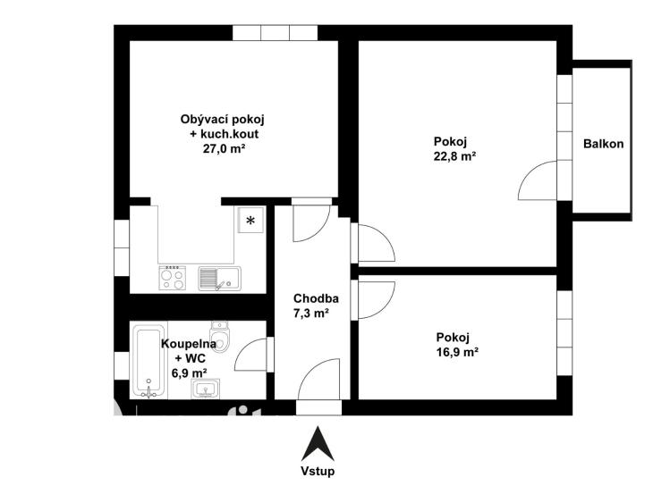
Dispozice je řešena jako 3+kk, nachází se v 1. podlaží, pokoje jsou neprůchozí, takže každý člen domácnosti má své soukromí. Jako příjemný bonus je tu balkon.
Interiér je laděný do elegantního a nadčasového stylu bílá / dub – působí čistě, útulně a moderně, a zároveň se snadno doladí jakýmkoli nábytkem a doplňky. Byt má příjemnou atmosféru, kde se budete cítit doma hned po příchodu.
Lokalita? Tady je to o pohodlí. Doslova pár metrů od domu máte řeku a cyklostezku – ideální na procházky, běh nebo kolo. A stejně tak pár metrů je i nákupní středisko FRÝDA, takže každodenní nákupy vyřídíte během chvilky. Celkově je tu skvělá dostupnost služeb i města pěšky během pár minut.
Parkování je před domem, jako běžně v lokalitě.
Shrnutí hlavních benefitů:
+ dispozice 3+kk
+ 81 m² + balkon
+ cihlový dům po revitalizaci (zateplení, plastová okna)
+ 1. podlaží
+ neprůchozí pokoje
+ moderní dekor bílá / dub
+ řeka, cyklostezka, nákupní centrum FRÝDA doslova pár metrů od domu - vše důležité v docházkové vzdálenosti !
Pokud chcete byt, který spojuje prostor, praktičnost a perfektní polohu pro každodenní život i volný čas, tohle je velmi silný kandidát. Pro více informací a domluvení prohlídky mě neváhejte kontaktovat.
Hledáte byt, který má „to, co lidé chtějí“? Poctivá cihlová zástavba, klidný dům po revitalizaci (zateplení, plastová okna) a k tomu velkorysá výměra 81 m² – přesně takový si nyní můžete koupit.
Byt prošel kompletní rekonstrukcí, elektroinstalace v mědi, sadrokartonové podhledy, led osvětlení, nové omítky, sanita, zkrátka vše je hotové a ve stavu jako nové.
Dispozice je řešena jako 3+kk, nachází se v 1. podlaží, pokoje jsou neprůchozí, takže každý člen domácnosti má své soukromí. Jako příjemný bonus je tu balkon.
Interiér je laděný do elegantního a nadčasového stylu bílá / dub – působí čistě, útulně a moderně, a zároveň se snadno doladí jakýmkoli nábytkem a doplňky. Byt má příjemnou atmosféru, kde se budete cítit doma hned po příchodu.
Lokalita? Tady je to o pohodlí. Doslova pár metrů od domu máte řeku a cyklostezku – ideální na procházky, běh nebo kolo. A stejně tak pár metrů je i nákupní středisko FRÝDA, takže každodenní nákupy vyřídíte během chvilky. Celkově je tu skvělá dostupnost služeb i města pěšky během pár minut.
Parkování je před domem, jako běžně v lokalitě.
Shrnutí hlavních benefitů:
+ dispozice 3+kk
+ 81 m² + balkon
+ cihlový dům po revitalizaci (zateplení, plastová okna)
+ 1. podlaží
+ neprůchozí pokoje
+ moderní dekor bílá / dub
+ řeka, cyklostezka, nákupní centrum FRÝDA doslova pár metrů od domu - vše důležité v docházkové vzdálenosti !
Pokud chcete byt, který spojuje prostor, praktičnost a perfektní polohu pro každodenní život i volný čas, tohle je velmi silný kandidát. Pro více informací a domluvení prohlídky mě neváhejte kontaktovat.
Інші параметри
- далеководопровід
- радіатори
- потяг, автострада, шосе, mhd, автобус
- асфальтова
- публічна каналізація
- 4
- č. 264/2020 Sb.
- 230V
- 1 m2
- 1
- Після реконструкції
- Цегляне
- G - Дуже-дуже неекономічне
- особистий
а цьому веб-сайті ми обробляємо файли cookie, необхідні для його роботи та аналізу.