Продаж сімейного будинку 143 m², ділянка 186 m²
Neratovice, Kpt. Jaroše 44/5



















Опис
Nabízím k prodeji rodinný dům 4+kk s menší zahrádkou v ulici Kpt. Jaroše – Neratovice. Dům prošel vkusnou renovací a je připraven k nastěhování.
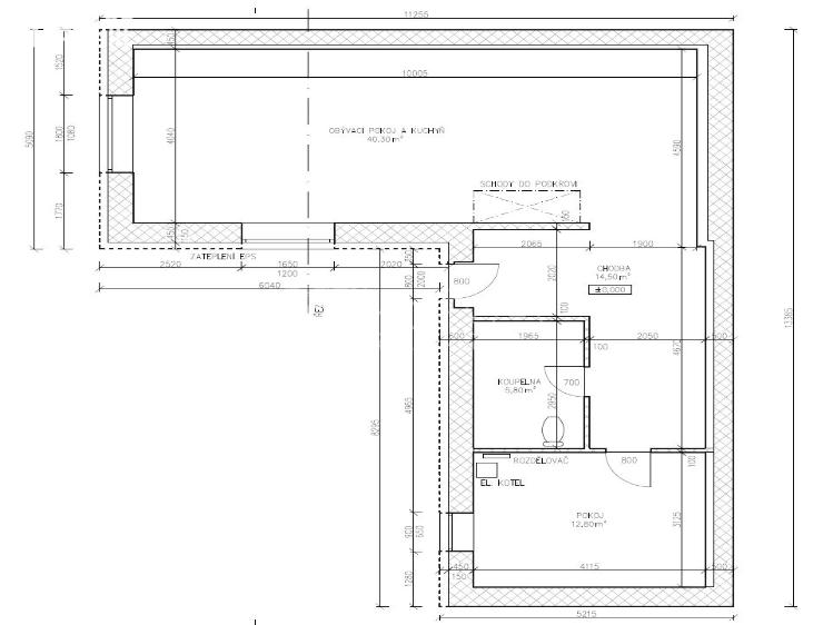
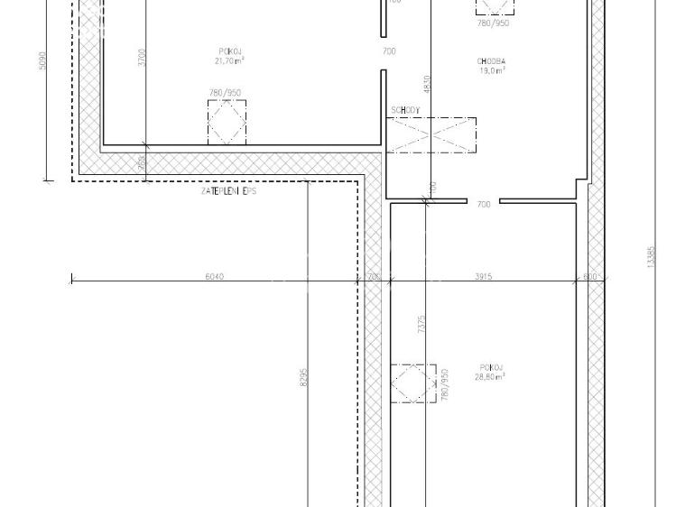
V přízemí vstupní chodba, prostorný obývací pokoj s kuchyňským koutem, koupelna s WC a samostatný pokoj, celková velikost 73,4 m2. V podkroví chodba a dvě samostatné ložnice o celkové velikosti 69,5 m2.
• Stavba byla odkopána a osazena izolace včetně nopové folie.
• Zatepleno Polystyrenem 10-14 cm, vnitřní zeď k sousedovi s předstěnou ze sádrokartonu, zateplena vatou.
• V celém přízemí podlahové topení s napojením na nový elektrokotel + otopný žebřík v koupelně.
• Kompletní nové rozvody elektřiny, odpadu i vody.
• Napojeno na elektřinu, obecní vodovod i kanalizaci, před domem plyn.
• Podlaha – 2x izolovaná + Polystyren 4cm + systémová deska a dlažba.
• Strop – trámy 20 cm, vata 10 cm + sádrokarton. Z vrchu OSB deska 2,5 cm + vinylová podlaha.
• Střecha – mezi krokvemi izolační vata a paropropustná folie.
Nedaleko domu veškerá občanská vybavenost, v blízkosti vlakové nádraží směr Praha. Možnost financování hypotečním úvěrem, se kterým Vám rádi pomůžeme. Více informací na níže uvedeném kontaktu.
V přízemí vstupní chodba, prostorný obývací pokoj s kuchyňským koutem, koupelna s WC a samostatný pokoj, celková velikost 73,4 m2. V podkroví chodba a dvě samostatné ložnice o celkové velikosti 69,5 m2.
• Stavba byla odkopána a osazena izolace včetně nopové folie.
• Zatepleno Polystyrenem 10-14 cm, vnitřní zeď k sousedovi s předstěnou ze sádrokartonu, zateplena vatou.
• V celém přízemí podlahové topení s napojením na nový elektrokotel + otopný žebřík v koupelně.
• Kompletní nové rozvody elektřiny, odpadu i vody.
• Napojeno na elektřinu, obecní vodovod i kanalizaci, před domem plyn.
• Podlaha – 2x izolovaná + Polystyren 4cm + systémová deska a dlažba.
• Strop – trámy 20 cm, vata 10 cm + sádrokarton. Z vrchu OSB deska 2,5 cm + vinylová podlaha.
• Střecha – mezi krokvemi izolační vata a paropropustná folie.
Nedaleko domu veškerá občanská vybavenost, v blízkosti vlakové nádraží směr Praha. Možnost financování hypotečním úvěrem, se kterým Vám rádi pomůžeme. Více informací na níže uvedeném kontaktu.
Інші параметри
- далеководопровід
- тепла підлога
- електрокотел
- електричний водонагрівач
- потяг, шосе, mhd, автобус
- Ні
- 3
- газопровід
- публічна каналізація
- 2
- č. 264/2020 Sb.
- 230V
- 97 m2
- 186 m2
- Після реконструкції
- Змішана
- G - Дуже-дуже неекономічне
а цьому веб-сайті ми обробляємо файли cookie, необхідні для його роботи та аналізу.