Продаж під ключ 118 m², ділянка 190 m²
Zlín, Nivy II















Опис
Váš nový domov ve Zlíně. Kde se historie potkává s moderním životem!
Představte si domov, který v sobě nese duši Zlína, ale zároveň nabízí komfort a efektivitu 21. století.
Přesně takový je náš nový patrový dům 4+kk na klíč, inspirovaný nadčasovou elegancí Baťovských domků a zahalený do teplých tónů oranžových cihel.
Je to perfektní útočiště pro Vaši až pětičlennou rodinu, kde se budete cítit hrdě a spokojeně.
Zapomeňte na starosti s výstavbou!
Stavební povolení je již v ruce a my startujeme do 30 dnů, abychom Vám předali klíče od Vašeho vysněného domova za pouhých 12-14 měsíců.
Harmonie tradiční krásy a moderního pohodlí. Architektura s duší. Náš dům je poctou zlínské tradici.
Exteriér s fasádou z oranžových cihel evokuje klasickou eleganci Baťovských staveb, dodává domu charakter, robustnost a hřejivý vzhled.
Je to domov, který nestárne a má svůj příběh.
Komfort na klíč. Od A do Z. Užijte si bydlení bez kompromisů, kde je myšleno na každý detail.
V ceně se základní fasádou, projekt, základová deska, veškeré přípojky, až po kolaudaci a finální úpravy.
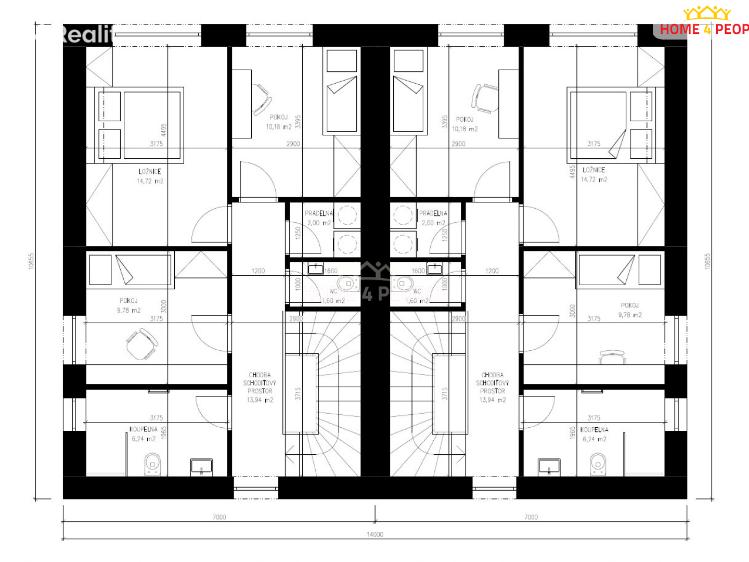
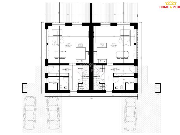
Prostorný a efektivní 118 m² užitné plochy pro Vaši rodinu s nízkými provozními náklady.
Vlastní pozemek 190 m² soukromí a pohodlné parkovací stání 36 m².
Moderní Technologie pro Váš Klid. V interiéru na Vás čeká to nejlepší z moderních technologií.
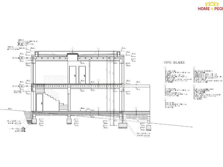
Ekologické a úsporné vytápění: Teplovodní podlahové topení v celém domě, poháněné tepelným čerpadlem se 180 L zásobníkem na teplou vodu. Pocit tepla a komfortu po celý rok.
Vysoký standard vybavení: Kvalitní elektroinstalace, kompletní sanitární vybavení s moderními bateriemi, a elegantní interiérové dveře s obložkami.
Přizpůsobte si své sny. Flexibilita dispozice: Možnost posunu příček a individuálních úprav již ve fázi projektu.
Vytápění na míru. Dle dohody změníme systém vytápění nebo vystavíme komín pro krbová kamna/vložku pro útulné večery.
Pro maximální pohodlí a luxus si můžete dům rozšířit o kryté garážové stání propojené s domem a stylovou terasu – krytou či nekrytou za příplatek.
Nadstandardní výbavu: Chytrou domácnost, klimatizaci, rekuperaci, externí žaluzie/rolety nebo fotovoltaiku pro ještě větší úspory a komfort.
Tento dům není jen stavba, je to životní styl. Spojení tradiční zlínské estetiky s moderními technologiemi a nízkými náklady.
Nenechte si ujít tento jedinečný domov! Podívejte se sami! Srdečně Vás zveme na prohlídku pozemků a našich již realizovaných staveb, kde se na vlastní oči přesvědčíte o kvalitě a smyslu pro detail.
Kontaktujte našeho makléře ještě dnes a udělejte první krok k Vašemu novému domovu ve Zlíně! Ev. číslo: 32022.
Představte si domov, který v sobě nese duši Zlína, ale zároveň nabízí komfort a efektivitu 21. století.
Přesně takový je náš nový patrový dům 4+kk na klíč, inspirovaný nadčasovou elegancí Baťovských domků a zahalený do teplých tónů oranžových cihel.
Je to perfektní útočiště pro Vaši až pětičlennou rodinu, kde se budete cítit hrdě a spokojeně.
Zapomeňte na starosti s výstavbou!
Stavební povolení je již v ruce a my startujeme do 30 dnů, abychom Vám předali klíče od Vašeho vysněného domova za pouhých 12-14 měsíců.
Harmonie tradiční krásy a moderního pohodlí. Architektura s duší. Náš dům je poctou zlínské tradici.
Exteriér s fasádou z oranžových cihel evokuje klasickou eleganci Baťovských staveb, dodává domu charakter, robustnost a hřejivý vzhled.
Je to domov, který nestárne a má svůj příběh.
Komfort na klíč. Od A do Z. Užijte si bydlení bez kompromisů, kde je myšleno na každý detail.
V ceně se základní fasádou, projekt, základová deska, veškeré přípojky, až po kolaudaci a finální úpravy.
Prostorný a efektivní 118 m² užitné plochy pro Vaši rodinu s nízkými provozními náklady.
Vlastní pozemek 190 m² soukromí a pohodlné parkovací stání 36 m².
Moderní Technologie pro Váš Klid. V interiéru na Vás čeká to nejlepší z moderních technologií.
Ekologické a úsporné vytápění: Teplovodní podlahové topení v celém domě, poháněné tepelným čerpadlem se 180 L zásobníkem na teplou vodu. Pocit tepla a komfortu po celý rok.
Vysoký standard vybavení: Kvalitní elektroinstalace, kompletní sanitární vybavení s moderními bateriemi, a elegantní interiérové dveře s obložkami.
Přizpůsobte si své sny. Flexibilita dispozice: Možnost posunu příček a individuálních úprav již ve fázi projektu.
Vytápění na míru. Dle dohody změníme systém vytápění nebo vystavíme komín pro krbová kamna/vložku pro útulné večery.
Pro maximální pohodlí a luxus si můžete dům rozšířit o kryté garážové stání propojené s domem a stylovou terasu – krytou či nekrytou za příplatek.
Nadstandardní výbavu: Chytrou domácnost, klimatizaci, rekuperaci, externí žaluzie/rolety nebo fotovoltaiku pro ještě větší úspory a komfort.
Tento dům není jen stavba, je to životní styl. Spojení tradiční zlínské estetiky s moderními technologiemi a nízkými náklady.
Nenechte si ujít tento jedinečný domov! Podívejte se sami! Srdečně Vás zveme na prohlídku pozemků a našich již realizovaných staveb, kde se na vlastní oči přesvědčíte o kvalitě a smyslu pro detail.
Kontaktujte našeho makléře ještě dnes a udělejte první krok k Vašemu novému domovu ve Zlíně! Ev. číslo: 32022.
Інші параметри
- 3
- 2
- 49 kWh/m2
- 74 m2
- 190 m2
- Будується
- Цегляне
- A - Дуже економічне
а цьому веб-сайті ми обробляємо файли cookie, необхідні для його роботи та аналізу.