Оренда квартири 2+KK 50 m²
Roztoky, Na Panenské 1880

22 000 за місяць
Контакт:Petra Vybíralová E-mail:Telefon:774104375
Погоджуюся з

Опис

  • Цей опис є в:
  • cs
  • en

Pronájem nového bytu 2+kk s terasou, šatnou a sklepem v komorním viladomě – Roztoky u Prahy
Nabízíme k pronájmu moderní a světlý byt 2+kk o užitné ploše 50,17 m², který se nachází v přízemí nově dokončeného viladomu (energetická třída A) o třech bytových jednotkách, v klidné části Roztok u Prahy – ulice Václava Havla. Do Prahy je to výborně dostupné – autobus vás doveze za 19 minut ke stanici metra A – Dejvická a Roztoky mají také skvělé vlakové spojení přímo do centra Prahy.
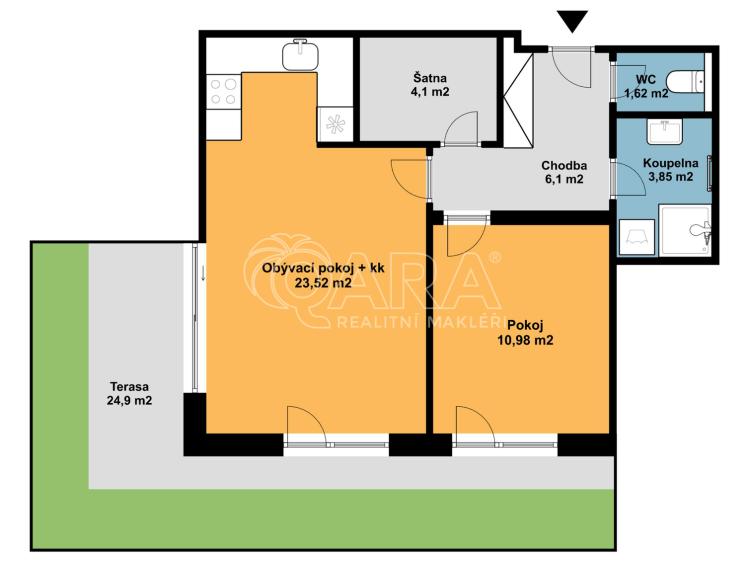
Byt je dispozičně řešen jako 2+kk a nabízí obývací pokoj s kuchyňským koutem (23,52 m²), ložnici (10,98 m²), prostornou šatnu (4,1 m²), koupelnu (3,85 m²), samostatné WC (1,62 m²) a předsíň (6,1 m²). K bytu náleží terasa o velikosti 25,24 m² s malou předzahrádkou, ideální pro posezení i pěstování zeleně, a sklepní kóje (2,5 m²) pro bezpečné uskladnění věcí.
Orientace bytu je na jihovýchod, což zajišťuje příjemné světlo po celý den. Parkování je možné na soukromém pozemku u domu. Dům byl dokončen v létě 2025 a byt čeká na svého prvního nájemce. Kvalitní vybavení zahrnuje rekuperaci, vinylové podlahy a předokenní žaluzie. Kuchyňská linka je vybavena všemi spotřebiči – myčka, varná deska, trouba, lednice s mrazákem. Jinak se byt pronajímá nevybavený.
Nemovitost je vhodná pro jednotlivce nebo pár, kteří hledají klidné a soukromé bydlení s vlastním venkovním prostorem. Díky šatně a sklepu se hodí i pro náročnější na úložný prostor, třeba pro cyklisty. Viladům se třemi byty nabízí komorní atmosféru a možnost znát své sousedy.
Nájemné: 22 000 Kč / měsíc
Zálohy na služby: 3 000 Kč / měsíc
Energie: převod na nájemce
Kauce: 25 000 Kč
Provize RK: 26 620 Kč
Podmínky pronájmu: nájemní smlouva na 1 rok s možností prodloužení, energie se převádí na nájemce.
Roztoky u Prahy kombinují výbornou dostupnost do metropole s klidným prostředím a přírodou na dosah. V okolí je veškerá občanská vybavenost, cyklostezky, les i příjemné kavárny.

Інші параметри

  • тепла підлога
  • тепловий насос
  • тепловий насос
  • Connect plus
  • потяг, mhd, автобус
  • 25 m2
  • інтернет
  • 2
  • 139 m2
  • 3
  • 60 kWh/m2
  • č. 264/2020 Sb.
  • 3 m2
  • 1
  • Новобудова
  • Цегляне
  • A - Дуже економічне
  • особистий
а цьому веб-сайті ми обробляємо файли cookie, необхідні для його роботи та аналізу.

Upozornění

Používáte nepodporovaný (zastaralý) internetový prohlížeč!

Pro správný běh našeho portalu není možné použít vámi používaný prohlížeč.

Použijte prosím Microsoft Edge nebo některý z jiných prohlížečů, např. Google Chrome, Firefox.