Оренда квартири 3+KK 44 m²
Chrášťany















Опис
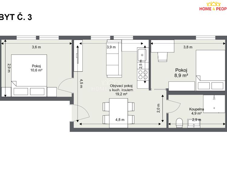
ve výhradním zastoupení majitele pronájem bytu 3+kk, 44m² v obci Bylany u Českého Brodu s malou zahrádkou v přízemí domu, která bude společná pro všechny bytové jednotky v domě. Bytová jednotka momentálně prošla kompletní rekonstrukcí. Úplně nová kuchyňská linka včetně myčky. Jinak je byt bez vybavení. V koupelně najdete sprchový kout, umyvadlo a wc. Hledáte klid v dojezdové vzdálenosti do Prahy, Českého Brodu či Kolína? Neváhejte mě kontaktovat pro více informací nebo prohlídku. Byt je volný ihned nebo dle dohody. Pronajímatel si vyhrazuje právo vybrat zájemce na základě jím zvolených kritérií. Ev. číslo: 31944.
Інші параметри
- 2
- 1 kWh/m2
- 2
- Гарне
- Цегляне
- F - Дуже неекономічне
- особистий
а цьому веб-сайті ми обробляємо файли cookie, необхідні для його роботи та аналізу.