Продаж сімейного будинку 134 m², ділянка 860 m²
Vyžlovka, V Březinkách 343

12 490 000 за нерухомість
Контакт:Martin Románek E-mail:Telefon:724248176
Погоджуюся з

Опис

Dobrý den,
Vyžlovka je obec jen 10 kilometrů východně vzdálená od oblíbených Říčan.
Tohle místo prostě nejde nemilovat.
Atraktivní lokalita, kde dominantou jsou okolní příroda, lesy a čistý vzduch.
Elegantní, moderní a plně zařízená dřevostavba 4+kk, kolaudovaná v roce 2012, klidná ulice V Březinkách , s terasou (20m2), větším bazénem i udržovanou zahradou, se již brzy může stát vaším novým domovem.
Vyladěná nemovitost s vůní dřeva, kde na 130m2 užitné plochy nabídne dostatek místa pro vaši rodinu a vše, co k životu potřebujete, včetně vybavení kvalitním nábytkem (Jelínek, Decoland).
Oplocený pozemek má ideální velikost 860 m2, nechybí prostorné pokoje, 2 koupelny, plně vybavená kuchyň s jídelním koutem, klimatizace i velmi pohodlná obývací část s jídelním koutem a jedinečným výhledem velkými dřevěnými okny, vnitřní žaluzie nebo venkovní stínění.
Jednoduchý stylový interiér v příjemných barvách bez dalších větších investic.
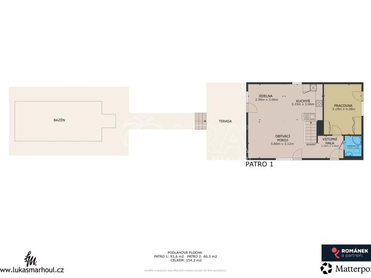
Přesné velikosti jednotlivých místností najdete na půdorysu ve fotogalerii a projít si nemovitost můžete i ve 3D virtuální prohlídce, která je také součástí nabídky ke koupi.
To ale není všechno.
Těšit se můžete na zastřešený (Alukov) venkovní bazén Desjoyaux s protiproudem (9 x 4 m), na venkovní sprchu, kryté osvětlené parkovací stání pro 2 auta, terasu z teakového dřeva s ratanovým nábytkem, na automatickou vjezdovou bránu, udržovanou zahradu se závlahou Hunter nebo praktický zahradní domek a dětský kout.
Vytápění elektřinou, náklady na bydlení při plné obsazenosti domu v počtu 5 členů rodiny - cca 80 000 Kč za rok, obecní vodovod i kanalizace, plyn není.
Fantastické okolí ničím nenahradíte.
A kdo by neznal třeba místní rybníky, koupaliště nebo vyhlášenou pizzerii.
Ať je ve dne nebo v noci, každý pohled na dům stojí zato.
Jednoduše příležitost ke změně!
Pokud vás něco podobného zajímá, zavolejte nebo napište a na prohlídku můžeme třeba hned zítra.
Těším se na viděnou.

Інші параметри

  • далеководопровід
  • тепла підлога
  • електрокотел
  • електрокотел
  • по повітрю
  • шосе, mhd, автобус
  • інтернет, супутниковий зв'язок, кабельне телебачення
  • 3 фази
  • бетонова, асфальтова
  • Ні
  • 2
  • 4
  • публічна каналізація
  • 670 m2
  • 2
  • č. 264/2020 Sb.
  • 230V
  • 76 m2
  • 36 m2
  • 860 m2
  • Дуже добре
  • Монтувана
  • D - Менш економічне
    а цьому веб-сайті ми обробляємо файли cookie, необхідні для його роботи та аналізу.

    Upozornění

    Používáte nepodporovaný (zastaralý) internetový prohlížeč!

    Pro správný běh našeho portalu není možné použít vámi používaný prohlížeč.

    Použijte prosím Microsoft Edge nebo některý z jiných prohlížečů, např. Google Chrome, Firefox.