Продаж квартири 3+1 72 m²
Holešov, Havlíčkova















Опис
☑️byt se nachází na ulici Havlíčkova, kde máte vše potřebné po ruce, a to i školku, školu, nádraží, doktory, obchody i cyklostezku
☑️výměra bytu je 72 m2, nachází se ve 2. patře ( 3.NP ) bytového domu po celkové revitalizaci
☑️vlastnictví osobní
☑️nízké provozní náklady, revitalizace je již splacena
☑️lokalita a velikost bytu ideální pro rodiny s dětmi
☑️přístup i ze zadní části ( od Kiku - zde nejsou nájezdové rampy ) na který prakticky navazuje kolárna
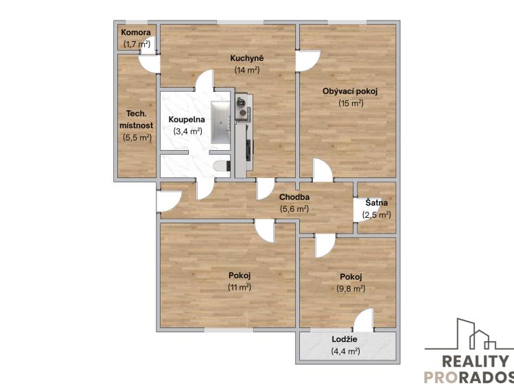
☑️k dispozici je v bytě šatna, komora a technická místnost
☑️orientace na dvě světové strany, prostorná lodžie s výhledem
☑️v bytě se nachází chodba, wc, které je průchozí do koupelny, dále kuchyně s prostorem pro stolování, komora s oknem a technická místnost, dále obývací pokoj, který má vchod i z chodby, uprostřed bytu je prostorná šatna a dvě ložnice, z nichž jedna má prostornou lodžii
☑️v původním stavu, avšak velmi udržovaný a čistý
☑️byt skýtá možnost přestavby dle svých přání na zajímavé a praktické bydlení např. technická místnost by se dala využít i jako pracovna, případně jí lze rozšířit koupelnu či kuchyň podle svých představ
Pro vaše dotazy, které ráda zodpovím, či sjednání prohlídky mne prosím kontaktujte na tel.:
606 681 905 v čase po - pá, 9 až 17 hodin, děkuji.
Těší se na Vás Veronika Sovadinová - Reality PRORADOST - Blíže k lidem.
Інші параметри
- далеководопровід
- 2
- газопровід
- публічна каналізація
- 4
- č. 264/2020 Sb.
- 374 m2
- 3
- Дуже добре
- Панельне
- G - Дуже-дуже неекономічне
- особистий