Продаж квартири 4+1 165 m²
Praha, Uruguayská 438/6























Опис
- Цей опис є в:
Koupě bytu na pražských Vinohradech patří mezi nejstabilnější rezidenční investice: tradiční čtvrť s aktivním společenským životem, špičkovými školami, kavárnami a restauracemi, perfektní dopravní dostupností do centra a množstvím zeleně v okolních parcích.
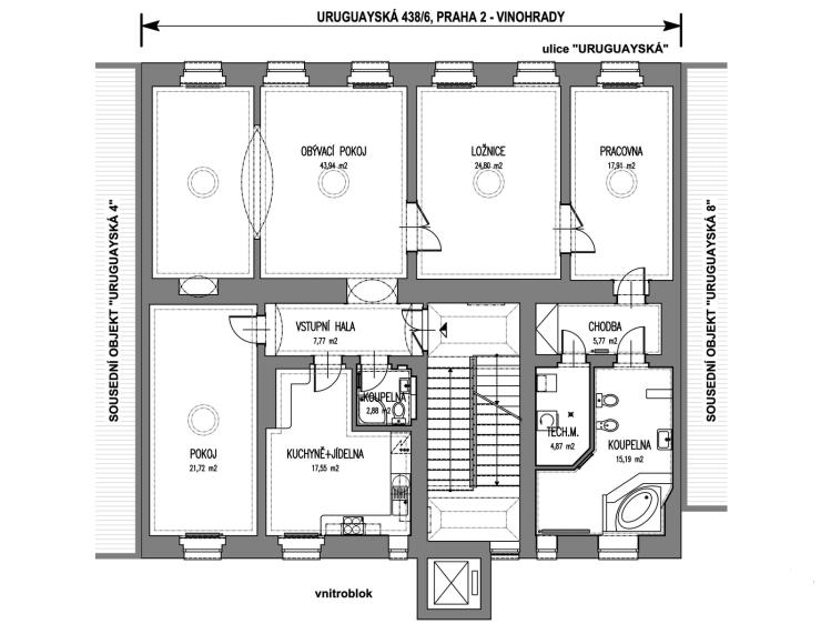
Nabízíme prostorný byt 4+1 o užitné ploše 162,4 m² ve 3. NP / 2. patře udržovaného historického cihlového domu ve Vinohradech, ul. Uruguayská. Jednotka zabírá celé patro a vznikla sloučením tří původních bytů, což zajišťuje mimořádné soukromí i flexibilitu pro další úpravy dispozic.
Současné uspořádání: velký obývací prostor vzniklý propojením dvou místností + herna / hudební kout s klavírním křídlem, samostatná kuchyně s jídelnou, dále tří velké pokoje, dvě koupelny, samostatné WC, technická místnost a široké chodby. Celkové členění ploch: obytná část 108,4 m², kuchyně + jídelna 17,6 m², zázemí (koupelny, komunikace, technická část) 36,4 m².
Byt prošel při sloučení celkovou modernizací – nové měděné elektro rozvody, nové rozvody vody a kanalizace s měřením T/S, vytápění a TUV z vlastního plynového kotle se zásobníkem, rozvody do radiátorů, příprava na vysokorychlostní internet a kabelovou TV (optická síť). Stav hodnocen jako velmi dobrý; konstrukce bez zjevných poruch.
Dům je reprezentativní vinohradská činžovní stavba z přelomu 19./20. století; vstupní vestibul navazuje na průjezd do zeleného vnitrobloku, schodiště po kompletní renovaci, přístup k výtahu z mezipodest.
Lokalita: stabilizované obytné území v městské památkové zóně Vinohrady; v docházce metro A – Náměstí Míru, tramvaje i autobusy, bohatá občanská vybavenost, parky typu Riegrovy sady. Území napojeno na všechny městské sítě (voda, kanalizace, plyn, elektřina, data) a leží mimo záplavové území.
Právní a technické jistoty: byt v osobním vlastnictví.
Nemovitost se nachází v běžné městské zástavbě mimo zvláštní ochranná nebo bezpečnostní pásma; objekt není v záplavovém území ani v ochranném pásmu kulturní památky dle evidence NPÚ.
Vybavení, materiály & atmosféra
• Původní dřevěná špaletová okna (zachovalá; přirozené větrání, historický charakter).
• Dubové parkety ve většině obytných místností; dlažby ve zázemí.
• Vlastní plynový kotel – topení + TUV (kombinovaný).
• Rozvody v mědi, měřená voda, radiátory.
• Optické datové připojení možné.
Úložné prostory
K bytu náleží sklepní místnost cca 9 m²
Investiční potenciál
Díky historickému sloučení tří bytů lze uvažovat o několika scénářích: zachování velkorysého rodinného bytu, rozčlenění na více apartmánů pro nájemní výnos, či částečná rekonstrukce s vyčleněním pracovny / ordinace (po projednání se stavebním úřadem). Základní podklady v pasportu k dispozici.
Cena a financování
29 590 000 Kč (≈ 182 tis. Kč/m² při 162 m² užitné plochy; sklep 9 m² nezapočten).
Zálohy na společné domovní služby, fond oprav a vodu činí pouze 6 097 Kč / měsíc.
SVJ je dobře hospodařící, bez dluhů a s řádně vedeným fondem oprav.
Byt je bez právních vad, hypoték a závazků
Nabízíme prostorný byt 4+1 o užitné ploše 162,4 m² ve 3. NP / 2. patře udržovaného historického cihlového domu ve Vinohradech, ul. Uruguayská. Jednotka zabírá celé patro a vznikla sloučením tří původních bytů, což zajišťuje mimořádné soukromí i flexibilitu pro další úpravy dispozic.
Současné uspořádání: velký obývací prostor vzniklý propojením dvou místností + herna / hudební kout s klavírním křídlem, samostatná kuchyně s jídelnou, dále tří velké pokoje, dvě koupelny, samostatné WC, technická místnost a široké chodby. Celkové členění ploch: obytná část 108,4 m², kuchyně + jídelna 17,6 m², zázemí (koupelny, komunikace, technická část) 36,4 m².
Byt prošel při sloučení celkovou modernizací – nové měděné elektro rozvody, nové rozvody vody a kanalizace s měřením T/S, vytápění a TUV z vlastního plynového kotle se zásobníkem, rozvody do radiátorů, příprava na vysokorychlostní internet a kabelovou TV (optická síť). Stav hodnocen jako velmi dobrý; konstrukce bez zjevných poruch.
Dům je reprezentativní vinohradská činžovní stavba z přelomu 19./20. století; vstupní vestibul navazuje na průjezd do zeleného vnitrobloku, schodiště po kompletní renovaci, přístup k výtahu z mezipodest.
Lokalita: stabilizované obytné území v městské památkové zóně Vinohrady; v docházce metro A – Náměstí Míru, tramvaje i autobusy, bohatá občanská vybavenost, parky typu Riegrovy sady. Území napojeno na všechny městské sítě (voda, kanalizace, plyn, elektřina, data) a leží mimo záplavové území.
Právní a technické jistoty: byt v osobním vlastnictví.
Nemovitost se nachází v běžné městské zástavbě mimo zvláštní ochranná nebo bezpečnostní pásma; objekt není v záplavovém území ani v ochranném pásmu kulturní památky dle evidence NPÚ.
Vybavení, materiály & atmosféra
• Původní dřevěná špaletová okna (zachovalá; přirozené větrání, historický charakter).
• Dubové parkety ve většině obytných místností; dlažby ve zázemí.
• Vlastní plynový kotel – topení + TUV (kombinovaný).
• Rozvody v mědi, měřená voda, radiátory.
• Optické datové připojení možné.
Úložné prostory
K bytu náleží sklepní místnost cca 9 m²
Investiční potenciál
Díky historickému sloučení tří bytů lze uvažovat o několika scénářích: zachování velkorysého rodinného bytu, rozčlenění na více apartmánů pro nájemní výnos, či částečná rekonstrukce s vyčleněním pracovny / ordinace (po projednání se stavebním úřadem). Základní podklady v pasportu k dispozici.
Cena a financování
29 590 000 Kč (≈ 182 tis. Kč/m² při 162 m² užitné plochy; sklep 9 m² nezapočten).
Zálohy na společné domovní služby, fond oprav a vodu činí pouze 6 097 Kč / měsíc.
SVJ je dobře hospodařící, bez dluhů a s řádně vedeným fondem oprav.
Byt je bez právních vad, hypoték a závazků
Інші параметри
- радіатори
- газовий конденсаційний котел
- газовий конденсаційний котел
- оптика
- потяг, автострада, шосе, mhd, автобус
- телефон, інтернет, кабельне телебачення, кабельні мережі
- асфальтова
- 2
- газопровід
- публічна каналізація
- 5
- 261 kWh/m2
- č. 264/2020 Sb.
- 10 m2
- 3
- Дуже добре
- Змішана
- D - Менш економічне
- особистий
- Показати енергетичний сертифікат будівлі
а цьому веб-сайті ми обробляємо файли cookie, необхідні для його роботи та аналізу.