Продажа квартиры 2+KK 63 m²
Liberec, U Nisy 912/2




































Описание
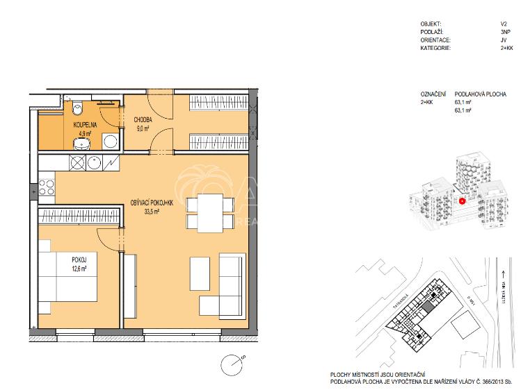
Nabízím k prodeji prostorný a světlý byt 2+kk o nadstandardní výměře 63 m² se sklepní kójí (+ cca 4 m²), umístěný ve 3. nadzemním podlaží moderní novostavby Rezidence Nábřeží z roku 2022, přímo v centru Liberce. Součástí prodeje je i venkovní parkovací stání, které uvidíte pod okny bytu.
Byt se nachází ve spojovací části dvou věží rezidence, což zajišťuje snadný přístup z výtahu i z parkovacích pater.
Byt je orientován na jihovýchod, díky čemuž je příjemně prosluněný během celého dopoledne. Okna s trojskly jsou vybavena venkovními elektrickými žaluziemi s dálkovým ovládáním, které zvyšují komfort i soukromí.
Součástí bytu je kuchyňská linka s vestavěnou troubou, indukční varnou deskou a digestoří. Byt se prodává bez nábytku.
Prostorná koupelna je spojena s toaletou a nabízí walk-in sprchový kout, závěsné WC, místo pro pračku i sušičku a topný žebřík. V bytě je zavedena pozemní TV anténa, rozvody pro internet a vlastní požární senzor.
Dům je bezbariérový, disponuje společnou kočárkárnou a sklepní kójí umístěnou prakticky na stejném patře jako byt. Vytápění je řešeno dálkově z Teplárny Liberec. Energetická náročnost budovy je třídy B – velmi úsporná.
Velkou předností je strategická poloha v centru města, přesto v klidné lokalitě s dostatkem zeleně. V pěší vzdálenosti 5 minut naleznete obchody, kavárny (přímo v domě), restaurace, MHD, vlakové i autobusové nádraží, parky, cyklostezku i centrum Babylon. V těsném sousedství byla dokončena nová liberecká „náplavka“ – revitalizovaný veřejný prostor podél řeky Nisy, který nabízí příjemné místo pro relaxaci, setkávání, posezení, umění a výhledy na řeku.
Pokud máte k nabídce jakékoliv otázky, ráda Vám je zodpovím nebo se můžete na byt společně zajet podívat. Těším se na Vás!
Byt se nachází ve spojovací části dvou věží rezidence, což zajišťuje snadný přístup z výtahu i z parkovacích pater.
Byt je orientován na jihovýchod, díky čemuž je příjemně prosluněný během celého dopoledne. Okna s trojskly jsou vybavena venkovními elektrickými žaluziemi s dálkovým ovládáním, které zvyšují komfort i soukromí.
Součástí bytu je kuchyňská linka s vestavěnou troubou, indukční varnou deskou a digestoří. Byt se prodává bez nábytku.
Prostorná koupelna je spojena s toaletou a nabízí walk-in sprchový kout, závěsné WC, místo pro pračku i sušičku a topný žebřík. V bytě je zavedena pozemní TV anténa, rozvody pro internet a vlastní požární senzor.
Dům je bezbariérový, disponuje společnou kočárkárnou a sklepní kójí umístěnou prakticky na stejném patře jako byt. Vytápění je řešeno dálkově z Teplárny Liberec. Energetická náročnost budovy je třídy B – velmi úsporná.
Velkou předností je strategická poloha v centru města, přesto v klidné lokalitě s dostatkem zeleně. V pěší vzdálenosti 5 minut naleznete obchody, kavárny (přímo v domě), restaurace, MHD, vlakové i autobusové nádraží, parky, cyklostezku i centrum Babylon. V těsném sousedství byla dokončena nová liberecká „náplavka“ – revitalizovaný veřejný prostor podél řeky Nisy, který nabízí příjemné místo pro relaxaci, setkávání, posezení, umění a výhledy na řeku.
Pokud máte k nabídce jakékoliv otázky, ráda Vám je zodpovím nebo se můžete na byt společně zajet podívat. Těším se na Vás!
Другие параметры
- дистанционное водоснабжение
- тёплый пол
- местное центральное отопление
- оптика
- mhd
- интернет
- асфальтовая
- 1
- общественная канализация
- 13
- 98 kWh/m2
- č. 78/2013 Sb.
- 230V
- 4 m2
- 2129 m2
- 3
- Очень хорошее
- Кирпичное
- B - Высокий
- личное
- Показать энергетический сертификат здания
На этом веб-сайте мы обрабатываем файлы cookie, необходимые для его работы и анализа.