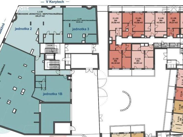
Pronájem kanceláře 194 m²
Praha, Průběžná








Popis
- Tento popis je v:
Nabízíme k pronájmu nový prostor ( 194 m2 )+ garážové stání v připravovaném projektu novostavby bytového domu Anilinka ( 250 bytů), termín dokončení projektu 4Q 2027, Strašnice, Praha 10.
Prostor se nabízí ve stavu shell and core, nachází se hned vedle supermarketu a je vhodný pro multifunkční využití.
Projekt se staví v rezidenční oblasti Strašnic, u tramvajové zastávky Staré Strašnice na křižovatce ulic Průběžná a V Korytech. Po dokončení stavby vznikne funkční designová budova s fasádou z živé popínavé zeleně a zelenou střechou. V suterénu budovy budou garáže a v přízemí velký supermarket.
Cenový odhad za služby ( teplo, voda, služby domu) činí 35,- Kč / m2 měsíčně.
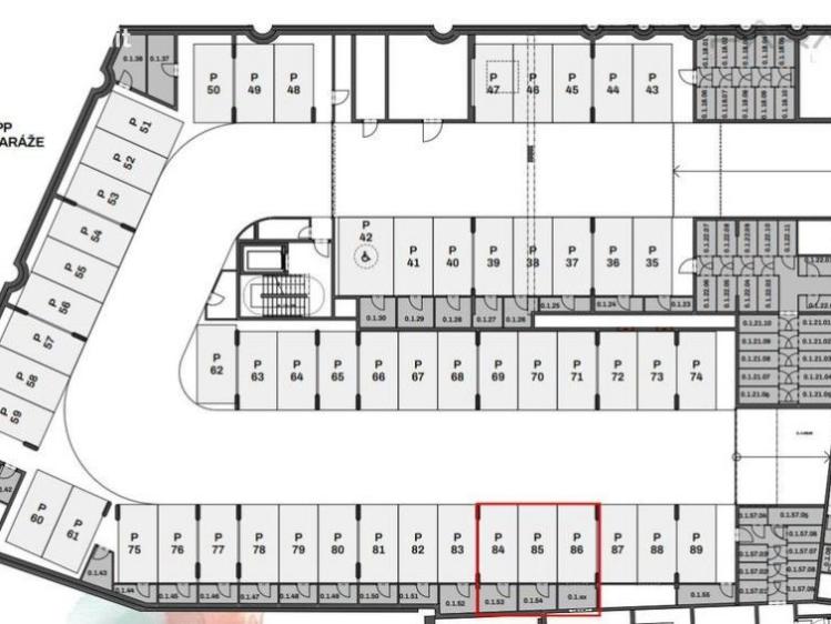
Parkovací stání 5.000 Kč / měsíčně.
Uvedené ceny jsou bez DPH.
K nastěhování na konci roku 2027.
Energetická náročnost budovy: G (nebyla sdělena majitelem)
ID nemovitosti ANK0172-0001.
Prostor se nabízí ve stavu shell and core, nachází se hned vedle supermarketu a je vhodný pro multifunkční využití.
Projekt se staví v rezidenční oblasti Strašnic, u tramvajové zastávky Staré Strašnice na křižovatce ulic Průběžná a V Korytech. Po dokončení stavby vznikne funkční designová budova s fasádou z živé popínavé zeleně a zelenou střechou. V suterénu budovy budou garáže a v přízemí velký supermarket.
Cenový odhad za služby ( teplo, voda, služby domu) činí 35,- Kč / m2 měsíčně.
Parkovací stání 5.000 Kč / měsíčně.
Uvedené ceny jsou bez DPH.
K nastěhování na konci roku 2027.
Energetická náročnost budovy: G (nebyla sdělena majitelem)
ID nemovitosti ANK0172-0001.
Další parametry
- Ve výstavbě
- Cihla
- G - Mimořádně nehospodárná
Na tomto webu zpracováváme cookies potřebné pro jeho fungování a analytiku.