Prodej bytu 4+KK 82 m²
Brno, Havlíčkova












Popis
Realitní kancelář 100klíčů Vám nabízí velice příjemný, cihlový byt o dispozici 4+kk (86 m²) se zahradou, a dvěma prostornými sklepy, nacházející se v jedné z nejatraktivnějších městských částí Brna - Masarykově čtvrti (Stránici).
Byt je umístěn v prvním (prostředním) patře domu a prošel rozsáhlou rekonstrukcí, v rámci které byly vyměněny stupačky, elektřina, voda, nově položena dlažba a celková modernizace jádra a kuchyně. Podlahy v pokojích dřevěné, nově ošetřené. Ohřev vody a vytápění zajištěno vlastním plynovým kotlem.
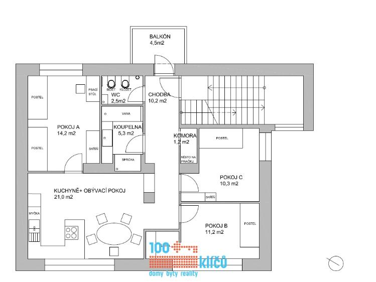
Jedná se o slunný byt s praktickou a vzdušnou dispozicí - z předsíně vedou vstupy do jednotlivých místností - kuchyně s jídelní či obývací částí, dvou ložnic, koupelny se sprchovým koutem a vanou, toalety s bidetem, technické místnosti / komory a na balkon, orientovaný do vnitrobloku domu.
Třetí pokoj je přístupný z kuchyně.
Celková plocha bytu činí 86 m², jednotlivé výměry místností viz přiložený půdorys.
K bytové jednotce lze dále přikoupit garáž nacházející se vedle domu.
K dispozici také sklepní prostor v suterénu domu o výměře 12 m², podkroví 30m2 a zahrada za domem o velikosti 152m2.
V současné chvíli se jedná o převod ideální třetiny vlastnického podílu k domu s jasně vymezenými výměrami jednotlivých částí na základě podepsané většinové dohody.
Nemovitost je v dobrém technickém stavu, nově byla zrekonstruována střecha s výměnou krytiny. Dále je plánována nová fasáda a zateplení domu. S ostatními spolumajiteli je domluva na opravách možná.
Pokud hledáte atraktivní, klidné a prostorné bydlení bez nutnosti dalších investic, možností užívání vlastní zahrady přímo za domem, v neposlední řadě bezproblémovým parkováním v garáži či na jejím vjezdu, je tento byt pro Vás ideální volbou.
Brno - Stránice patří mezi nejvyhledávanější městskou část zejména pro svoje úžasně klidné prostředí (Kraví hora, Wilsonův les) a zároveň nabízí dostupnost veškerých služeb - škol, školek, gymnázií, obchodních, kulturních a sportovních možností. Blízkost centra města.
Doporučuji prohlídku této nemovitosti. Pro více informací prosím volejte.
Byt je umístěn v prvním (prostředním) patře domu a prošel rozsáhlou rekonstrukcí, v rámci které byly vyměněny stupačky, elektřina, voda, nově položena dlažba a celková modernizace jádra a kuchyně. Podlahy v pokojích dřevěné, nově ošetřené. Ohřev vody a vytápění zajištěno vlastním plynovým kotlem.
Jedná se o slunný byt s praktickou a vzdušnou dispozicí - z předsíně vedou vstupy do jednotlivých místností - kuchyně s jídelní či obývací částí, dvou ložnic, koupelny se sprchovým koutem a vanou, toalety s bidetem, technické místnosti / komory a na balkon, orientovaný do vnitrobloku domu.
Třetí pokoj je přístupný z kuchyně.
Celková plocha bytu činí 86 m², jednotlivé výměry místností viz přiložený půdorys.
K bytové jednotce lze dále přikoupit garáž nacházející se vedle domu.
K dispozici také sklepní prostor v suterénu domu o výměře 12 m², podkroví 30m2 a zahrada za domem o velikosti 152m2.
V současné chvíli se jedná o převod ideální třetiny vlastnického podílu k domu s jasně vymezenými výměrami jednotlivých částí na základě podepsané většinové dohody.
Nemovitost je v dobrém technickém stavu, nově byla zrekonstruována střecha s výměnou krytiny. Dále je plánována nová fasáda a zateplení domu. S ostatními spolumajiteli je domluva na opravách možná.
Pokud hledáte atraktivní, klidné a prostorné bydlení bez nutnosti dalších investic, možností užívání vlastní zahrady přímo za domem, v neposlední řadě bezproblémovým parkováním v garáži či na jejím vjezdu, je tento byt pro Vás ideální volbou.
Brno - Stránice patří mezi nejvyhledávanější městskou část zejména pro svoje úžasně klidné prostředí (Kraví hora, Wilsonův les) a zároveň nabízí dostupnost veškerých služeb - škol, školek, gymnázií, obchodních, kulturních a sportovních možností. Blízkost centra města.
Doporučuji prohlídku této nemovitosti. Pro více informací prosím volejte.
Další parametry
- plynový kondenzační kotel
- plynový kondenzační kotel
- 1
- mhd
- internet
- 2
- 2
- plynovod
- veřejná kanalizace
- 152 m2
- 1
- 2
- 12 m2
- 4 m2
- 1
- Dobrý
- Cihla
- G - Mimořádně nehospodárná
- osobní
Na tomto webu zpracováváme cookies potřebné pro jeho fungování a analytiku.