Pronájem obchodního prostoru 150 m²
Brno
+ energie a sl. 10250.-Kč + provize RK







Popis
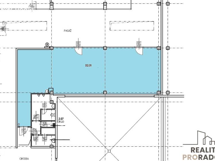
Se souhlasem majitele Vám nabízíme k pronájmu obchodní prostor o výměře 150m2 v Obchodním centru v Brně Bystrci. Jedná se o prodejní plochu s dlažbou a prosklenými výlohami do pasáže s přehlednou prodejní plochou. Je zde supermarket, velká drogerie, obchod z nábytkem a řada dalších obchodů včetně lékárny. Navštěvované místo s parkováním. Vhodné na maloobchodní prodejnu – NE služby, volné ihned.
Další parametry
- vodovod
- Ne
- 150 m2
- 3
- 2
- č. 264/2020 Sb.
- 150 m2
- 1
- Velmi dobrý
- Cihla
- G - Mimořádně nehospodárná
Na tomto webu zpracováváme cookies potřebné pro jeho fungování a analytiku.