Pronájem kanceláře 212 m²
Praha, Na struze
+ 7.000 služby + elektřina a plyn s přepisem + kauce











Popis
- Tento popis je v:
Reprezentativní kancelářské prostory o celkové ploše 212 m2, po kompletní rekonstrukci, umístěné ve 2.NP zrenovovaného činžovního domu s výtahem, v samém centru Prahy, v ulici Na Struze, jen pár kroků od pražského Žofína, Vltavy a Národního divadla.
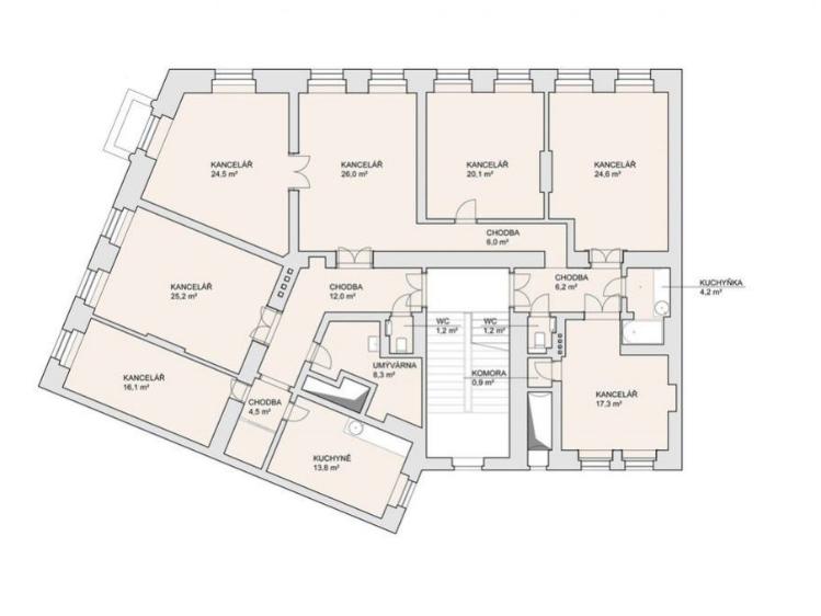
Celek tvoří 7 samostatných kanceláří, serverovna, 2 kuchyňky a 2 toalety (viz. plánek). Ve 2/3 prostor jsou nainstalované klimatizační jednotky. Kanceláře jsou vybavené datovými a telefonními rozvody. K dispozici je optický internet, alarm a kouřová čidla. Okna jsou dřevěná, s žaluziemi, na podlahách koberce. Dům je kamerově zabezpečen.
Skvělá dopravní dostupnost, 1 min chůze zastávka tramvaje "Národní divadlo", 5 min pěšky na metro B "Národní třída". Atraktivní lokalita s plnou občanskou vybaveností.
Určeno pro zájemce o dlouhodobý pronájem. K dispozici od 07/2026.
ID nemovitosti MDO0456-0002.
Celek tvoří 7 samostatných kanceláří, serverovna, 2 kuchyňky a 2 toalety (viz. plánek). Ve 2/3 prostor jsou nainstalované klimatizační jednotky. Kanceláře jsou vybavené datovými a telefonními rozvody. K dispozici je optický internet, alarm a kouřová čidla. Okna jsou dřevěná, s žaluziemi, na podlahách koberce. Dům je kamerově zabezpečen.
Skvělá dopravní dostupnost, 1 min chůze zastávka tramvaje "Národní divadlo", 5 min pěšky na metro B "Národní třída". Atraktivní lokalita s plnou občanskou vybaveností.
Určeno pro zájemce o dlouhodobý pronájem. K dispozici od 07/2026.
ID nemovitosti MDO0456-0002.
Další parametry
- ústřední elektrické
- Velmi dobrý
- Cihla
- G - Mimořádně nehospodárná
Na tomto webu zpracováváme cookies potřebné pro jeho fungování a analytiku.