Pronájem kanceláře 417 m²
Praha, Ke hrádku 1105/10
























Popis
- Tento popis je v:
Nabízíme k pronájmu exkluzivní rodinný dům vhodný i pro kancelářské využití v pražských Kunraticích v místě obklopeném zelení, nedaleko lesoparku Kunratický les a necelé dva kilometry jízdy autem od nákupního centra Westfield Chodov, v jehož blízkosti je stanice metra a kancelářský komplex The Park. V lokalitě je velmi dobře dostupná veškerá občanská vybavenost včetně lékařské péče a vzdělávání. Dobře dostupná je například i Prague British International School.
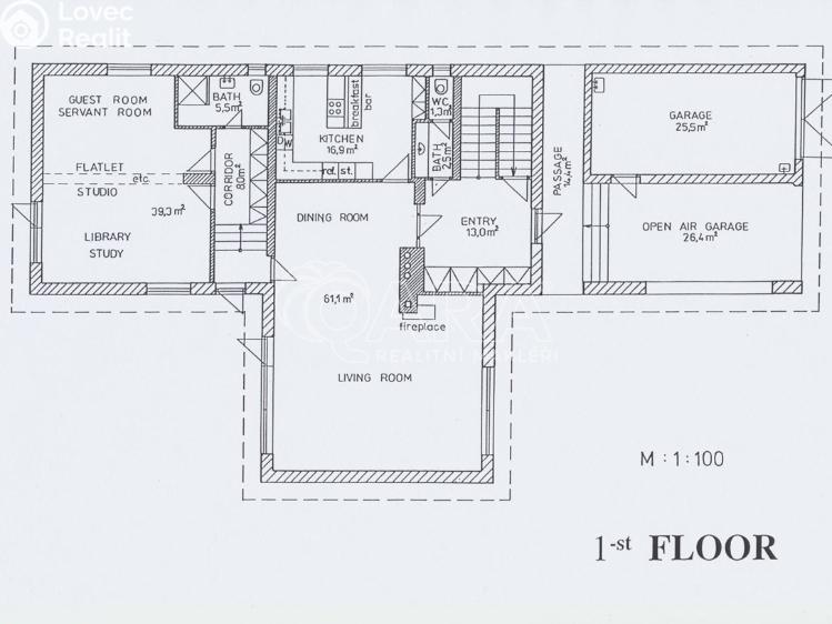
Samotný dům má zastavěnou plochu 264 m2, podlahovou plochu 417 m2, dvě garážová stání a rovinatou zahradu s velikostí 1000 m2. Vnitřní dispozice domu jsou 6+1. Největší je obývací pokoj s krbem a vysokým stropem, je k dispozici i čtveřice koupelen. Firma zde může najít klidné zázemí naprosto odlišné od klasických kancelářských budov. Neváhejte, ozvěte se a rádi zorganizujeme prohlídku.
Kromě inzerovaného nájmu (pronajímatel je fyzická osoba, takže se neplatí DPH), je nutné počítat s úhradou spotřeby energií, vody a odvozu domovního odpadu.
Samotný dům má zastavěnou plochu 264 m2, podlahovou plochu 417 m2, dvě garážová stání a rovinatou zahradu s velikostí 1000 m2. Vnitřní dispozice domu jsou 6+1. Největší je obývací pokoj s krbem a vysokým stropem, je k dispozici i čtveřice koupelen. Firma zde může najít klidné zázemí naprosto odlišné od klasických kancelářských budov. Neváhejte, ozvěte se a rádi zorganizujeme prohlídku.
Kromě inzerovaného nájmu (pronajímatel je fyzická osoba, takže se neplatí DPH), je nutné počítat s úhradou spotřeby energií, vody a odvozu domovního odpadu.
Další parametry
- Ne
- 417 m2
- 999 m2
- 1
- 2
- č. 78/2013 Sb.
- 264 m2
- Velmi dobrý
- Cihla
- B - Velmi úsporná
Na tomto webu zpracováváme cookies potřebné pro jeho fungování a analytiku.