Prodej bytu 3+1 79 m²
Brno, Slovinská 1183/3
vč. provize a právního servisu































Popis
Světlý byt 3+1 s velkými okny v atraktivní lokalitě Králova Pole, jen pár kroků od Slovanského náměstí.
Bydlení v jedné z TOP brněnských lokalit, kde máte vše po ruce a zároveň si můžete kdykoli odpočinout v příjemné zeleni na Slovaňáku.
Skvělým benefitem je možnost využívat zahradu ve vnitrobloku (k bytu náleží podíl na zahradě za domem) – pro odpočinek, posezení nebo hraní dětí.
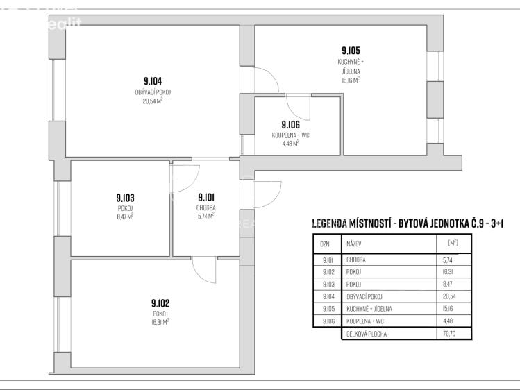
Byt se nachází ve 4. nadzemním podlaží a jeho celková užitná plocha je 79 m² včetně zděného sklepa 8,4 m2. Díky velkým oknům a orientaci na východ i západ působí celý prostor světlým a vzdušným dojmem.
Dispozice bytu
Byt nabízí funkční uspořádání ideální pro rodinu i pár, kteří ocení dostatek prostoru i klidné zázemí.
• Obývací pokoj (20,54 m²) – prostorný a přirozeně prosvětlený, západní orientace
• Pokoj (16,31 m²) – dostatek místa pro velkou postel i šatní skříně, západní orientace
• Pokoj (8,47 m²) – ideální jako dětský pokoj či pracovna, západní orientace
• Jídelna s kuchyní (15,16 m²) – orientovaná na východ, směrem do vnitrobloku a zahrady
• Koupelna s vanou a toaletou (4,48 m²)
• Chodba (5,74 m²) – účelná vstupní zóna
Uvedené výměry jsou pouze orientační
Balkony jsou umístěné zezadu domu s výhledem do zahrady a jsou přístupné ze společného schodiště.
Vytápění je řešeno vlastním plynovým kotlem, což přináší kontrolu nad náklady i tepelnou pohodou.
Aktuálně probíhá vyhotovení prohlášení vlastníka s vymezením jednotek.
PENB bude nově dodáno (prozatím uvedena třída G).
Lokalita
Královo Pole patří dlouhodobě k nejvyhledávanějším částem Brna díky skvělé dostupnosti, zeleni a kompletní občanské vybavenosti. Jde o lokalitu, kde si nemovitosti drží hodnotu a stabilně rostou.
V pěší vzdálenosti najdete obchody, kavárny, restaurace, základní školu, gymnázium, mateřskou školu, sportoviště a samozřejmě MHD.
Přijďte se podívat, těšíme se na Vás.
Bydlení v jedné z TOP brněnských lokalit, kde máte vše po ruce a zároveň si můžete kdykoli odpočinout v příjemné zeleni na Slovaňáku.
Skvělým benefitem je možnost využívat zahradu ve vnitrobloku (k bytu náleží podíl na zahradě za domem) – pro odpočinek, posezení nebo hraní dětí.
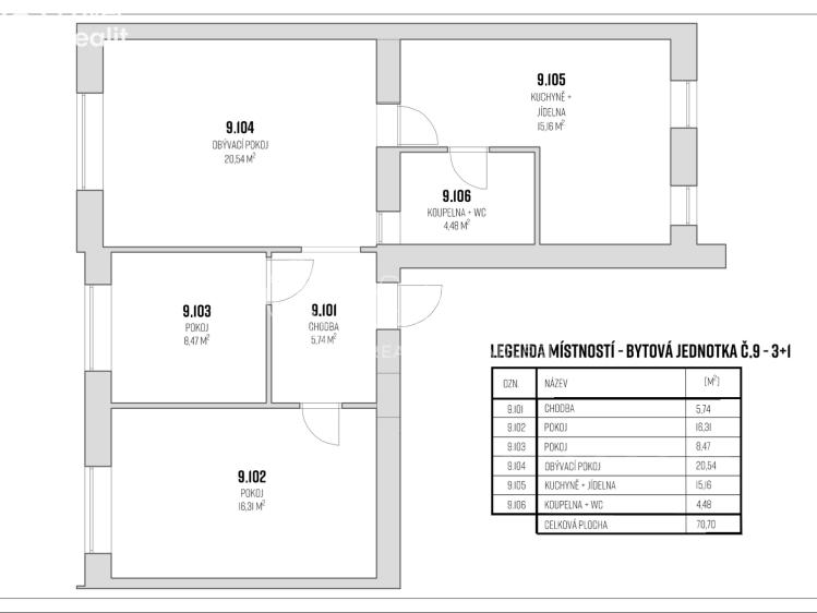
Byt se nachází ve 4. nadzemním podlaží a jeho celková užitná plocha je 79 m² včetně zděného sklepa 8,4 m2. Díky velkým oknům a orientaci na východ i západ působí celý prostor světlým a vzdušným dojmem.
Dispozice bytu
Byt nabízí funkční uspořádání ideální pro rodinu i pár, kteří ocení dostatek prostoru i klidné zázemí.
• Obývací pokoj (20,54 m²) – prostorný a přirozeně prosvětlený, západní orientace
• Pokoj (16,31 m²) – dostatek místa pro velkou postel i šatní skříně, západní orientace
• Pokoj (8,47 m²) – ideální jako dětský pokoj či pracovna, západní orientace
• Jídelna s kuchyní (15,16 m²) – orientovaná na východ, směrem do vnitrobloku a zahrady
• Koupelna s vanou a toaletou (4,48 m²)
• Chodba (5,74 m²) – účelná vstupní zóna
Uvedené výměry jsou pouze orientační
Balkony jsou umístěné zezadu domu s výhledem do zahrady a jsou přístupné ze společného schodiště.
Vytápění je řešeno vlastním plynovým kotlem, což přináší kontrolu nad náklady i tepelnou pohodou.
Aktuálně probíhá vyhotovení prohlášení vlastníka s vymezením jednotek.
PENB bude nově dodáno (prozatím uvedena třída G).
Lokalita
Královo Pole patří dlouhodobě k nejvyhledávanějším částem Brna díky skvělé dostupnosti, zeleni a kompletní občanské vybavenosti. Jde o lokalitu, kde si nemovitosti drží hodnotu a stabilně rostou.
V pěší vzdálenosti najdete obchody, kavárny, restaurace, základní školu, gymnázium, mateřskou školu, sportoviště a samozřejmě MHD.
Přijďte se podívat, těšíme se na Vás.
Další parametry
- vodovod
- radiátory
- plynový kondenzační kotel
- plynový kondenzační kotel
- 1
- silnice, mhd
- asfaltová
- 1
- plynovod
- veřejná kanalizace
- 228 m2
- 5
- č. 264/2020 Sb.
- 230V
- 8 m2
- 4
- Dobrý
- Smíšená
- G - Mimořádně nehospodárná
- osobní
Na tomto webu zpracováváme cookies potřebné pro jeho fungování a analytiku.