Prodej atypického bytu 125 m²
Praha, Na Petynce 986/36























Popis
Nabízíme tímto k prodeji byt v Praze ve Střešovicích, klidné v ulici Na Petynce o velikosti 125 m umístěný v přízemí a 1.PP zrekonstruovaného bytového domu (2019).
Dle dokumentace je aktuálním typem využití prostor dílna nebo provozovna, pro přízemí je platné povolení stavby za účelem rekolaudace prostor na byt. V případě zájmu lze jednotku rozdělit na 2, kdy každá z nich může mít samostatný vstup.
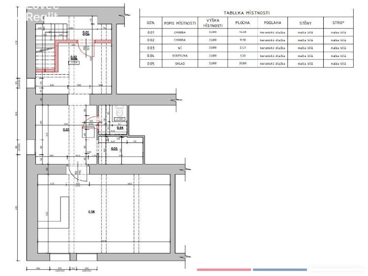
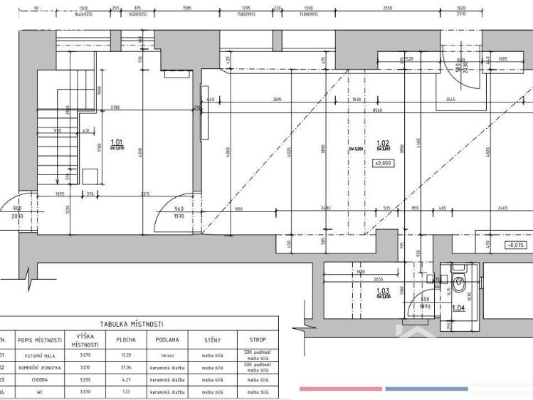
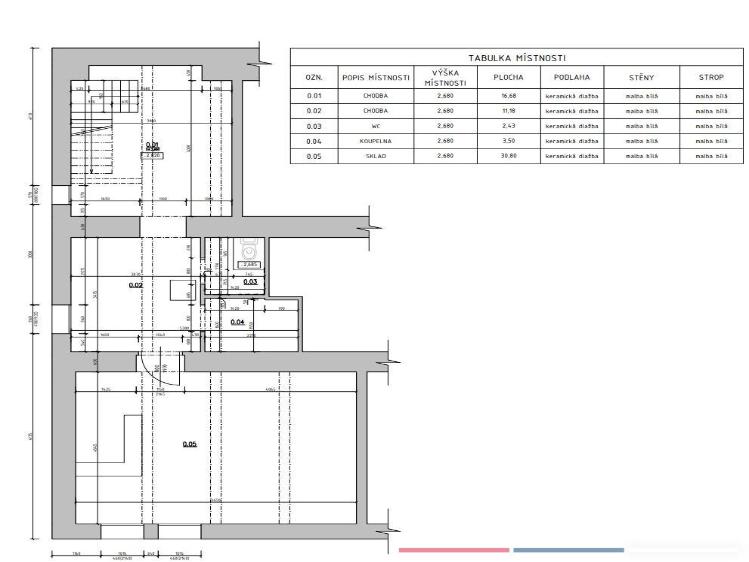
V přízemí se nachází dvě veliké místnosti, k první z nich přiléhá toaleta s komorou, kde se dá zřídit sprcha či kuchyňka nebo šatna, druhá místnost má pak samostatný vstup do jednotky, kde se nachází schodiště vedoucí do dalších místností v 1.PP.
Zde nalezneme prostornou vstupní místnost, širší chodbu se samostatným WC a technickou místnosti, a dále se dostaneme do největšího dolního prostoru o velikosti 30 m2 s okny vedoucími do dvora na parkoviště, okna jsou umístěna v tzv. aglickém dvorku.
Na podlahách je dlažba, okna jsou plastová, topení je centrální plynové.
Za domem i před domem je k dispozici dostatek parkovacích míst. Vozidlem lze zajet přímo k bočnímu vchodu do jednotky, takže lze pohodlně vyložit a naložit věci. Nebo lze prostor využít pro příjemné posezení. Vstup tímto vchodem do přízemí lze lehce upravit na bezbariérový. Na schodiště do suterénu je možné umístit rampu. Zastávka autobusu Na Petynce je 150 metrů od domu, tramvaj linek 22, 23 a 25 v docházkové vzdálenosti.
V případě zájmu o jakékoliv další informace a domluvení prohlídky mne kontaktujte.
Dle dokumentace je aktuálním typem využití prostor dílna nebo provozovna, pro přízemí je platné povolení stavby za účelem rekolaudace prostor na byt. V případě zájmu lze jednotku rozdělit na 2, kdy každá z nich může mít samostatný vstup.
V přízemí se nachází dvě veliké místnosti, k první z nich přiléhá toaleta s komorou, kde se dá zřídit sprcha či kuchyňka nebo šatna, druhá místnost má pak samostatný vstup do jednotky, kde se nachází schodiště vedoucí do dalších místností v 1.PP.
Zde nalezneme prostornou vstupní místnost, širší chodbu se samostatným WC a technickou místnosti, a dále se dostaneme do největšího dolního prostoru o velikosti 30 m2 s okny vedoucími do dvora na parkoviště, okna jsou umístěna v tzv. aglickém dvorku.
Na podlahách je dlažba, okna jsou plastová, topení je centrální plynové.
Za domem i před domem je k dispozici dostatek parkovacích míst. Vozidlem lze zajet přímo k bočnímu vchodu do jednotky, takže lze pohodlně vyložit a naložit věci. Nebo lze prostor využít pro příjemné posezení. Vstup tímto vchodem do přízemí lze lehce upravit na bezbariérový. Na schodiště do suterénu je možné umístit rampu. Zastávka autobusu Na Petynce je 150 metrů od domu, tramvaj linek 22, 23 a 25 v docházkové vzdálenosti.
V případě zájmu o jakékoliv další informace a domluvení prohlídky mne kontaktujte.
Další parametry
- silnice, mhd, bus
- 5
- mezonet
- 1
- Velmi dobrý
- Cihla
- osobní
Na tomto webu zpracováváme cookies potřebné pro jeho fungování a analytiku.