Prodej vily 373 m², pozemek 600 m²
Praha, Pplk. Nováčka












Popis
Ve spolupráci s developerem Vám nabízíme unikátní nemovitost, která propojuje výhody bydlení v rodinném domě a současně v údržbově nenáročné nemovitosti. Toužíte po vlastním domě v okrajové části Prahy, avšak nechcete do údržby investovat mnoho svého času a energie a rodinný dům je pro Vás jednoduše moc náročný? Přesně pro Vás je určena naše nabídka.
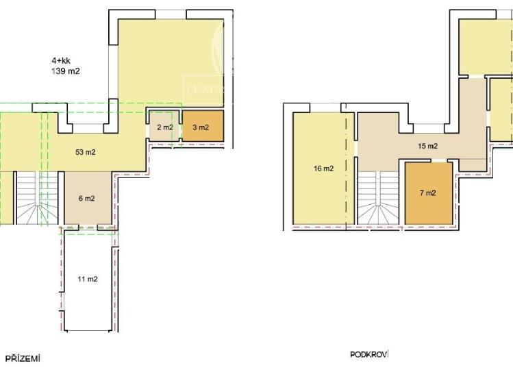
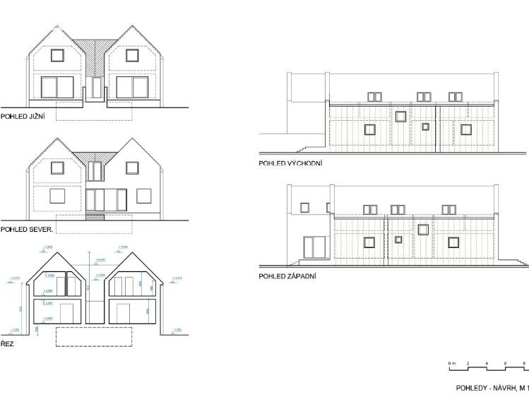
Nabízíme k prodeji 3 bytové jednotky ve vile LUXURY - nový developerský projekt na krásném místě v Praze 9 - Běchovicích. Jedná se o dvoupodlažní stavbu, ve které bude mít každý byt v dispozici 4+KK vlastní zahradu přes 200m2 (přesná plocha zahrady bude doplněna po zaměření geodetem) Jedná se o skvělou variantu pro rodiny s dětmi, jelikož se nachází v bezpečné a klidné lokalitě s blízkostí škol, parků a dalších atrakcí pro děti. Každý z bytů bude mít prostornou terasu, soukromé parkování pro 2 vozy a zachováno bude naprosté soukromí díky oplocení vlastní zahrady. Právě lokalita a umístění tohoto projektu je obrovskou přidanou hodnotou této nabídky, neboť najdete jen málo podobně krásných, útulných a bezpečných míst v této lokalitě a její staré zástavbě. K dispozici jsou:
Byt č.1 - 4KK 114m2 s vlastní zahradou přes 200m2, 2 parkovací stání
Byt č.2 - 4KK 119m2 s vlastní zahradou přes 200m2, 2 parkovací stání
Byt č.3 - 4KK 140m2 s vlastní zahradou přes 200m2, 2 parkovací stání
Možnost klientských změn v rámci vnitřního vybavení bytu. Kuchyňská linka není součástí. Tento bytový dům bude zhotoven ve vysoké kvalitě a s použitím vysokého standardu. Vytápění bude zajištěno tepelným čerpadlem (vz-vo) a elektrická energie řešena pomocí fotovoltaiky. Jedná se tedy mimo jiné o energeticky soběstačnou stavbu, jejíchž nízké provozní náklady jistě v budoucnu oceníte. Voda z řádu, popřípadě vlastní studna na závlahu zahrad. Kanalizace v řádu.
Předpokládaná kolaudace a předání 4Q2023 - 1Q2024
Pozemek, na kterém tato stavba bude zhotovena, se nachází v klidné a málo frekventované ulici v Praze 9 - Běchovicích. tato lokalita je vyhledávána především pro její klid, mnoho zeleně a sportovišť, plnou občanskou vybavenost, velmi rychlé spojení s centrem Prahy, ale také díky rychlému napojení na hlavní silniční tahy.
Více informací získáte u makléře. Financování hypotéčním úvěrem Vám rádi zajistíme u Vámi preferované banky za nejlepších podmínek na trhu.
Těšíme se na Vás - LUXURY REAL ESTATE CZ
Nabízíme k prodeji 3 bytové jednotky ve vile LUXURY - nový developerský projekt na krásném místě v Praze 9 - Běchovicích. Jedná se o dvoupodlažní stavbu, ve které bude mít každý byt v dispozici 4+KK vlastní zahradu přes 200m2 (přesná plocha zahrady bude doplněna po zaměření geodetem) Jedná se o skvělou variantu pro rodiny s dětmi, jelikož se nachází v bezpečné a klidné lokalitě s blízkostí škol, parků a dalších atrakcí pro děti. Každý z bytů bude mít prostornou terasu, soukromé parkování pro 2 vozy a zachováno bude naprosté soukromí díky oplocení vlastní zahrady. Právě lokalita a umístění tohoto projektu je obrovskou přidanou hodnotou této nabídky, neboť najdete jen málo podobně krásných, útulných a bezpečných míst v této lokalitě a její staré zástavbě. K dispozici jsou:
Byt č.1 - 4KK 114m2 s vlastní zahradou přes 200m2, 2 parkovací stání
Byt č.2 - 4KK 119m2 s vlastní zahradou přes 200m2, 2 parkovací stání
Byt č.3 - 4KK 140m2 s vlastní zahradou přes 200m2, 2 parkovací stání
Možnost klientských změn v rámci vnitřního vybavení bytu. Kuchyňská linka není součástí. Tento bytový dům bude zhotoven ve vysoké kvalitě a s použitím vysokého standardu. Vytápění bude zajištěno tepelným čerpadlem (vz-vo) a elektrická energie řešena pomocí fotovoltaiky. Jedná se tedy mimo jiné o energeticky soběstačnou stavbu, jejíchž nízké provozní náklady jistě v budoucnu oceníte. Voda z řádu, popřípadě vlastní studna na závlahu zahrad. Kanalizace v řádu.
Předpokládaná kolaudace a předání 4Q2023 - 1Q2024
Pozemek, na kterém tato stavba bude zhotovena, se nachází v klidné a málo frekventované ulici v Praze 9 - Běchovicích. tato lokalita je vyhledávána především pro její klid, mnoho zeleně a sportovišť, plnou občanskou vybavenost, velmi rychlé spojení s centrem Prahy, ale také díky rychlému napojení na hlavní silniční tahy.
Více informací získáte u makléře. Financování hypotéčním úvěrem Vám rádi zajistíme u Vámi preferované banky za nejlepších podmínek na trhu.
Těšíme se na Vás - LUXURY REAL ESTATE CZ
Další parametry
- Ne
- 2
- 4
- plynovod
- veřejná kanalizace
- 600 m2
- 2
- č. 264/2020 Sb.
- 245 m2
- 600 m2
- Novostavba
- Cihla
- B - Velmi úsporná
Na tomto webu zpracováváme cookies potřebné pro jeho fungování a analytiku.