Prodej bytu 4+1 150 m²
Praha, Na Plzeňce





















Popis
- Tento popis je v:
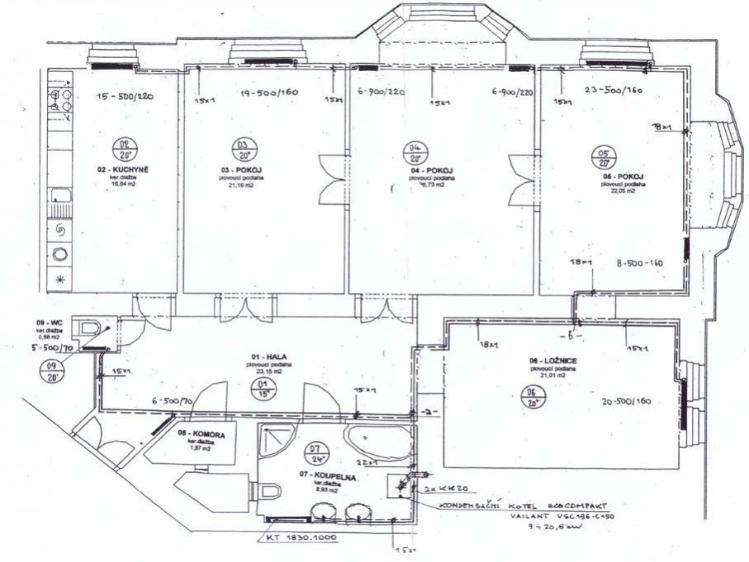
Exkluzivně nabízíme prodej prostorného, světlého bytu 4+1 (150 m2) po rekonstrukci v Praze 5. Byt s nádherným výhledem na Vyšehrad a orientací na jih a východ je situován ve 3.podlaží krásného secesního domu s novou fasádou, střechou a výtahem. Disponuje prostornou halou (23m2), kuchyní (17 m2), obývacím pokojem (27 m2), ložnicí s vestavěnými skříněmi (21 m2), dvěma dalšími pokoji (21 a 22 m2), koupelnou s vanou, sprchovým koutem, dvěma umyvadly a WC (9 m2), technickou místností a samostatným WC s umyvadlem. Všechny pokoje jsou průchozí.
V kuchyni je sporák s indukční sklokeramickou deskou, digestoř, trouba, myčka, lednice s mrazákem a pračka. Plovoucí podlahy a dlažba v kuchyni, v koupelně, WC a u vstupu do bytu. Podlahové vytápění v koupelně a perfektně odizolovaná okna, vytápění plynovým kotlem Buderus umístěným v technické místnosti, bezpečnostní dveře Next, internet. Možnost uskladnění kol, kočárku atd. ve společném sklepě.
Parking před domem (modré zóny). Vynikající dopravní dostupnost - byt je situován v klidné ulici pražského Smíchova mezi stanicemi metra Smíchovské nádraží a Anděl a je ideální rovněž pro reprezentaci a kancelář firmy nebo jako investice.
Cena: 21.800.000 Kč.
Energetická náročnost budovy: E.
ID nemovitosti DDO0269-0002.
V kuchyni je sporák s indukční sklokeramickou deskou, digestoř, trouba, myčka, lednice s mrazákem a pračka. Plovoucí podlahy a dlažba v kuchyni, v koupelně, WC a u vstupu do bytu. Podlahové vytápění v koupelně a perfektně odizolovaná okna, vytápění plynovým kotlem Buderus umístěným v technické místnosti, bezpečnostní dveře Next, internet. Možnost uskladnění kol, kočárku atd. ve společném sklepě.
Parking před domem (modré zóny). Vynikající dopravní dostupnost - byt je situován v klidné ulici pražského Smíchova mezi stanicemi metra Smíchovské nádraží a Anděl a je ideální rovněž pro reprezentaci a kancelář firmy nebo jako investice.
Cena: 21.800.000 Kč.
Energetická náročnost budovy: E.
ID nemovitosti DDO0269-0002.
Další parametry
- lokální plynové
- 5
- 3
- Velmi dobrý
- Cihla
- E - Nehospodárná
- osobní
Na tomto webu zpracováváme cookies potřebné pro jeho fungování a analytiku.