Аренда квартиры 5+1 197 m²
Praha, Na Perštýně
Комиссия агентства составляет одну месячную аренду плюс 21% НДС.
- Это описание есть в:











Описание
- Это описание есть в:
Предлагается в аренду светлая и просторная квартира без мебели планировки 5+1 площадью 197 м² с небольшим балконом, расположенная на 3 этаже (4 надземный этаж) отреставрированного дома в стиле модерн с лифтом в престижном районе Прага 1 – Нове Место, на улице На Перштине. Квартира предлагает представительское проживание в самом центре Праги с уникальной атмосферой исторической застройки и отличной инфраструктурой.
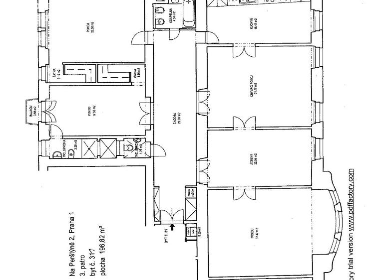
Планировка включает просторную прихожую, гостиную, проходную столовую или кабинет, полностью оборудованную кухню, главную спальню с гардеробной, собственным балконом и ванной комнатой (душ, туалет), две дополнительные спальни (одна с гардеробной), вторую ванную комнату (ванна, туалет, биде) и отдельный туалет. Планировка обеспечивает удобное разделение жилой и приватной зоны и предлагает достаточно пространства даже для требовательных арендаторов. Оснащение включает кухонный гарнитур с техникой (стеклокерамическая плита, духовка, посудомоечная машина, холодильник с морозильной камерой, микроволновая печь), высокие лепные потолки, большие окна, паркет, плитку и газовый котёл. Интерьер выглядит элегантно, просторно и сохраняет классический городской характер.
Район Прага 1 – Нове Место относится к самым престижным адресам города благодаря сочетанию исторической атмосферы, развитой инфраструктуры и отличной транспортной доступности. В пешей доступности находятся станции метро Národní třída (линия B) и Můstek (линии A/B), а также трамвайные остановки. Рядом расположены торговый центр Quadrio, многочисленные рестораны, кафе, магазины и культурные объекты, включая Национальный театр. Для отдыха подойдут Франтишканский сад, Вацлавская площадь и Староместская площадь. Идеальное место для комфортной жизни в центре Праги.
Арендная плата составляет 96 000 CZK/месяц, фиксированные услуги 900 CZK/чел./месяц, вода 350 CZK/чел./месяц, электричество и газ оплачиваются отдельно. Залог составляет сумму двух месячных платежей.
Минимальный срок аренды — 1 год. Краткосрочная аренда (Airbnb) запрещена.
Класс энергоэффективности здания — G.
Планировка включает просторную прихожую, гостиную, проходную столовую или кабинет, полностью оборудованную кухню, главную спальню с гардеробной, собственным балконом и ванной комнатой (душ, туалет), две дополнительные спальни (одна с гардеробной), вторую ванную комнату (ванна, туалет, биде) и отдельный туалет. Планировка обеспечивает удобное разделение жилой и приватной зоны и предлагает достаточно пространства даже для требовательных арендаторов. Оснащение включает кухонный гарнитур с техникой (стеклокерамическая плита, духовка, посудомоечная машина, холодильник с морозильной камерой, микроволновая печь), высокие лепные потолки, большие окна, паркет, плитку и газовый котёл. Интерьер выглядит элегантно, просторно и сохраняет классический городской характер.
Район Прага 1 – Нове Место относится к самым престижным адресам города благодаря сочетанию исторической атмосферы, развитой инфраструктуры и отличной транспортной доступности. В пешей доступности находятся станции метро Národní třída (линия B) и Můstek (линии A/B), а также трамвайные остановки. Рядом расположены торговый центр Quadrio, многочисленные рестораны, кафе, магазины и культурные объекты, включая Национальный театр. Для отдыха подойдут Франтишканский сад, Вацлавская площадь и Староместская площадь. Идеальное место для комфортной жизни в центре Праги.
Арендная плата составляет 96 000 CZK/месяц, фиксированные услуги 900 CZK/чел./месяц, вода 350 CZK/чел./месяц, электричество и газ оплачиваются отдельно. Залог составляет сумму двух месячных платежей.
Минимальный срок аренды — 1 год. Краткосрочная аренда (Airbnb) запрещена.
Класс энергоэффективности здания — G.
Другие параметры
- поезд, автомагистраль, дорожное движение, mhd, автобус
- телефон, интернет
- асфальтовая
- газопровод
- общественная канализация
- 6
- č. 78/2013 Sb.
- 230V
- 640 m2
- 3 m2
- 4
- Очень хорошее
- Смешанная
- G - Очень низкий
- личное
На этом веб-сайте мы обрабатываем файлы cookie, необходимые для его работы и анализа.