Продажа семейного дома 85 m², участок 237 m²
Třebovle




























Описание
K prodeji nabízíme rodinný dům v obci Třebovle.
O obci Třebovle:
Třebovle je obec ležící v okrese Kolín. Obec je obklopena malebnou krajinou, která vybízí k procházkám a cykloturistice. V blízkosti se nacházejí lesy a pole, které nabízejí únik od shonu velkoměsta. Třebovle je snadno dostupná z Kolína i okolních obcí.
Dům je určen k celkové rekonstrukci.
- plastová okna
- elektrické přímotopy + krbová kamna
- ohřev vody: bojler
- aktuálně neobyvatelné podkroví
- nezateplená střecha s pálenými taškami
- možnost parkování na pozemku
- dům není zatížen zástavním právem ani jiným právním problémem
Dojezd do:
Kolína: 20 min
Český Brod: 13 min
Praha - Černý Most (metro B): 35 min
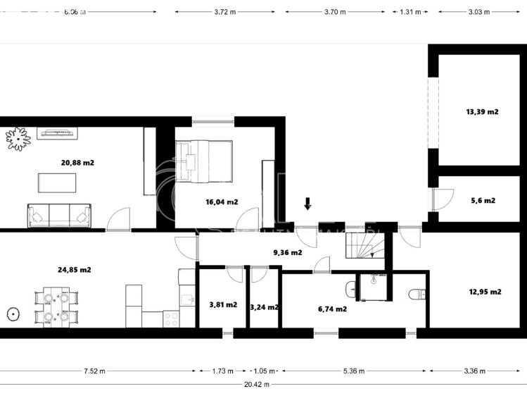
Orientační velikost místností a ostatních prostor:
Ložnice: 16,04 m2
Obývací pokoj + kuchyňský kout: 24,85 m2
Pokoj: 20,88 m2
Koupelna: 6,74 m2
Komora1: 3,81 m2
Komora2: 3,24 m2
Chodba: 9,36 m2
--------------------------
Celkem: 84,92 m2
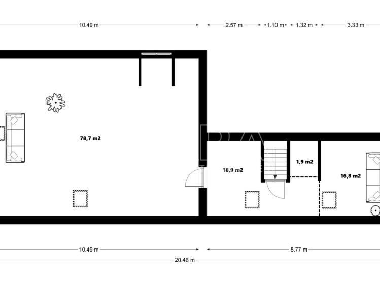
+ podkroví: 38,6 m2
+ půda: 78,7 m2
+ technická místnost: 12,95 m2
+ kumbál: 5,6 m2
+ otevřená dílna: 13,39 m2
O obci Třebovle:
Třebovle je obec ležící v okrese Kolín. Obec je obklopena malebnou krajinou, která vybízí k procházkám a cykloturistice. V blízkosti se nacházejí lesy a pole, které nabízejí únik od shonu velkoměsta. Třebovle je snadno dostupná z Kolína i okolních obcí.
Dům je určen k celkové rekonstrukci.
- plastová okna
- elektrické přímotopy + krbová kamna
- ohřev vody: bojler
- aktuálně neobyvatelné podkroví
- nezateplená střecha s pálenými taškami
- možnost parkování na pozemku
- dům není zatížen zástavním právem ani jiným právním problémem
Dojezd do:
Kolína: 20 min
Český Brod: 13 min
Praha - Černý Most (metro B): 35 min
Orientační velikost místností a ostatních prostor:
Ložnice: 16,04 m2
Obývací pokoj + kuchyňský kout: 24,85 m2
Pokoj: 20,88 m2
Koupelna: 6,74 m2
Komora1: 3,81 m2
Komora2: 3,24 m2
Chodba: 9,36 m2
--------------------------
Celkem: 84,92 m2
+ podkroví: 38,6 m2
+ půda: 78,7 m2
+ technická místnost: 12,95 m2
+ kumbál: 5,6 m2
+ otevřená dílna: 13,39 m2
Другие параметры
- электрический обогреватель (прямого нагрева), дровяная печь
- электрический обогреватель (прямого нагрева), дровяная печь
- электрический водонагреватель
- автомагистраль, дорожное движение, автобус
- Нет
- 2
- 4
- общественная канализация
- 1
- č. 264/2020 Sb.
- 230V
- 82 m2
- 237 m2
- Хорошее
- Смешанная
- G - Очень низкий
На этом веб-сайте мы обрабатываем файлы cookie, необходимые для его работы и анализа.