Продажа торгового помещеня 485 m²
Kralupy nad Vltavou, Hostivítova 971






























Описание
- Это описание есть в:
Для нас большая честь предложить вам эксклюзивное посредничество в продаже исключительного многофункционального коммерческого здания в части деревни Кралупы-над-Влтавой, построенного в 1976 году, расположенного на уединенном, прибыльном участке горы Гостибейк. Одноэтажное кирпичное здание всегда использовалось как ресторан и всегда было платой за исключительное здание, расположенное в одном из самых красивых мест Кралуп. Здесь проходило множество торжеств, свадеб, дней рождений и т. д. мероприятий, которые непосредственно предлагает это исключительное место. На объект готовится новая проектная документация по модернизации объекта с существующим использованием ресторана с открытым садом, см. визуализацию, но есть несколько вариантов по пространственной планировке. Здание может продолжать служить рестораном, центром досуга и отдыха для детей, медицинским учреждением или переоборудовано в семейный дом. Всю проектную документацию мы вышлем по запросу на электронную почту и она будет передана будущему владельцу для дальнейшего использования.Общая площадь земельного участка 1336 м2, застроенная площадь 414 м2, полезная площадь 485 м2. м2. Частью собственности является окружающая земля, которая частично использовалась под парковку, сад или место для отдыха на свежем воздухе. Еще одно бесплатное парковочное место для ресторана находится рядом с рестораном, находящимся в муниципальной собственности, куда можно добраться по муниципальному подъезду по улице Гостивитова.
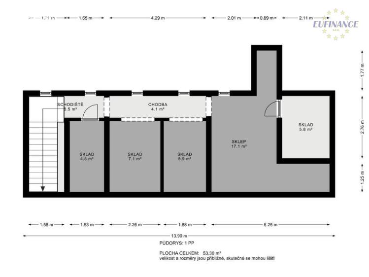
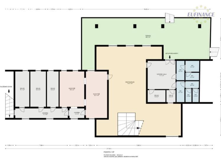
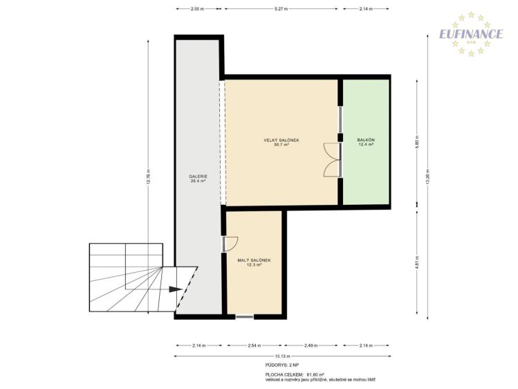
Здание подключено ко всем инженерным сетям, т. е. газу, электричеству 230, 400 В, городской канализации, водоснабжению и телекоммуникационным сетям, обеспечено сигнализацией, возможностью подключения к ПКО. Планировка здания (подвал, 1 и 2 этаж) можно посмотреть в виртуальной экскурсии по интерьеру. Здание отапливается газовым конденсационным котлом и отапливается в зимний период.Это уникальное предложение и отличная инвестиция для продолжения текущей деятельности или для других коммерческих услуг. Объект в настоящее время не используется и доступен для немедленной передачи.В Кралупах имеется вся инфраструктура: детские сады, начальные школы, магазины, супермаркеты, поликлиника, больница, почта, банки, социальные и спортивные центры и т. д. в центре города есть железнодорожный вокзал с прямым сообщением за 25 минут до центра Праги до Масариково и Главни Надражи, а также автобусные остановки PID с транспортом до ближайших метро Ладви, Летняны, Просек, Стржижков, Боржиславка, Дейвицка и т. д. Оформление кредита вкл. бесплатные юридические услуги. В слу
Здание подключено ко всем инженерным сетям, т. е. газу, электричеству 230, 400 В, городской канализации, водоснабжению и телекоммуникационным сетям, обеспечено сигнализацией, возможностью подключения к ПКО. Планировка здания (подвал, 1 и 2 этаж) можно посмотреть в виртуальной экскурсии по интерьеру. Здание отапливается газовым конденсационным котлом и отапливается в зимний период.Это уникальное предложение и отличная инвестиция для продолжения текущей деятельности или для других коммерческих услуг. Объект в настоящее время не используется и доступен для немедленной передачи.В Кралупах имеется вся инфраструктура: детские сады, начальные школы, магазины, супермаркеты, поликлиника, больница, почта, банки, социальные и спортивные центры и т. д. в центре города есть железнодорожный вокзал с прямым сообщением за 25 минут до центра Праги до Масариково и Главни Надражи, а также автобусные остановки PID с транспортом до ближайших метро Ладви, Летняны, Просек, Стржижков, Боржиславка, Дейвицка и т. д. Оформление кредита вкл. бесплатные юридические услуги. В слу
Другие параметры
- местный источник воды
- поезд, дорожное движение, mhd, автобус
- кабельная проводка
- асфальтовая
- 2
- центральное электрическое
- газопровод
- общественная канализация
- 2
- č. 264/2020 Sb.
- 230V
- 414 m2
- Очень хорошее
- Кирпичное
- G - Очень низкий
- Да
- Да
На этом веб-сайте мы обрабатываем файлы cookie, необходимые для его работы и анализа.