Продажа семейного дома 116 m², участок 1012 m²
Neveklov





















Описание
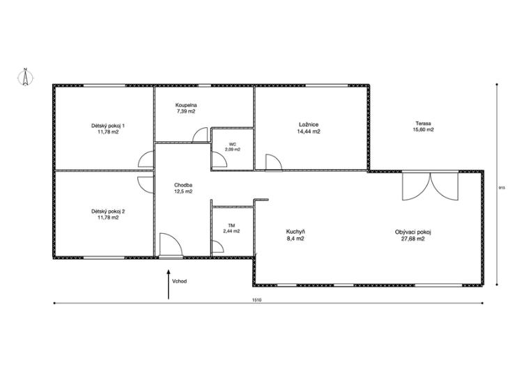
Nabízíme k prodeji rodinný dům 4+kk v části obce Nebřich - Neveklov, okres Benešov. Jednopodlažní dřevostavba ve velmi dobrém stavu nabízí komfortní a moderní rodinné bydlení s krásnými výhledy do okolní přírody. Dům je v osobním vlastnictví a dispozičně nabízí prostorný obývací pokoj propojený s kuchyní, tři ložnice a praktické zázemí v technické místnosti. Výhodou jsou také dvě WC a koupelna s velkým sprchovým koutem. Pochozí půda s dřevěnými krovy pak představuje možnost přestavby v bytovou jednotku nebo úložný prostor.
Interiér je částečně vybaven, výraznou předností je krásná kuchyňská linka vybavená moderními spotřebiči. Podlahové vytápění je zajištěno tepelným čerpadlem, což přispívá k nízkým provozním nákladům a komfortnímu vytápění. Na zahradě se nachází bazén, který doplňuje volnočasové možnosti a zvyšuje atraktivitu nemovitosti. Na zahradě je také založen ovocný sad (švestka, broskev, jabloně, třešně, rakytník), ale najde se tu i prostor pro pěstování vlastní zeleniny. Vlastní zdroj dešťové vody na zálivku přispívá k větší udržitelnosti a snížení nákladů.
Voda v domě je zajišťována z vrtané studny. V domě je i komínová vložka, která je připravená na připojení krbových kamen.
Technické a další informace:
Elektřina: 230 i 400 V. vlastní zdroj Fotovoltaika o výkonu 5,6kWp a bateriové uložiště o kapacitě 11,2kWh. V případě výpadku sítě je dům plně zálohovaný bateriemi.
stav objektu — velmi dobrý, rok výstavby 2020
zdroj topení — tepelné čerpadlo
topné těleso — podlahové vytápění
druh objektu — dřevostavba
Stavba je celkově velmi ekologická a navržena s důrazem na nízké provozní náklady a dlouhodobou energetickou stabilitu.
Nemovitost je vhodná pro zájemce hledající klidné bydlení s kontaktem s přírodou a komfortními technologiemi vytápění. Přátelské až komunitní sousedské prostředí v klidné rezidenční části. Lokalita poskytuje pěkné výhledy a dostatek soukromí.
K nastěhování po domluvě.
V Neveklově, který je vzdálen necelých 10 km najdete veškerou občanskou vybavenost. Cesta z Prahy Vám zabere cca 40min., cesta z Benešova cca 20min.
Pokud jste rozhodnuti pro změnu svého bydlení, neváhejte nás kontaktovat a domluvit si prohlídku.
Interiér je částečně vybaven, výraznou předností je krásná kuchyňská linka vybavená moderními spotřebiči. Podlahové vytápění je zajištěno tepelným čerpadlem, což přispívá k nízkým provozním nákladům a komfortnímu vytápění. Na zahradě se nachází bazén, který doplňuje volnočasové možnosti a zvyšuje atraktivitu nemovitosti. Na zahradě je také založen ovocný sad (švestka, broskev, jabloně, třešně, rakytník), ale najde se tu i prostor pro pěstování vlastní zeleniny. Vlastní zdroj dešťové vody na zálivku přispívá k větší udržitelnosti a snížení nákladů.
Voda v domě je zajišťována z vrtané studny. V domě je i komínová vložka, která je připravená na připojení krbových kamen.
Technické a další informace:
Elektřina: 230 i 400 V. vlastní zdroj Fotovoltaika o výkonu 5,6kWp a bateriové uložiště o kapacitě 11,2kWh. V případě výpadku sítě je dům plně zálohovaný bateriemi.
stav objektu — velmi dobrý, rok výstavby 2020
zdroj topení — tepelné čerpadlo
topné těleso — podlahové vytápění
druh objektu — dřevostavba
Stavba je celkově velmi ekologická a navržena s důrazem na nízké provozní náklady a dlouhodobou energetickou stabilitu.
Nemovitost je vhodná pro zájemce hledající klidné bydlení s kontaktem s přírodou a komfortními technologiemi vytápění. Přátelské až komunitní sousedské prostředí v klidné rezidenční části. Lokalita poskytuje pěkné výhledy a dostatek soukromí.
K nastěhování po domluvě.
V Neveklově, který je vzdálen necelých 10 km najdete veškerou občanskou vybavenost. Cesta z Prahy Vám zabere cca 40min., cesta z Benešova cca 20min.
Pokud jste rozhodnuti pro změnu svého bydlení, neváhejte nás kontaktovat a domluvit si prohlídku.
Другие параметры
- тёплый пол
- тепловой насос
- тепловой насос
- Буровая скважина
- O2
- дорожное движение, автобус
- интернет
- непроходимая
- Нет
- 4
- 4
- очистные сооружения для всего объекта
- 1012 m2
- č. 78/2013 Sb.
- 230V
- 1012 m2
- Очень хорошее
- Деревянная
- B - Высокий
- Показать энергетический сертификат здания
На этом веб-сайте мы обрабатываем файлы cookie, необходимые для его работы и анализа.