Аренда офисного помещения 122 m²
Praha, Týnská






















Описание
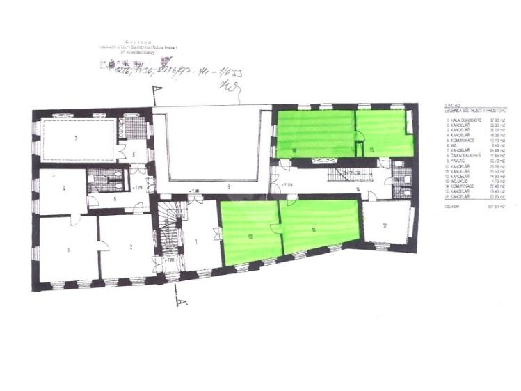
Ve výhradním zastoupení vlastníka nemovitosti vám nabízím k dlouhodobému pronájmu kancelářské prostory na Starém Městě. Jedná se o velmi prakticky dispozičně členěné kanceláře, které se nachází ve 2. patře pečlivě udržovaného historického činžovního domu nacházejícího se v srdci Prahy na rohu ulic Týnská a Malá Štupartská. Jedná se celkem o čtyři místností o výměře 95 m2, dále jsou zde k dispozici společné prostory (vestibul s kuchyňkou a WC) o ploše 27 m2. Součástí nájmu je také krytá pavlač s výhledem do vnitrobloku. Lze pronajmout v celku, ale i po menších částech (cena bude sjednána individuálně). Zabezpečovací systém s napojením na PCO, datové rozvody zavedeny. Prostory jsou ihned k nastěhování. Výborné dopravní spojení, reprezentativní nemovitost. Vratná jistota (kauce) ve výši 40.000 Kč, provize RK 1 nájemné + DPH. Nájemné za celek 29.900 Kč/měs. + DPH + zúčtovatelné zálohy za služby a energie ve výši 11.000 Kč + DPH.
Другие параметры
- дистанционное водоснабжение
- 1
- дорожное движение, mhd
- телефон, интернет
- 122 m2
- 1
- центральное дистанционное
- 4
- 230V
- 3
- Очень хорошее
- Кирпичное
- G - Очень низкий
На этом веб-сайте мы обрабатываем файлы cookie, необходимые для его работы и анализа.