Продажа семейного дома 131 m², участок 577 m²
Brandýs nad Labem-Stará Boleslav, Karla Lípy 856/4












































Описание
Přáli byste si bydlet v místě s nádechem historie a ideálně si ho dotvořit podle svých představ? Možná mám pro vás váš budoucí domov! Nabízím ke koupi samostatně stojící rodinný dům z období první republiky, situovaný ve velmi klidné a vyhledávané lokalitě Brandýsa nad Labem, s výbornou dostupností do Prahy. Dům je určen k totální rekonstrukci, což dává budoucímu majiteli jedinečnou možnost vytvořit si bydlení přesně podle vlastních představ a zachovat přitom kouzlo původní architektury.
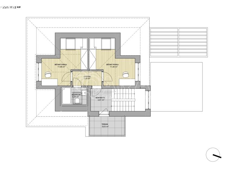
Dům má aktuálně dispozici 4+1 s užitnou plochou 131,2 m², nachází se na pozemku o celkové výměře 577 m².
V přízemí najdete obývací pokoj s kuchyní, koupelnu a samostatnou toaletu. Ve druhém patře se nacházejí dva samostatné pokoje a zasklená zimní zahrada, která je ideální pro vytvoření pracovny, ateliéru nebo klidové relaxační místnosti. Dům je částečně podsklepen, k dispozici je zde malý sklípek.
Dům je vytápěn plynovým kotlem, je napojen na vodovod, kanalizaci i elektřinu.
K dispozici je mimo jiné vypracovaná studie k vybudování přístavby nabízející další potenciál rozšíření obytné plochy.
Zahrada má optimální velikost. Je dostatečně velká pro údržbu, relax i aktivní trávení volného času. Dominantou je vzrostlý ořešák a několik ovocných stromů, které vytvářejí příjemnou atmosféru a dostatek soukromí.
Brandýs nad Labem nabízí kompletní občanskou vybavenost v docházkové či krátké dojezdové vzdálenosti:
- mateřské, základní i střední školy
- obchody, supermarkety, restaurace a kavárny
- lékařské ordinace, lékárny
- sportovní zařízení, dětská hřiště
- zámek Brandýs nad Labem, cyklostezky a procházky podél řeky Labe
- spousta jezer k letnímu přírodnímu koupání
Velkou výhodou je také rychlé napojení na výpadovku směrem na Prahu a dobrá dostupnost veřejnou dopravou, což z lokality činí ideální místo pro klidné rodinné bydlení s výhodami města.
Nemovitost je ideální volbou pro ty, kteří hledají dům s charakterem, historií a velkým potenciálem v jedné z nejžádanějších lokalit v blízkém okolí Prahy. Tak se ozvěte a domluvte si prohlídku!
Dům má aktuálně dispozici 4+1 s užitnou plochou 131,2 m², nachází se na pozemku o celkové výměře 577 m².
V přízemí najdete obývací pokoj s kuchyní, koupelnu a samostatnou toaletu. Ve druhém patře se nacházejí dva samostatné pokoje a zasklená zimní zahrada, která je ideální pro vytvoření pracovny, ateliéru nebo klidové relaxační místnosti. Dům je částečně podsklepen, k dispozici je zde malý sklípek.
Dům je vytápěn plynovým kotlem, je napojen na vodovod, kanalizaci i elektřinu.
K dispozici je mimo jiné vypracovaná studie k vybudování přístavby nabízející další potenciál rozšíření obytné plochy.
Zahrada má optimální velikost. Je dostatečně velká pro údržbu, relax i aktivní trávení volného času. Dominantou je vzrostlý ořešák a několik ovocných stromů, které vytvářejí příjemnou atmosféru a dostatek soukromí.
Brandýs nad Labem nabízí kompletní občanskou vybavenost v docházkové či krátké dojezdové vzdálenosti:
- mateřské, základní i střední školy
- obchody, supermarkety, restaurace a kavárny
- lékařské ordinace, lékárny
- sportovní zařízení, dětská hřiště
- zámek Brandýs nad Labem, cyklostezky a procházky podél řeky Labe
- spousta jezer k letnímu přírodnímu koupání
Velkou výhodou je také rychlé napojení na výpadovku směrem na Prahu a dobrá dostupnost veřejnou dopravou, což z lokality činí ideální místo pro klidné rodinné bydlení s výhodami města.
Nemovitost je ideální volbou pro ty, kteří hledají dům s charakterem, historií a velkým potenciálem v jedné z nejžádanějších lokalit v blízkém okolí Prahy. Tak se ozvěte a domluvte si prohlídku!
Другие параметры
- дистанционное водоснабжение
- радиаторы
- газовый конденсационный котёл
- газовый конденсационный котёл
- дорожное движение
- бетонная
- Нет
- 2
- 4
- газопровод
- общественная канализация
- 2
- č. 264/2020 Sb.
- 230V
- 10 m2
- 82 m2
- 577 m2
- Перед реконструкцией
- Кирпичное
- G - Очень низкий
На этом веб-сайте мы обрабатываем файлы cookie, необходимые для его работы и анализа.