Продажа квартиры 2+1 64 m²
Chomutov, Bezručova



























Описание
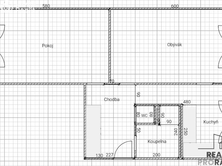
Nabízíme exkluzivně na prodej byt 2+1 v centru Chomutova na tzv. Dehtochemě v Bezručově ulici. Byt se nachází na 3. nadzemním podlaží a má výměru 64,74 m2. Na chodbě v mezipatře se nachází komora na uskladnění věcí a dále k bytu náleží sklepní kóje. Sklepy se nacházejí v 1. nadzemním podlaží a jsou zabezpečeny mříží na vstupních dveřích ke sklepům.
Bytová jednotka byla před časem zrekonstruovaná, jádro je vyzděné. Koupelna a WC jsou řešeny samostatně. V koupelně je sprchový kout a dostatek prostoru na pračku. Interiérové dveře jsou posuvné. V chodbě je velká šatní skříň a další skříň je k dispozici v jednom z pokojů.
V kuchyni se nachází zachovalá rohová kuchyňská linka s myčkou a naproti lince je ve stejném tónu úložná skříňka. Do obývacího pokoje jsou dva vstupy, takže je možné ho přepažit na dvě místnosti. Okno je stejně jako v kuchyni směrem do ulice. Druhý pokoj má okno do vnitrobloku.
V blízkosti je veškerá občanská vybavenost včetně MHD, autobusové a vlakové dopravy. Naproti přes ulici je obchod Billa, dále divadlo s prostorným městským parkem. Do Bezručova údolí, které je oblíbené na procházky a vyjížďky na kole nebo bruslích, se dostanete za pár minut.
Byt doporučujeme vzhledem k jeho poloze, nízkým nákladům a příjemně řešeným dispozicím. Pomůžeme Vám rádi s financováním jeho koupě. Ohledně prohlídky, prosím, kontaktujte makléře nemovitosti.
Bytová jednotka byla před časem zrekonstruovaná, jádro je vyzděné. Koupelna a WC jsou řešeny samostatně. V koupelně je sprchový kout a dostatek prostoru na pračku. Interiérové dveře jsou posuvné. V chodbě je velká šatní skříň a další skříň je k dispozici v jednom z pokojů.
V kuchyni se nachází zachovalá rohová kuchyňská linka s myčkou a naproti lince je ve stejném tónu úložná skříňka. Do obývacího pokoje jsou dva vstupy, takže je možné ho přepažit na dvě místnosti. Okno je stejně jako v kuchyni směrem do ulice. Druhý pokoj má okno do vnitrobloku.
V blízkosti je veškerá občanská vybavenost včetně MHD, autobusové a vlakové dopravy. Naproti přes ulici je obchod Billa, dále divadlo s prostorným městským parkem. Do Bezručova údolí, které je oblíbené na procházky a vyjížďky na kole nebo bruslích, se dostanete za pár minut.
Byt doporučujeme vzhledem k jeho poloze, nízkým nákladům a příjemně řešeným dispozicím. Pomůžeme Vám rádi s financováním jeho koupě. Ohledně prohlídky, prosím, kontaktujte makléře nemovitosti.
Другие параметры
- дистанционное водоснабжение
- радиаторы
- центральное отопление (централизованное)
- поезд, автомагистраль, дорожное движение, mhd, автобус
- асфальтовая
- 1
- газопровод
- общественная канализация
- 10
- 102 kWh/m2
- č. 264/2020 Sb.
- 230V
- 3
- Очень хорошее
- Панельное
- D - Нормальный
- личное
- Показать энергетический сертификат здания
На этом веб-сайте мы обрабатываем файлы cookie, необходимые для его работы и анализа.