Продажа квартиры 2+1 54 m²
Praha, náměstí Na Balabence 1431/6



































Описание
Tento byt Vás zaujme, ať už hledáte byt na investici či na pozdější vlastní bydlení. To říkám hned na začátku, neboť zhruba 2 roky (nebo po domluvě i déle) zde spolumajitelka bytu chce zůstat ještě bydlet. Samozřejmě počítá s hrazením nájemného.
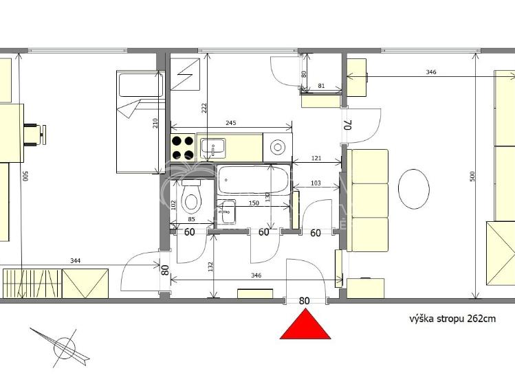
Byt, který Vám teď představím, má ideální dispozici 2+1, pokoje jsou neprůchozí. Rozmístění místností naleznete v přiloženém orientačním půdorysu, kóty ověřené laserovým zaměřovačem. Celková plocha bytu činí 54 m2 + sklep. Byt je situován do 2. patra bytového domu s výtahem a má východní orientaci do klidného parku (výhled z místností naleznete ve fotogalerii). Společenství vlastníků funguje velmi dobře, spravuje celkem 4 vchody. Hospodaření SV je nastaveno tak, aby se udržely nízké provozní náklady (měsíční příspěvek do fondu oprav činí 21Kč/m2). Aktuálně je dům po celkové revitalizaci, je kvalitně zateplen včetně střechy, má vlastní kotelnu (nízké náklady na ohřev vody a topení), nové stoupačky, plastová okna, přípravu na předokenní žaluzie, zrenovované lodžie, vymalované společné vstupní prostory, atd.
V okolí domu je veškerá občanská vybavenost. Přímo u domu je park s dětským hřištěm, základní škola se nachází pouze přes park, v blízkosti jsou mateřské školy, nedaleko je poliklinika, O2 Arena, Obchodní centrum Harfa a mnoho dalších obchodů a služeb. Další výhodou lokality je dopravní dostupnost hromadnou dopravou po metropoli (u domu se nachází zastávka tramvaje „Balabenka“, metro trasa „B“ stanice Palmovka, nebo stanice Českomoravská jsou v docházkové vzdálenosti cca 10 min.). Parkování je možné na ulici před domem (lokalita s parkovacími zónami pro rezidenty – modrá zóna).
Byt má nové vstupní bezpečnostní dveře. Přestože je byt ihned obyvatelný, je v původním stavu s umakartovým jádrem. Současné majitelce to nijak nevadí. Doporučila bych však jeho následnou kompletní rekonstrukci podle Vašich představ. Dřevěné parkety v obytných místnostech jsou zdravé, jen by potřebovaly nový lak. Byt má po rekonstrukci potenciál pohodlného bydlení o žádané dispozici 2+1.
Pokud máte k nabídce jakékoliv dotazy, ráda Vám je zodpovím nebo se můžeme na byt společně rovnou zajít podívat. Těším se na Vás.
Byt, který Vám teď představím, má ideální dispozici 2+1, pokoje jsou neprůchozí. Rozmístění místností naleznete v přiloženém orientačním půdorysu, kóty ověřené laserovým zaměřovačem. Celková plocha bytu činí 54 m2 + sklep. Byt je situován do 2. patra bytového domu s výtahem a má východní orientaci do klidného parku (výhled z místností naleznete ve fotogalerii). Společenství vlastníků funguje velmi dobře, spravuje celkem 4 vchody. Hospodaření SV je nastaveno tak, aby se udržely nízké provozní náklady (měsíční příspěvek do fondu oprav činí 21Kč/m2). Aktuálně je dům po celkové revitalizaci, je kvalitně zateplen včetně střechy, má vlastní kotelnu (nízké náklady na ohřev vody a topení), nové stoupačky, plastová okna, přípravu na předokenní žaluzie, zrenovované lodžie, vymalované společné vstupní prostory, atd.
V okolí domu je veškerá občanská vybavenost. Přímo u domu je park s dětským hřištěm, základní škola se nachází pouze přes park, v blízkosti jsou mateřské školy, nedaleko je poliklinika, O2 Arena, Obchodní centrum Harfa a mnoho dalších obchodů a služeb. Další výhodou lokality je dopravní dostupnost hromadnou dopravou po metropoli (u domu se nachází zastávka tramvaje „Balabenka“, metro trasa „B“ stanice Palmovka, nebo stanice Českomoravská jsou v docházkové vzdálenosti cca 10 min.). Parkování je možné na ulici před domem (lokalita s parkovacími zónami pro rezidenty – modrá zóna).
Byt má nové vstupní bezpečnostní dveře. Přestože je byt ihned obyvatelný, je v původním stavu s umakartovým jádrem. Současné majitelce to nijak nevadí. Doporučila bych však jeho následnou kompletní rekonstrukci podle Vašich představ. Dřevěné parkety v obytných místnostech jsou zdravé, jen by potřebovaly nový lak. Byt má po rekonstrukci potenciál pohodlného bydlení o žádané dispozici 2+1.
Pokud máte k nabídce jakékoliv dotazy, ráda Vám je zodpovím nebo se můžeme na byt společně rovnou zajít podívat. Těším se na Vás.
Другие параметры
- дистанционное водоснабжение
- радиаторы
- оптика
- mhd
- асфальтовая
- 1
- газопровод
- общественная канализация
- 7
- č. 264/2020 Sb.
- 230V
- 1 m2
- 54 m2
- 3
- Очень хорошее
- Кирпичное
- D - Нормальный
- личное
На этом веб-сайте мы обрабатываем файлы cookie, необходимые для его работы и анализа.