Аренда квартиры 3+KK 65 m²
Brno, Řeznická 513/3
















Описание
Nabízíme k pronájmu atypický mezonetový byt o velikosti 3+kk, nacházející se na ulici Řeznická, v části obce Trnitá v Brně. Tento jedinečný byt s celkovou plochou 65 m² se nachází ve třetím a čtvrtém nadzemní podlaží cihlového domu.
Dispozice:
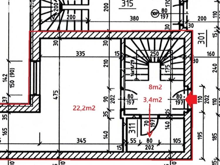
3.NP: obývací pokoj s kuchyňským koutem 22,2 m2, předsíň 8 m2, koupelna se sprchovým koutem 3,4 m2
4.NP: pokoj 10,2 m2, pokoj 8,8 m2, koupelna s vanou 5.6 m2 chodba 7,6 m2
Velkou devizou bytu jsou dvě koupelny - jedna se sprchovým koutem, druhá s vanou.
Byt se nabízí, kromě kuchyňské linky s vestavěnými spotřebiči, nezařízená nábytkem. V bytě je k dispozici plynový kotel pro vytápění a elektrický bojler na ohřev vody.
Dům je ve velmi dobrém stavu a je vybaven výtahem. K nemovitosti náleží také jedno parkovací místo, které je k dispozici za 1 000 Kč měsíčně.
Okolí je dobře dostupné díky MHD, což zajišťuje snadný přístup do dalších částí města. V blízkosti se nachází veškerá občanská vybavenost, což naplňuje potřeby moderního bydlení. Vhodné pro max 4 osoby.
Dispozice:
3.NP: obývací pokoj s kuchyňským koutem 22,2 m2, předsíň 8 m2, koupelna se sprchovým koutem 3,4 m2
4.NP: pokoj 10,2 m2, pokoj 8,8 m2, koupelna s vanou 5.6 m2 chodba 7,6 m2
Velkou devizou bytu jsou dvě koupelny - jedna se sprchovým koutem, druhá s vanou.
Byt se nabízí, kromě kuchyňské linky s vestavěnými spotřebiči, nezařízená nábytkem. V bytě je k dispozici plynový kotel pro vytápění a elektrický bojler na ohřev vody.
Dům je ve velmi dobrém stavu a je vybaven výtahem. K nemovitosti náleží také jedno parkovací místo, které je k dispozici za 1 000 Kč měsíčně.
Okolí je dobře dostupné díky MHD, což zajišťuje snadný přístup do dalších částí města. V blízkosti se nachází veškerá občanská vybavenost, což naplňuje potřeby moderního bydlení. Vhodné pro max 4 osoby.
Другие параметры
- газовый котёл
- электрический водонагреватель
- mhd
- газопровод
- общественная канализация
- 4
- č. 264/2020 Sb.
- 331 m2
- 3
- Очень хорошее
- Кирпичное
- G - Очень низкий
- личное
На этом веб-сайте мы обрабатываем файлы cookie, необходимые для его работы и анализа.