Продажа семейного дома 85 m², участок 552 m²
Úherce, Východní














Описание
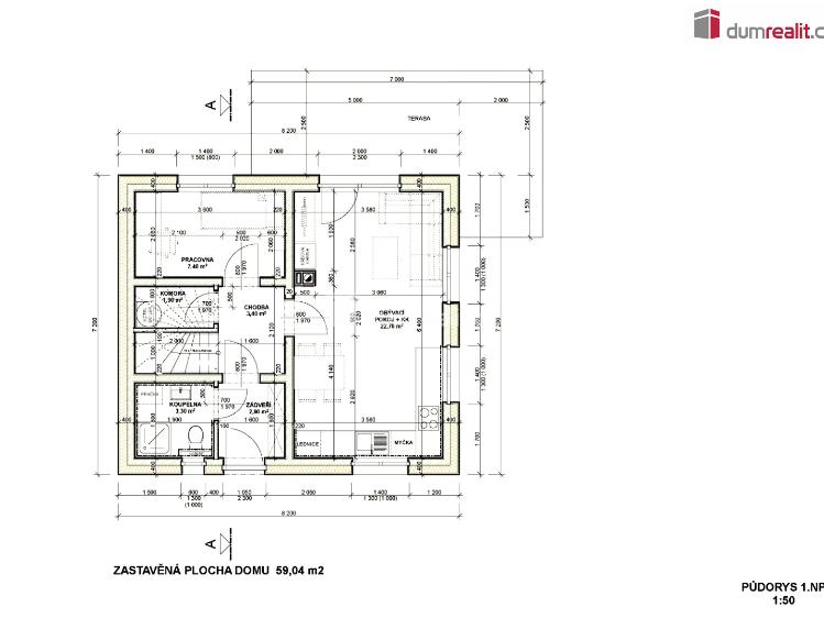
Dumrealit.cz Vám zprostředkuje prodej RD 5+kk v obci Úherce u Nýřan. Dům je zateplen, má obývací pokoj s kuchyní a výstupem na budoucí terasu, dvě ložnice, dvě pracovny (7,5 m² a 7,3m²) a je před kolaudací. Dálkový vodovod, napojení na kanalizaci, podlahové topení, bojler - nízké provozní náklady. Dodělávky ke kolaudaci- stříkaná omítka, napojení dešťové vody z okapu. Není dodělaná druhá koupelna v patře. Na dům lze čerpat hypotéku. Výborná dostupnost na dálnici D5 cca 1,5 km do SRN, Plzně nebo Prahy. Veškeré informace a prohlídky u RK. Ev. číslo: 653150.
Другие параметры
- 4
- 2
- 59 m2
- 552 m2
- Строится
- Кирпичное
- C - Повышенный
На этом веб-сайте мы обрабатываем файлы cookie, необходимые для его работы и анализа.