Продажа склада 1601 m², участок 7592 m²
Havlíčkův Brod, Humpolecká






















































Описание
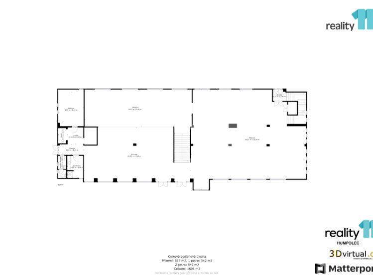
Reality 11 Vám zprostředkují koupi komerční budovy včetně pozemku ke komerční výstavbě o celkové ploše 7.592m². Jedná se o třípodlažní budovu s celkovou užitnou plochou 1601m², s tím, že 1.PP má užitnou plochu 517m², 1.NP má užitnou plochu 542m², 2.NP má užitnou plochu 542m². Stavba byla v minulosti využívána pro vojenské účely v areálu havlíčkobrodských kasáren, aktuálně je využívána ke skladování zboží. Je více možností dalšího komerčního využití a dále možnost výstavby skladovací, výrobní haly na pozemku, který je v územním plánu určen jako plocha VD - plocha výroby a skladování - drobná a řemeslná výroba. Hlavní využití území: malovýroba, řemeslná či přidružená výroba, výrobní i nevýrobní služby, plochy pro malé a střední formy podnikání. Přípustné využití: skladování pro potřeby výroby, podniková administrativa, obchodní zařízení do 2000 m² hrubé podlažní plochy, služební byty správců objektů či nezbytného technického personálu, zařízení a infrastruktura pro průmyslový výzkum, vývoj a inovace ve vazbě na výrobu (více zašleme). Koeficient zastavení pozemku 60. Komerční zóna se nachází na okraji Města Havlíčkův Brod s příjezdem z ulice Humpolecká, dostupnost dálnice D1 velmi dobrá (exit D90 Humpolec je vzdálen 20km). K dispozici pro vás máme půdorysy objektu a dále také 3Dvirtuální prohlídku od společnosti 3Dvirtualcz, kde si objekt můžete projít z pohodlí své kanceláře, svého domova. V případě zájmu o více informací kontaktujte makléře společnosti. Ev. číslo: 24237.
Другие параметры
- 1601 m2
- 4
- 3
- 300 kWh/m2
- 655 m2
- 7592 m2
- Хорошее
- Кирпичное
- G - Очень низкий
На этом веб-сайте мы обрабатываем файлы cookie, необходимые для его работы и анализа.