Prodej rodinného domu 155 m², pozemek 2147 m²
Vyšní Lhoty























Popis
Nabízíme k prodeji rodinný dům ve výstavbě v obci Vyšní Lhoty, okres Frýdek-Místek. Jedná se o moderní samostatně stojící patrový dům v klidné části obce, s dostatkem soukromí a krásnou přírodou.
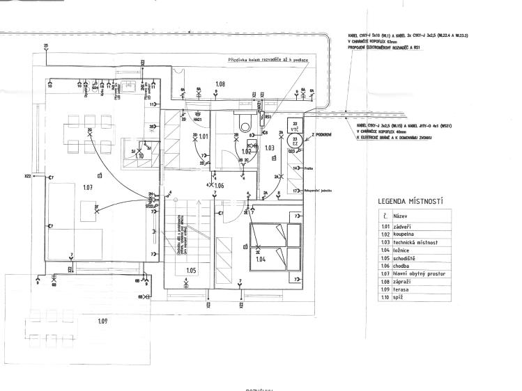
Dům je navržen jako prostorné rodinné bydlení o dispozici 5+kk. V přízemí se nachází zádveří, koupelna, technická místnost, ložnice, chodba se schodištěm, hlavní obytný prostor, spíž, zápraží a terasa. Ve druhém nadzemním podlaží je chodba, koupelna, samostatné WC, ložnice a dva další pokoje.
Zastavěná plocha domu činí 90,6 m² a celková užitná plocha je 155,74 m². Nemovitost stojí na velkorysém pozemku o výměře 2147 m², který nabízí dostatek prostoru pro zahradu, relaxaci, rodinné aktivity i venkovní úpravy dle představ majitele.
Aktuálně je stavba ve fázi základové desky, což novému majiteli nabízí možnost navázat na rozestavěný projekt a dokončit dům dle vlastních preferencí. Velkou výhodou je možnost pokračovat ve výstavbě se stavební společností D&D-construct s.r.o. specializující se na realizaci staveb a rekonstrukcí.
.
Tato varianta představuje pro kupujícího významnou přidanou hodnotu — může plynule navázat na již zahájenou výstavbu, průběžně kontrolovat její postup a včas řešit případné drobné změny podle vlastních představ. Zároveň je možné dopředu konzultovat i návazné venkovní úpravy, například finální podobu zahrady, terénní úpravy, umístění bazénu, relaxační zóny nebo další prvky budoucího bydlení.
Majitelem pozemku je společnost D&D-invest reality s.r.o., se kterou budou řešeny veškeré související podklady k prodeji.
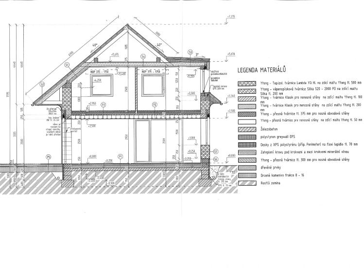
Konstrukčně je dům navržen z kvalitních stavebních materiálů, zejména systému Ytong pro obvodové i vnitřní zdivo, doplněného o železobetonové konstrukce, tepelnou izolaci z EPS/XPS polystyrenu a další skladby dle projektové dokumentace.
Nemovitost je koncipována s důrazem na komfortní rodinné bydlení a nízké provozní náklady. Vytápění je plánováno pomocí tepelného čerpadla, ohřev vody prostřednictvím elektrického bojleru. Součástí projektu jsou také venkovní elektrické žaluzie a prostorná terasa u obytné části domu.
Dům je napojen na vodovodní řád, elektřinu 230/400 V a plynovod. Odpad je řešen jímkou. K dispozici je také retenční nádrž na dešťovou vodu, kterou lze využít například pro zalévání zahrady.
Lokalita nabízí klidné bydlení na okraji obce s velmi dobrou dostupností do Frýdku-Místku i okolních měst. Vyšní Lhoty jsou vhodnou volbou pro zájemce, kteří hledají spojení moderního bydlení, přírody a dostatečně velkého pozemku pro rodinný život.
Tato nemovitost představuje zajímavou příležitost pro ty, kteří si chtějí pořídit rozestavěný rodinný dům s velkým pozemkem v atraktivní a klidné lokalitě. Díky možnosti pokračovat s realizační firmou a podílet se na finální podobě domu i okolních úprav získává kupující prostor vytvořit si bydlení přesně podle svých představ. Pro více informací nebo sjednání prohlídky nás neváhejte kontaktovat.
Dům je navržen jako prostorné rodinné bydlení o dispozici 5+kk. V přízemí se nachází zádveří, koupelna, technická místnost, ložnice, chodba se schodištěm, hlavní obytný prostor, spíž, zápraží a terasa. Ve druhém nadzemním podlaží je chodba, koupelna, samostatné WC, ložnice a dva další pokoje.
Zastavěná plocha domu činí 90,6 m² a celková užitná plocha je 155,74 m². Nemovitost stojí na velkorysém pozemku o výměře 2147 m², který nabízí dostatek prostoru pro zahradu, relaxaci, rodinné aktivity i venkovní úpravy dle představ majitele.
Aktuálně je stavba ve fázi základové desky, což novému majiteli nabízí možnost navázat na rozestavěný projekt a dokončit dům dle vlastních preferencí. Velkou výhodou je možnost pokračovat ve výstavbě se stavební společností D&D-construct s.r.o. specializující se na realizaci staveb a rekonstrukcí.
.
Tato varianta představuje pro kupujícího významnou přidanou hodnotu — může plynule navázat na již zahájenou výstavbu, průběžně kontrolovat její postup a včas řešit případné drobné změny podle vlastních představ. Zároveň je možné dopředu konzultovat i návazné venkovní úpravy, například finální podobu zahrady, terénní úpravy, umístění bazénu, relaxační zóny nebo další prvky budoucího bydlení.
Majitelem pozemku je společnost D&D-invest reality s.r.o., se kterou budou řešeny veškeré související podklady k prodeji.
Konstrukčně je dům navržen z kvalitních stavebních materiálů, zejména systému Ytong pro obvodové i vnitřní zdivo, doplněného o železobetonové konstrukce, tepelnou izolaci z EPS/XPS polystyrenu a další skladby dle projektové dokumentace.
Nemovitost je koncipována s důrazem na komfortní rodinné bydlení a nízké provozní náklady. Vytápění je plánováno pomocí tepelného čerpadla, ohřev vody prostřednictvím elektrického bojleru. Součástí projektu jsou také venkovní elektrické žaluzie a prostorná terasa u obytné části domu.
Dům je napojen na vodovodní řád, elektřinu 230/400 V a plynovod. Odpad je řešen jímkou. K dispozici je také retenční nádrž na dešťovou vodu, kterou lze využít například pro zalévání zahrady.
Lokalita nabízí klidné bydlení na okraji obce s velmi dobrou dostupností do Frýdku-Místku i okolních měst. Vyšní Lhoty jsou vhodnou volbou pro zájemce, kteří hledají spojení moderního bydlení, přírody a dostatečně velkého pozemku pro rodinný život.
Tato nemovitost představuje zajímavou příležitost pro ty, kteří si chtějí pořídit rozestavěný rodinný dům s velkým pozemkem v atraktivní a klidné lokalitě. Díky možnosti pokračovat s realizační firmou a podílet se na finální podobě domu i okolních úprav získává kupující prostor vytvořit si bydlení přesně podle svých představ. Pro více informací nebo sjednání prohlídky nás neváhejte kontaktovat.
Další parametry
- vodovod
- tepelné čerpadlo
- bojler – elektro
- ADSL
- 3 fáze
- Ne
- 2
- 4
- plynovod
- jímka
- 2
- č. 264/2020 Sb.
- 230V
- 90 m2
- 2147 m2
- Ve výstavbě
- Smíšená
Na tomto webu zpracováváme cookies potřebné pro jeho fungování a analytiku.