Prodej bytu 3+KK 81 m²
Praha, Na pomezí 910/2
Včetně všech poplatků RK























Popis
- Tento popis je v:
Bydlení, kde má všechno svůj prostor – světlo, pohodlí i parkování bez kompromisů.
Moderní, velmi světlý byt 3+kk o ploše 81 m² s terasou 12 m² a vlastní dvojgaráží se nachází ve 3. nadzemním podlaží energeticky úsporného domu ve vyhledávané lokalitě Na Pomezí, Praha – Jinonice.
Velkým benefitem, který u bytů v Praze rozhodně není samozřejmostí, je prostorná dvojgaráž o velikosti téměř 25 m². Ta nabízí nejen pohodlné parkování pro dva vozy, ale i dostatek místa pro úložné řešení nebo sportovní vybavení. Samozřejmostí je příprava na wallbox pro elektromobil. Před domem jsou navíc k dispozici další dvě parkovací místa v osobním vlastnictví s možností dokoupení.
Při vstupu do bytu je cítit důraz na prostor a světlo. Obývací pokoj s kuchyňským koutem tvoří přirozené centrum bytu a díky velkým oknům a přímému vstupu na terasu působí velmi vzdušně a otevřeně. Východní orientace přináší příjemné ranní světlo a výhled na Prahu. Dispozice nabízí dva samostatné pokoje, koupelnu s vanou a oddělenou toaletu. Celý byt je řešen prakticky a zároveň působí čistě a moderně.
Velkým benefitem, který u bytů v Praze rozhodně není samozřejmostí, je prostorná dvojgaráž o velikosti téměř 25 m². Ta nabízí nejen pohodlné parkování pro dva vozy, ale i dostatek místa pro úložné řešení nebo sportovní vybavení. Samozřejmostí je příprava na wallbox pro elektromobil. Před domem jsou navíc k dispozici další dvě parkovací místa v osobním vlastnictví s možností dokoupení.
Standard bytu odpovídá moderním požadavkům na komfortní bydlení. Kvalitní dřevěné podlahy, podlahové konvektory s regulací, rekuperace vzduchu a francouzská trojvrstvá dřevěná okna zajišťují příjemné vnitřní klima, dostatek světla i kvalitní akustiku.
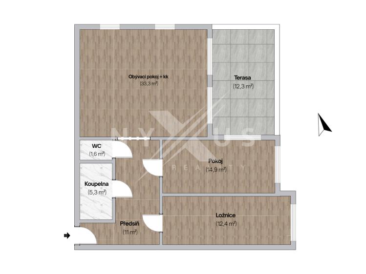
Dispozice bytu:
Předsíň: 11,0 m²
Obývací pokoj + kuchyňský kout: 33,3 m²
Pokoj 1: 12,4 m²
Pokoj 2: 14,9 m²
Koupelna: 5,3 m²
Samostatné WC: 1,6 m²
Terasa: 12,3 m²
Celý dům vyniká kvalitním provedením a v domě je pouhých 13 jednotek. SVJ funguje spolehlivě, bez jakýchkoliv závazků či úvěrů a hospodaří úsporně.
Lokalita Jinonice patří mezi vyhledávané části Prahy. Nabízí rychlou dostupnost do centra a zároveň blízkost přírodního parku Košíře–Motol s množstvím vycházkových tras. Ideální volba pro ty, kteří hledají kombinaci klidného prostředí, zeleně a městského komfortu.
Energetická náročnost budovy: třída C – úsporná.
Nemovitost je v osobním vlastnictví a lze ji tedy financovat hypotečním úvěrem, který Vám zdarma pomůžeme vyřídit za nejvýhodnějších podmínek na trhu.
Zaujala vás tato nabídka? Neváhejte mě kontaktovat pro více informací nebo si rovnou domluvit termín prohlídky.
Těším se na setkání s vámi!
Moderní, velmi světlý byt 3+kk o ploše 81 m² s terasou 12 m² a vlastní dvojgaráží se nachází ve 3. nadzemním podlaží energeticky úsporného domu ve vyhledávané lokalitě Na Pomezí, Praha – Jinonice.
Velkým benefitem, který u bytů v Praze rozhodně není samozřejmostí, je prostorná dvojgaráž o velikosti téměř 25 m². Ta nabízí nejen pohodlné parkování pro dva vozy, ale i dostatek místa pro úložné řešení nebo sportovní vybavení. Samozřejmostí je příprava na wallbox pro elektromobil. Před domem jsou navíc k dispozici další dvě parkovací místa v osobním vlastnictví s možností dokoupení.
Při vstupu do bytu je cítit důraz na prostor a světlo. Obývací pokoj s kuchyňským koutem tvoří přirozené centrum bytu a díky velkým oknům a přímému vstupu na terasu působí velmi vzdušně a otevřeně. Východní orientace přináší příjemné ranní světlo a výhled na Prahu. Dispozice nabízí dva samostatné pokoje, koupelnu s vanou a oddělenou toaletu. Celý byt je řešen prakticky a zároveň působí čistě a moderně.
Velkým benefitem, který u bytů v Praze rozhodně není samozřejmostí, je prostorná dvojgaráž o velikosti téměř 25 m². Ta nabízí nejen pohodlné parkování pro dva vozy, ale i dostatek místa pro úložné řešení nebo sportovní vybavení. Samozřejmostí je příprava na wallbox pro elektromobil. Před domem jsou navíc k dispozici další dvě parkovací místa v osobním vlastnictví s možností dokoupení.
Standard bytu odpovídá moderním požadavkům na komfortní bydlení. Kvalitní dřevěné podlahy, podlahové konvektory s regulací, rekuperace vzduchu a francouzská trojvrstvá dřevěná okna zajišťují příjemné vnitřní klima, dostatek světla i kvalitní akustiku.
Dispozice bytu:
Předsíň: 11,0 m²
Obývací pokoj + kuchyňský kout: 33,3 m²
Pokoj 1: 12,4 m²
Pokoj 2: 14,9 m²
Koupelna: 5,3 m²
Samostatné WC: 1,6 m²
Terasa: 12,3 m²
Celý dům vyniká kvalitním provedením a v domě je pouhých 13 jednotek. SVJ funguje spolehlivě, bez jakýchkoliv závazků či úvěrů a hospodaří úsporně.
Lokalita Jinonice patří mezi vyhledávané části Prahy. Nabízí rychlou dostupnost do centra a zároveň blízkost přírodního parku Košíře–Motol s množstvím vycházkových tras. Ideální volba pro ty, kteří hledají kombinaci klidného prostředí, zeleně a městského komfortu.
Energetická náročnost budovy: třída C – úsporná.
Nemovitost je v osobním vlastnictví a lze ji tedy financovat hypotečním úvěrem, který Vám zdarma pomůžeme vyřídit za nejvýhodnějších podmínek na trhu.
Zaujala vás tato nabídka? Neváhejte mě kontaktovat pro více informací nebo si rovnou domluvit termín prohlídky.
Těším se na setkání s vámi!
Další parametry
- vodovod
- radiátory
- ústřední dálkové
- plynový kotel
- 1
- silnice, mhd, bus
- 12 m2
- telefon, internet, kabelová televize, kabelové rozvody
- betonová
- 1 m2
- plynovod
- veřejná kanalizace
- 2
- 5
- 107 kWh/m2
- č. 264/2020 Sb.
- 230V
- 1 m2
- 3
- Velmi dobrý
- Cihla
- C - Úsporná
- osobní
- Zobrazit průkaz energetické náročnosti budovy
Na tomto webu zpracováváme cookies potřebné pro jeho fungování a analytiku.