Pronájem bytu 2+KK 50 m²
Uherské Hradiště, Na Stavidle 453
+ záloha na energie ve výši 2.400 Kč

















































Popis
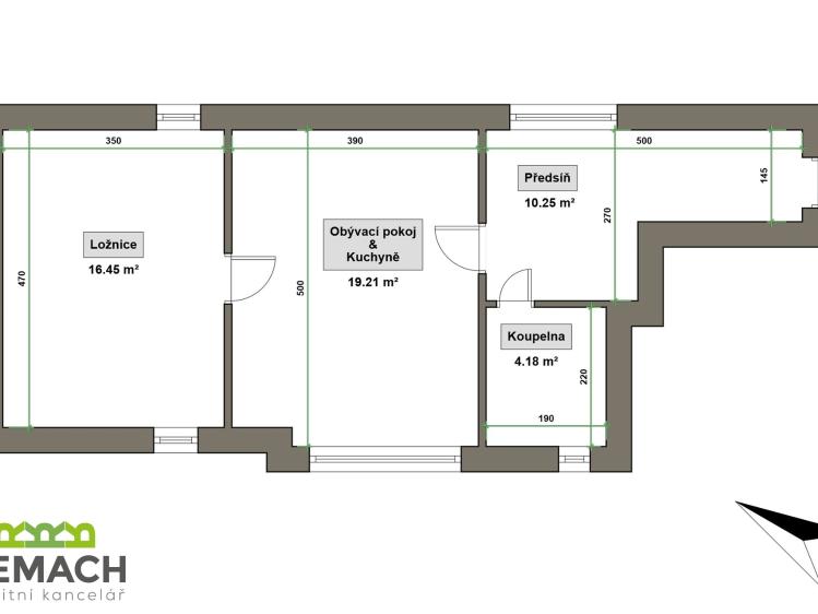
Byt o dispozici 2+kk s velkou vstupní chodbou a úložným prostorem se nachází v posledním patře domu, který se nachází jen kousek od samotného centra Uherského Hradiště a dále s výbornou dostupností na vlakové nádraží.
K bytu je možno si pronajmout i venkovní vyhrazené parkovací místo.
Ze vstupní chodby je vstup do koupelny se sprchovým koutem, toaletou a je zde také připojení na pračku (není součástí). Obývací pokoj je vybaven novou kuchyňskou linkou se spotřebiči, lednicí, sedací soupravou, jídelním stolem a židlemi, konferenčním stolkem, TV stolkem a televizí. V ložnici je manželská postel dva noční stolky a dva konferenční stolky.
Do tohoto bytu si stačí jen přinést své osobní věci a můžete hned bydlet, bez nutnosti dalších investic.
K bytu je možno si pronajmout i venkovní vyhrazené parkovací místo.
Ze vstupní chodby je vstup do koupelny se sprchovým koutem, toaletou a je zde také připojení na pračku (není součástí). Obývací pokoj je vybaven novou kuchyňskou linkou se spotřebiči, lednicí, sedací soupravou, jídelním stolem a židlemi, konferenčním stolkem, TV stolkem a televizí. V ložnici je manželská postel dva noční stolky a dva konferenční stolky.
Do tohoto bytu si stačí jen přinést své osobní věci a můžete hned bydlet, bez nutnosti dalších investic.
Další parametry
- vodovod
- vlak, dálnice, silnice, mhd, bus
- betonová, asfaltová
- 4
- veřejná kanalizace
- 4
- 230V
- 4
- Po rekonstrukci
- Cihla
- G - Mimořádně nehospodárná
- osobní
Na tomto webu zpracováváme cookies potřebné pro jeho fungování a analytiku.