Prodej chaty 77 m², pozemek 942 m²
Křimov
Včetně provize, DPH a právních služeb.








































Popis
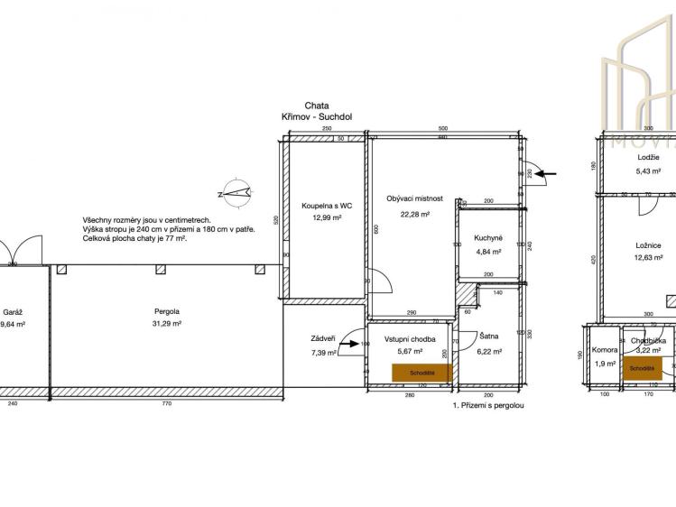
Exkluzivně nabízíme k prodeji rekreační chatu v horské obci Křimov Suchdol. Chata o celkové užitné ploše cca 77 m and sup2; se nachází na vlastním, prostorném pozemku o výměře 942 m and sup2;, na samotném okraji obce v bezprostředním sousedství lesa.
Dispozice a stav
Chata je řešena jako dřevostavba postavená na patkách s plechovou střešní krytinou. V přízemí se nachází hlavní obytná místnost, kuchyně, praktická šatna a prostorná koupelna spojená s toaletou. Vstupní chodba disponuje schodištěm do patra, kde se nachází dvě komory a spací místnost s nižším stropem (180 cm). Z této místnosti je vstup na lodžii, která nabízí nerušený výhled přímo do lesa. Podlahy v interiéru tvoří kombinace dřeva, PVC a koberců. Na obytnou část navazuje velkorysá zastřešená pergola o výměře 31 m and sup2; s vestavěným grilem, ideální pro venkovní posezení. Součástí objektu je také kůlna či garáž pro zahradní techniku o velikosti 9,6 m and sup2; a menší samostatná dílna na pozemku.
Technické informace
Objekt je napojen na elektřinu 230/400 V. Vytápění je řešeno krbovými kamny v hlavní místnosti, v koupelně je pak instalován topný žebřík. Ohřev vody zajišťuje bojler značky Dražice o objemu 200 litrů. Aktuálně je voda čerpána z retenční nádrže na dešťovou vodu, přičemž na pozemku je k dispozici vrtaná studna, která však vyžaduje obnovu vrtu (projektová dokumentace a povolení je vyřízeno). Odpady jsou svedeny do jímky. Zahrada je doplněna o okrasné zahradní jezírko a celkové uspořádání pozemku poskytuje dostatek prostoru pro relaxaci i zahradničení.
Lokalita a dostupnost
Suchdol u Křimova je klidnou horskou vsí, která si zachovává svůj přírodní charakter a klid. Hlavní předností je umístění chaty na úplném konci zástavby, což zajišťuje maximální soukromí. Okolí je protkáno množstvím cest vhodných pro procházky a odpočinek v přírodě. Lokalita vyniká výbornou dopravní dostupností díky rychlému napojení na silnici směr Chomutov a dále na Prahu. Přímo nad chatou v lese se nachází železniční zastávka místní lokálky a v docházkové vzdálenosti je také autobusová zastávka. Příjezd k pozemku je zajištěn po zpevněné svažité cestě.
Pro milovníky zimních sportů a aktivního odpočinku je poloha Suchdolu strategickou základnou. V dojezdové vzdálenosti do 20 minut se nachází rodinný lyžařský areál Mezihoří či Alšovka, zatímco náročnější lyžaři ocení rychlou dostupnost Klínovce nebo německého Fichtelbergu. Bezprostřední okolí obce, včetně nedalekého německého Satzungu, je navíc propojeno se sítí krušnohorských běžeckých tras, které nabízejí desítky kilometrů stop v klidné horské přírodě.
Součástí inzerce je virtuální prohlídka, díky které můžete nemovitostí procházet z pohodlí domova.
S financováním nemovitosti Vám může pomoci náš hypoteční makléř.
Dispozice a stav
Chata je řešena jako dřevostavba postavená na patkách s plechovou střešní krytinou. V přízemí se nachází hlavní obytná místnost, kuchyně, praktická šatna a prostorná koupelna spojená s toaletou. Vstupní chodba disponuje schodištěm do patra, kde se nachází dvě komory a spací místnost s nižším stropem (180 cm). Z této místnosti je vstup na lodžii, která nabízí nerušený výhled přímo do lesa. Podlahy v interiéru tvoří kombinace dřeva, PVC a koberců. Na obytnou část navazuje velkorysá zastřešená pergola o výměře 31 m and sup2; s vestavěným grilem, ideální pro venkovní posezení. Součástí objektu je také kůlna či garáž pro zahradní techniku o velikosti 9,6 m and sup2; a menší samostatná dílna na pozemku.
Technické informace
Objekt je napojen na elektřinu 230/400 V. Vytápění je řešeno krbovými kamny v hlavní místnosti, v koupelně je pak instalován topný žebřík. Ohřev vody zajišťuje bojler značky Dražice o objemu 200 litrů. Aktuálně je voda čerpána z retenční nádrže na dešťovou vodu, přičemž na pozemku je k dispozici vrtaná studna, která však vyžaduje obnovu vrtu (projektová dokumentace a povolení je vyřízeno). Odpady jsou svedeny do jímky. Zahrada je doplněna o okrasné zahradní jezírko a celkové uspořádání pozemku poskytuje dostatek prostoru pro relaxaci i zahradničení.
Lokalita a dostupnost
Suchdol u Křimova je klidnou horskou vsí, která si zachovává svůj přírodní charakter a klid. Hlavní předností je umístění chaty na úplném konci zástavby, což zajišťuje maximální soukromí. Okolí je protkáno množstvím cest vhodných pro procházky a odpočinek v přírodě. Lokalita vyniká výbornou dopravní dostupností díky rychlému napojení na silnici směr Chomutov a dále na Prahu. Přímo nad chatou v lese se nachází železniční zastávka místní lokálky a v docházkové vzdálenosti je také autobusová zastávka. Příjezd k pozemku je zajištěn po zpevněné svažité cestě.
Pro milovníky zimních sportů a aktivního odpočinku je poloha Suchdolu strategickou základnou. V dojezdové vzdálenosti do 20 minut se nachází rodinný lyžařský areál Mezihoří či Alšovka, zatímco náročnější lyžaři ocení rychlou dostupnost Klínovce nebo německého Fichtelbergu. Bezprostřední okolí obce, včetně nedalekého německého Satzungu, je navíc propojeno se sítí krušnohorských běžeckých tras, které nabízejí desítky kilometrů stop v klidné horské přírodě.
Součástí inzerce je virtuální prohlídka, díky které můžete nemovitostí procházet z pohodlí domova.
S financováním nemovitosti Vám může pomoci náš hypoteční makléř.
Další parametry
- krbová kamna
- krbová kamna
- Vrtaná studna
- vlak, silnice, mhd, bus
- 3 fáze
- zpevněná
- 4
- 4
- 5 m2
- lokální tuhá paliva
- jímka
- 884 m2
- 1
- 230V
- 58 m2
- 942 m2
- Dobrý
- Dřevostavba
Na tomto webu zpracováváme cookies potřebné pro jeho fungování a analytiku.