Prodej rodinného domu 465 m², pozemek 1713 m²
Volary, Mlýnská
Cena je včetně provize RK a právního servisu. Více informací Vám poskytne makléř Tomáš Pelda.






























Popis
Dumrealit.cz Vám zprostředkuje prodej stavebního pozemku o celkové výměře 1.713 m² určeného dle územního plánu ke smíšené zástavbě, se stavbou určenou k totální rekonstrukci nebo demolici, na krásném místě na okraji města Volary, ul. Mlýnská č.p. 181.
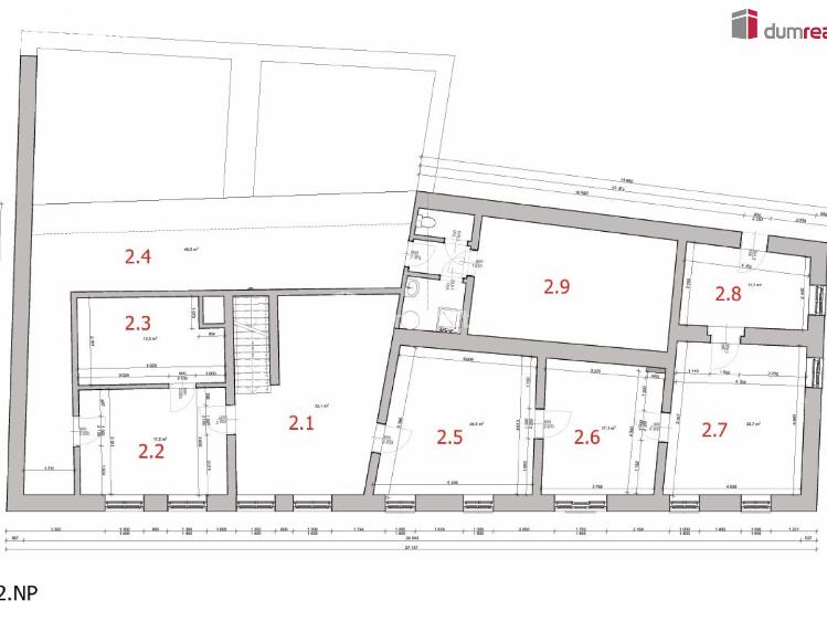
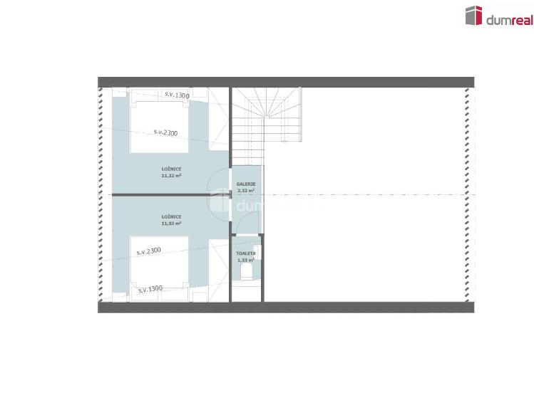
Prodávaný pozemek s objektem se nachází na LV č. 2103 v kú Volary. Na pozemku parc. č.233/1 o výměře 385 m² se nachází stavba bývalé cihelny.
Částečně podsklepený dvoupodlažní objekt ze smíšeného zdiva se skládá ze dvou stavebních celků rozdílného stavu a stáří. Severní část je zchátralá. Jižní navazující polovina stavby je částečně podsklepená a místy udržovaná. Východní obvodovou zeď lemují přízemní přístavby. Součástí objektu je historická studna. Stávající svislé nosné konstrukce jsou tvořeny zdivem z cihel plných pálených (z místní cihelny), v přízemí objektu je možno předpokládat zdivo smíšené s kameny. Stávající stropy v objektu jsou v přízemí tvořeny zčásti klenbou a zčásti dřevěnými trámy. V nadzemních podlažích jsou stropy dřevěné trámové. V objektu se nachází původní schodiště s kamennými nášlapy. Střechy jsou standardní krovové soustavy sedlové s valbovou dostavbou ze severní části v dobrém stavu - bez zatékání. Střešní plášť je tvořený keramickou taškovou krytinou a oplechování střechy je provedeno z pozinkovaného plechu. Příčky jsou z cihel plných pálených.
Objekt je připojen na veřejný vodovod a elektřinu. Kanalizace je řešena jímkou.
K dispozici máme rozhodnutí k odstranění stavby včetně pasportu stavby.
Máme vytvořenou studii na nové zastavění plochy, předáme zájemci při prohlídce domu a jeho okolí.
Zajistíme Vám financování a veškerý právní servis.
Více informací Vám poskytne realitní makléř Tomáš Pelda z realitní kanceláře A TEMPO fungující pod ochranou známkou dumrealit.cz. Ev. číslo: 655222.
Prodávaný pozemek s objektem se nachází na LV č. 2103 v kú Volary. Na pozemku parc. č.233/1 o výměře 385 m² se nachází stavba bývalé cihelny.
Částečně podsklepený dvoupodlažní objekt ze smíšeného zdiva se skládá ze dvou stavebních celků rozdílného stavu a stáří. Severní část je zchátralá. Jižní navazující polovina stavby je částečně podsklepená a místy udržovaná. Východní obvodovou zeď lemují přízemní přístavby. Součástí objektu je historická studna. Stávající svislé nosné konstrukce jsou tvořeny zdivem z cihel plných pálených (z místní cihelny), v přízemí objektu je možno předpokládat zdivo smíšené s kameny. Stávající stropy v objektu jsou v přízemí tvořeny zčásti klenbou a zčásti dřevěnými trámy. V nadzemních podlažích jsou stropy dřevěné trámové. V objektu se nachází původní schodiště s kamennými nášlapy. Střechy jsou standardní krovové soustavy sedlové s valbovou dostavbou ze severní části v dobrém stavu - bez zatékání. Střešní plášť je tvořený keramickou taškovou krytinou a oplechování střechy je provedeno z pozinkovaného plechu. Příčky jsou z cihel plných pálených.
Objekt je připojen na veřejný vodovod a elektřinu. Kanalizace je řešena jímkou.
K dispozici máme rozhodnutí k odstranění stavby včetně pasportu stavby.
Máme vytvořenou studii na nové zastavění plochy, předáme zájemci při prohlídce domu a jeho okolí.
Zajistíme Vám financování a veškerý právní servis.
Více informací Vám poskytne realitní makléř Tomáš Pelda z realitní kanceláře A TEMPO fungující pod ochranou známkou dumrealit.cz. Ev. číslo: 655222.
Další parametry
- 4
- 2
- 385 m2
- 1713 m2
- K demolici
- Smíšená
- G - Mimořádně nehospodárná
Na tomto webu zpracováváme cookies potřebné pro jeho fungování a analytiku.