Prodej chalupy 95 m², pozemek 180 m²
Tavíkovice
cena je včetně provize, právních služeb a VIP servisu :-)


























Popis
Nabízíme k prodeji stylovou chalupu v obci Dobronice u Tavíkovic, vhodnou k rekreaci i postupné rekonstrukci dle vlastních představ.
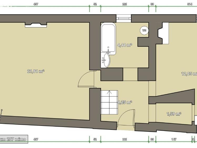
Chalupa má obytnou plochu cca 95 m² (spodní patro cca 44 m², podkroví cca 51 m²) a stojí na pozemku o výměře 180 m². Součástí je uzavřený dvůr, který poskytuje dostatek soukromí.
Nemovitost je možné ihned užívat. Zároveň je však potřeba počítat s postupnou rekonstrukcí a modernizací.
Technické informace a vybavení:
zavedený plyn
ústřední vytápění s plynovým kotlem a radiátory s rozvody v mědi
elektřina (doporučena modernizace rozvodů)
voda
odpad řešen trativodem
dům je suchý, bez známek vzlínající vlhkosti
ve spodním patře betonové podlahy
střecha s pálenou krytinou
Dispozice:
vstupní předsíň se vstupy do jednotlivých místností
obytná místnost s krbem
kuchyně
koupelna
obytné podkroví s možností vybudování až 2–3 pokojů a druhé koupelny
Další informace:
toaleta je aktuálně umístěna mimo hlavní obytnou část (za chalupou, přístup pod střechou)
součástí pozemku je kamenná stodola ve zhoršeném technickém stavu
za domem je užíván pozemek, který není součástí listu vlastnictví
nízké stropy a průchody odpovídají charakteru původní venkovské stavby
Chalupa je vhodná pro zájemce, kteří hledají autentickou nemovitost s atmosférou a jsou připraveni ji postupně upravit dle svých představ.
Více fotografií a detailů naleznete na webu nemovitosti https://tomikoceski.cz/stylova-chalupa/.
A samozřejmě vás rádi přivítáme osobně na prohlídce.
Chalupa má obytnou plochu cca 95 m² (spodní patro cca 44 m², podkroví cca 51 m²) a stojí na pozemku o výměře 180 m². Součástí je uzavřený dvůr, který poskytuje dostatek soukromí.
Nemovitost je možné ihned užívat. Zároveň je však potřeba počítat s postupnou rekonstrukcí a modernizací.
Technické informace a vybavení:
zavedený plyn
ústřední vytápění s plynovým kotlem a radiátory s rozvody v mědi
elektřina (doporučena modernizace rozvodů)
voda
odpad řešen trativodem
dům je suchý, bez známek vzlínající vlhkosti
ve spodním patře betonové podlahy
střecha s pálenou krytinou
Dispozice:
vstupní předsíň se vstupy do jednotlivých místností
obytná místnost s krbem
kuchyně
koupelna
obytné podkroví s možností vybudování až 2–3 pokojů a druhé koupelny
Další informace:
toaleta je aktuálně umístěna mimo hlavní obytnou část (za chalupou, přístup pod střechou)
součástí pozemku je kamenná stodola ve zhoršeném technickém stavu
za domem je užíván pozemek, který není součástí listu vlastnictví
nízké stropy a průchody odpovídají charakteru původní venkovské stavby
Chalupa je vhodná pro zájemce, kteří hledají autentickou nemovitost s atmosférou a jsou připraveni ji postupně upravit dle svých představ.
Více fotografií a detailů naleznete na webu nemovitosti https://tomikoceski.cz/stylova-chalupa/.
A samozřejmě vás rádi přivítáme osobně na prohlídce.
Další parametry
- radiátory
- plynový kotel
- jiné
- Kopaná studna
- silnice
- 3 fáze
- zpevněná, štěrková
- Ne
- 4
- plynovod
- trativod
- 87 m2
- 1
- 1
- č. 264/2020 Sb.
- 230V
- 93 m2
- 180 m2
- Před rekonstrukcí
- Smíšená
- G - Mimořádně nehospodárná
Na tomto webu zpracováváme cookies potřebné pro jeho fungování a analytiku.