Pronájem bytu 4+KK 155 m²
Roudnice nad Labem, Jiráskova
















Popis
Hledáte bydlení, které není jen „místem k přespání“, ale skutečným domovem v klidném a bezpečném prostředí? Nabízíme k pronájmu velkorysý byt v rodinném domě, který kombinuje prostornost, soukromí a možnost relaxace na zahradě.
O jaký prostor se jedná?
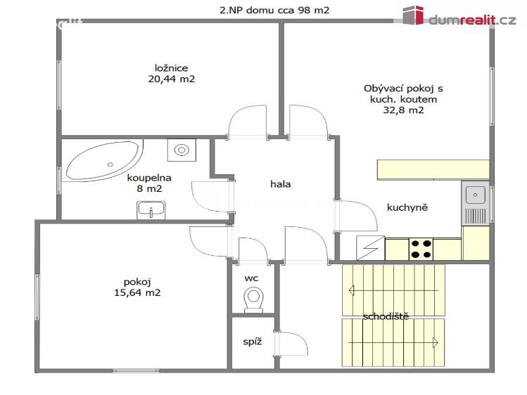
Byt o celkové ploše cca 155 m² se rozkládá ve druhém nadzemním podlaží a zčásti v útulném podkroví.
• Hlavní patro (2. NP): Dispozici 4+kk dominuje velmi prostorná hala a prosvětlený obývací pokoj. Najdete zde vybavenou kuchyni (plynový sporák, myčka, lednice), koupelnu a samostatné WC.
• Podkroví: Horní část tvoří příjemná denní místnost prosvětlená střešními okny a druhá koupelna s toaletou. Celý byt je přístupný po vnitřním schodišti.
Bonusy, které potěší:
• Zahrada: K pronájmu náleží možnost užívat zahradu – ideální pro ranní kávu nebo odpočinek.
• Zázemí: Součástí pronájmu je vlastní garáž a praktický sklep přímo v domě.
• Technické parametry: Ohřev vody a vytápění zajišťuje plynový kotel a bojler.
Koho hledáme?
Majitel si zakládá na dobrých sousedských vztazích a klidné atmosféře v domě. V přízemí bydlí maminka majitele, proto hledáme slušné, klidné a pohodové nájemníky, kteří ocení tiché prostředí a budou se k domu chovat s úctou. Preferujeme dlouhodobý pronájem.
Cena a poplatky:
• Nájemné: 20.000,- Kč měsíčně.
• Energie: Elektřina a plyn budou přepsány přímo na vás, abyste měli svou spotřebu pod kontrolou. Pro představu: stávající roční spotřeba byla cca 2 MWh elektřiny a 1566 m³ plynu.
Pokud hledáte klidné útočiště a dáváte přednost lidskému přístupu, rádi vás domem provedeme.
Byt j evolný od 1.5.2026. Ev. číslo: 655142.
O jaký prostor se jedná?
Byt o celkové ploše cca 155 m² se rozkládá ve druhém nadzemním podlaží a zčásti v útulném podkroví.
• Hlavní patro (2. NP): Dispozici 4+kk dominuje velmi prostorná hala a prosvětlený obývací pokoj. Najdete zde vybavenou kuchyni (plynový sporák, myčka, lednice), koupelnu a samostatné WC.
• Podkroví: Horní část tvoří příjemná denní místnost prosvětlená střešními okny a druhá koupelna s toaletou. Celý byt je přístupný po vnitřním schodišti.
Bonusy, které potěší:
• Zahrada: K pronájmu náleží možnost užívat zahradu – ideální pro ranní kávu nebo odpočinek.
• Zázemí: Součástí pronájmu je vlastní garáž a praktický sklep přímo v domě.
• Technické parametry: Ohřev vody a vytápění zajišťuje plynový kotel a bojler.
Koho hledáme?
Majitel si zakládá na dobrých sousedských vztazích a klidné atmosféře v domě. V přízemí bydlí maminka majitele, proto hledáme slušné, klidné a pohodové nájemníky, kteří ocení tiché prostředí a budou se k domu chovat s úctou. Preferujeme dlouhodobý pronájem.
Cena a poplatky:
• Nájemné: 20.000,- Kč měsíčně.
• Energie: Elektřina a plyn budou přepsány přímo na vás, abyste měli svou spotřebu pod kontrolou. Pro představu: stávající roční spotřeba byla cca 2 MWh elektřiny a 1566 m³ plynu.
Pokud hledáte klidné útočiště a dáváte přednost lidskému přístupu, rádi vás domem provedeme.
Byt j evolný od 1.5.2026. Ev. číslo: 655142.
Další parametry
- 2
- 2
- Dobrý
- Cihla
- G - Mimořádně nehospodárná
- osobní
Na tomto webu zpracováváme cookies potřebné pro jeho fungování a analytiku.