Prodej rodinného domu 120 m², pozemek 905 m²
Kostelec nad Labem, Na Cihelně





























Popis
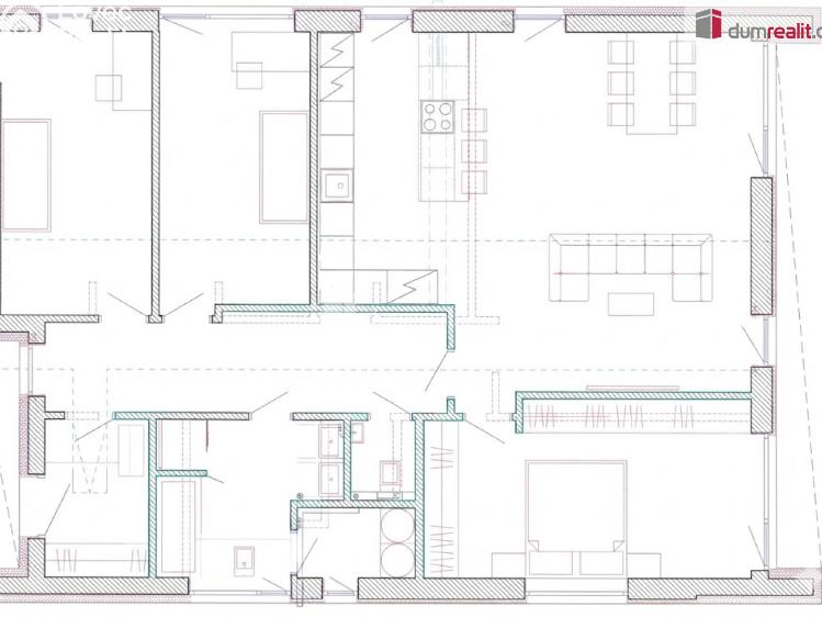
Dumrealit.cz Vám zprostředkuje exkluzivní prodej moderní, kvalitně provedené zděné novostavby komfortního, světlého a vybaveného prostorného přízemního rodinného domu 4+kk orientovaného na jih s oplocenou zahradou v žádané lokalitě se strategickou dopravní polohou na okraji města v blízkosti Prahy a Brandýsa nad Labem - Staré Boleslavi a přivaděče na dálnice D8, D10 a D11, přičemž dojezd do Prahy je cca 20 minut. Dům disponuje třemi ložnicemi, společným prostorem s kuchyní, jídelnou a obývací pokojem se vstupem na terasu, dále koupelnou s WC a samostatným WC, chodbou, technickou místností, předsíní a půdou o 30 m². Francouzská okna s trojskly jsou vybavena dálkově ovládanými venkovními izolačními bezpečnostními roletami a společně s podlahovým vytápěním plynovým kotlem snižují náklady domácnosti. Velké půdní úložné prostory a zahradní domek jistě využijete např. pro sezónní vybavení, zavazadla, materiál, zahradní nábytek a nářadí a další věci. Dům nabízí mnoho možností úprav, či doplnění podle vlastního uvážení.
V dosahu je veškerá občanská vybavenost, úřad, zdravotní středisko, škola, školka, sportoviště, autobusová a vlaková doprava.
V okolí domu s výhledem do krajiny je možnost vycházek například do blízkého lesa a vyjížděk cyklostezkou podél Labe, vodní sporty, koupání a rybaření na Labi a v okolních jezerech. V zimě možnost lyžování na sjezdovkách s dojezdem od 40 minut cesty, okolo 1 hodiny je to na Ještěd, Javorník, Jizerky, Bedřichov.
Chcete-li komfortní, pohodlné, příjemné bydlení v klidném prostředí s možností vycházek, výletů za kulturou, do přírody se všemi potřebnými službami v dosahu a v blízkosti Prahy, ozvěte se a dohodneme si prohlídku. Dozvíte se vše, co vás zajímá a profesionálně dojednáme vše potřebné k vaší spokojenosti. Ev. číslo: 653349.
V dosahu je veškerá občanská vybavenost, úřad, zdravotní středisko, škola, školka, sportoviště, autobusová a vlaková doprava.
V okolí domu s výhledem do krajiny je možnost vycházek například do blízkého lesa a vyjížděk cyklostezkou podél Labe, vodní sporty, koupání a rybaření na Labi a v okolních jezerech. V zimě možnost lyžování na sjezdovkách s dojezdem od 40 minut cesty, okolo 1 hodiny je to na Ještěd, Javorník, Jizerky, Bedřichov.
Chcete-li komfortní, pohodlné, příjemné bydlení v klidném prostředí s možností vycházek, výletů za kulturou, do přírody se všemi potřebnými službami v dosahu a v blízkosti Prahy, ozvěte se a dohodneme si prohlídku. Dozvíte se vše, co vás zajímá a profesionálně dojednáme vše potřebné k vaší spokojenosti. Ev. číslo: 653349.
Další parametry
- 4
- 4
- 1
- 113 kWh/m2
- 149 m2
- 905 m2
- Novostavba
- Cihla
- B - Velmi úsporná
Na tomto webu zpracováváme cookies potřebné pro jeho fungování a analytiku.