Prodej bytu 3+KK 52 m²
Pardubice, K Blahobytu 2438
















Popis
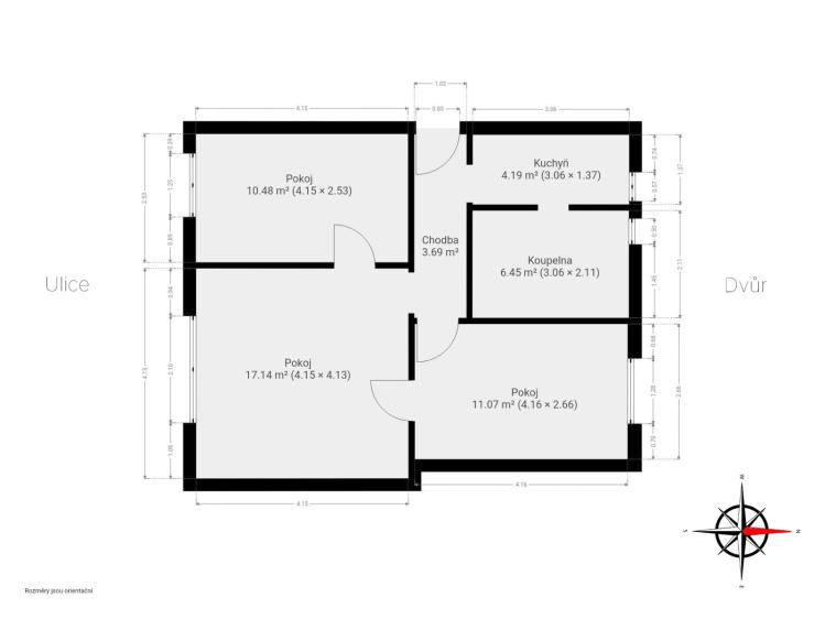
Nabízím vám k prodeji bytovou jednotku o dispozici 3+kk (původně 2+1) se dvěma sklepy o celkové ploše 62,93 m² (51,74 m² podlahová), která se nachází ve zvýšeném přízemí původního cihlového domu, v ulici K Blahobytu 2438.
Byt nyní disponuje třemi pokoji. Největším z nich je obývací pokoj o velikosti 17 m². A společně s druhým menším pokojem o velikosti zhruba 10 m² jsou orientované do jednosměrné ulice na jižní světovou stranu. V těchto pokojích jsou původní parkety. V celém bytě jsou plastová okna s dvojskly. Na protější straně bytu naleznete ložnici s orientaci do severního vnitrobloku, zde je podlaha betonová.
Ložnice vznikla přesunem kuchyňské linky do původní předsíně. Prostorná koupelna s toaletou velikostně pojmula jak sprchový kout, tak vanu. Z chodby se dostanete jak do ložnice, tak do obývacího pokoje. Přímo pod bytem se nachází prostorný sklep s vlastní elektřinou dotaženou z bytové jednotky.
Vytápění bytu je dálkové (Opatovice) a ohřev vody je zde plynovou karmou.
Dvůr ve vnitrobloku je volně k užívání, např. k věšení prádla. Bytová jednotka je v původním stavu. Ač byla několik let pronajímána, vyžaduje kompletní rekonstrukci od podlah až po strop.
Samotnou lokalitu není třeba představovat, nachází se v samém centru Pardubic.
K této nemovitosti byla zpracována webová stránka, kde naleznete kompletní informace. Odkaz je uveden na konci videa. Inzertní portály neumožňují vložení odkazu :-).
Uvidíme se na prohlídce.
Byt nyní disponuje třemi pokoji. Největším z nich je obývací pokoj o velikosti 17 m². A společně s druhým menším pokojem o velikosti zhruba 10 m² jsou orientované do jednosměrné ulice na jižní světovou stranu. V těchto pokojích jsou původní parkety. V celém bytě jsou plastová okna s dvojskly. Na protější straně bytu naleznete ložnici s orientaci do severního vnitrobloku, zde je podlaha betonová.
Ložnice vznikla přesunem kuchyňské linky do původní předsíně. Prostorná koupelna s toaletou velikostně pojmula jak sprchový kout, tak vanu. Z chodby se dostanete jak do ložnice, tak do obývacího pokoje. Přímo pod bytem se nachází prostorný sklep s vlastní elektřinou dotaženou z bytové jednotky.
Vytápění bytu je dálkové (Opatovice) a ohřev vody je zde plynovou karmou.
Dvůr ve vnitrobloku je volně k užívání, např. k věšení prádla. Bytová jednotka je v původním stavu. Ač byla několik let pronajímána, vyžaduje kompletní rekonstrukci od podlah až po strop.
Samotnou lokalitu není třeba představovat, nachází se v samém centru Pardubic.
K této nemovitosti byla zpracována webová stránka, kde naleznete kompletní informace. Odkaz je uveden na konci videa. Inzertní portály neumožňují vložení odkazu :-).
Uvidíme se na prohlídce.
Další parametry
- vodovod
- radiátory
- ústřední dálkové
- plynová karma
- 1
- 1 fáze
- 1
- ústřední dálkové
- plynovod
- veřejná kanalizace
- 3
- 122 kWh/m2
- č. 264/2020 Sb.
- 11 m2
- 1
- Dobrý
- Cihla
- D - Méně úsporná
- osobní
- Zobrazit průkaz energetické náročnosti budovy
Na tomto webu zpracováváme cookies potřebné pro jeho fungování a analytiku.