Pronájem bytu 2+KK 63 m²
Liberec, U Nisy 912/2

15 000 za měsíc

poplatky viz text inzerce

Kontakt:Ing. Kateřina Pavlů E-mail:Telefon:602355469
Kliknutím souhlasíte s našimi

Popis

Pronajmu na 3 měsíce prostorný byt 2+kk o výměře 63 m2 + sklepní kóje cca 4m2 v novostavbě z roku 2022 Rezidence Nábřeží (energetický štítek B) v samém centru Liberce.

Okna jsou orientovaná na jihovýchod, sluníčko se v místnostech točí během celého dopoledne. Výhled je zachycen ve fotogalerii. Okna jsou vybavena trojskly, rámy se systémem synego s dvojitým těsněním a předokenními venkovními žaluziemi s elektromotorem na dálkové ovládání.
Byt je vybaven kuchyňskou linkou s vestavěnou troubou, indukční deskou a digestoří + místo pro mikrovlnou troubu.
Byt je pronajímán s částečným vybavením (pračka, lednička, manželská postel 160x200, stůl, židle).

Prostorná koupelna je spojená s toaletou a disponuje sprchovým koutem walk-in. WC je závěsné. Je zde místo i pro pračku a sušičku. Na stěně je osazen topný řebřík.

Vstup do domu je bezbariérový s dvěma výtahy. Možnost využití společné kočárkárny. Na stejném 3.patře jako je byt je k dispozici prostorná kóje (4m2).
U vstupních dveří je domácí telefon. Byt má též vlastní požární senzor. V bytě je zavedena pozemní TV anténa, rozvody pro internet. Objekt je vytápěn dálkově z Teplárny Liberec.

Byt je vymalován a pečlivě uklizen.

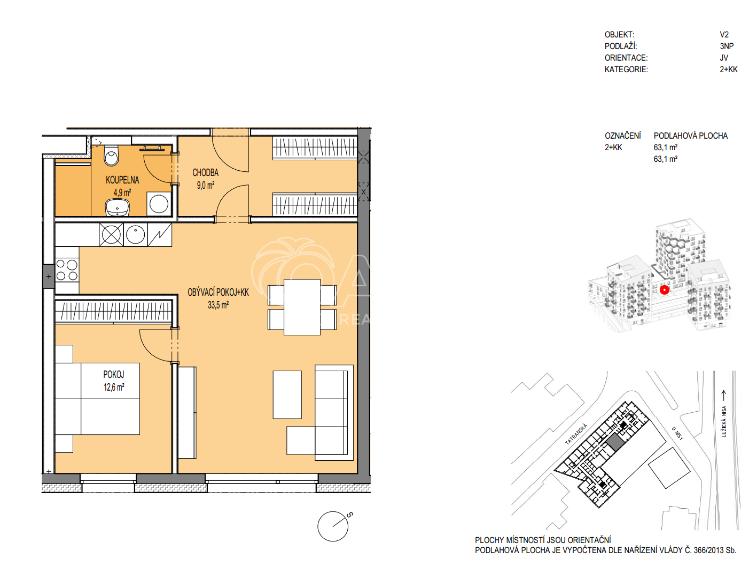
Rozmístění místností naleznete v přiloženém půdorysu.

Volný ihned.

Byt se nalézá na strategickém místě v centru Liberce. Přesto se jedná o klidnou lokalitu s dostatkem zeleně. Byt je jen 5 minut chůze od všeho, co k životu potřebujete: od obchodů, kaváren (přímo v domě), restaurací, pivnice, úřadů, autobusového a vlakového nádraží, MHD, dětských hřišť a venkovních posiloven, parků, cyklostezky a centra Babylon.

Cenové podmínky:
Nájem: 15.000,- Kč/měs.
Poplatky: celkem 6.000Kč včetně elektrické energie
Kauce: 20 000Kč, která Vám bude vrácena na konci nájemního vztahu
Provize RK: 5 000Kč
Možnost pronajmout i parkovací stání v parkovacím komplexu rezidence (parkovací místo je vidět z okna bytu) za 1500,- měsíčně. Pronajmutí parkování není podmínkou pronájmu bytu.

Pro tento byt hledám slušného nájemce, max 2 osoby. Nekuřáky, co jim záleží na dobrých sousedských vztazích. Vychovaný domácí mazlíček je možný po dohodě.

Pokud by vás zajímaly další informace nebo byste se se mnou chtěli do bytu podívat, kontaktujte mě prosím na uvedených kontaktních údajích.

Další parametry

  • vodovod
  • radiátory
  • optika
  • 3 fáze
  • 1
  • veřejná kanalizace
  • 13
  • 98 kWh/m2
  • č. 78/2013 Sb.
  • 4 m2
  • 2129 m2
  • 3
Na tomto webu zpracováváme cookies potřebné pro jeho fungování a analytiku.

Upozornění

Používáte nepodporovaný (zastaralý) internetový prohlížeč!

Pro správný běh našeho portalu není možné použít vámi používaný prohlížeč.

Použijte prosím Microsoft Edge nebo některý z jiných prohlížečů, např. Google Chrome, Firefox.