Prodej kanceláře 541 m²
Jindřichův Hradec, Stará cesta







Popis
prodej zrekonstruovaného komerčního objektu s občanským využitím o celkové podlahové ploše 541
m², na adrese Stará cesta č.p. 728, Jindřichův Hradec.
Objekt je katastrálně rozdělen a prodává se jako samostatná část nemovitosti. Druhou část objektu vlastní
jiný majitel, který zde buduje dlouhodobou zubní ordinaci. Dle platného územního plánu města
Jindřichův Hradec je objekt veden v ploše občanského vybavení, která umožňuje využití pro zdravotnické
služby, administrativu, kanceláře a další nerušící provozy, v souladu s charakterem okolní zástavby.
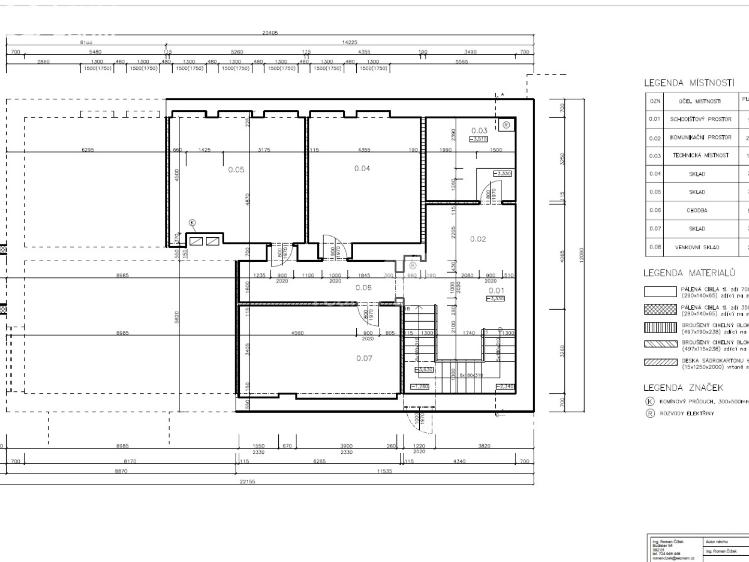
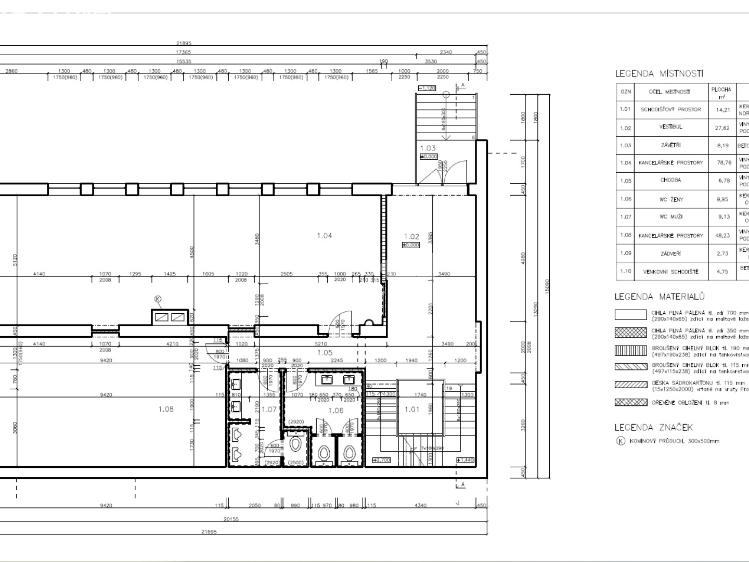
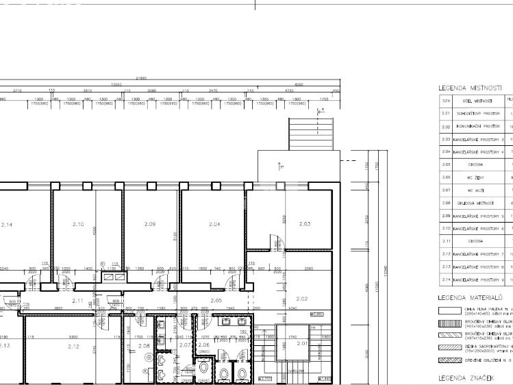
Budova je rozdělena do tří podlaží (1. PP, 1. NP a 2. NP) s užitnou plochou cca 500 m² a byla
nově zrekonstruována v roce 2025. Jedná se o bývalou vodárnu se železobetonovou konstrukcí.
Dispoziční řešení umožňuje variabilní využití, jak pro vlastní provoz, tak pro kombinaci více provozů či
investiční záměr. Více informací v projektové dokumentaci mezi fotografiemi. Mezi fotografiemi je
rovněž zařazena vizualizace, která znázorňuje finální podobu celého objektu po celkové rekonstrukci a
sjednocení fasády. Díky svému technickému řešení je objekt vhodný zejména pro zdravotnická zařízení,
ordinace, kliniky, rehabilitační centra, administrativu nebo jiné nerušící provozy. Významnou výhodou je
pevná železobetonová konstrukce původní vodárenské stavby, která zajišťuje dlouhodobou stabilitu
objektu. Nemovitost se nachází v zavedené lokalitě služeb v rámci města Jindřichův Hradec s dobrou
dopravní dostupností. Více informací Vám poskytne realitní makléřka Ivana Szepová. Ev. číslo: 28071.
m², na adrese Stará cesta č.p. 728, Jindřichův Hradec.
Objekt je katastrálně rozdělen a prodává se jako samostatná část nemovitosti. Druhou část objektu vlastní
jiný majitel, který zde buduje dlouhodobou zubní ordinaci. Dle platného územního plánu města
Jindřichův Hradec je objekt veden v ploše občanského vybavení, která umožňuje využití pro zdravotnické
služby, administrativu, kanceláře a další nerušící provozy, v souladu s charakterem okolní zástavby.
Budova je rozdělena do tří podlaží (1. PP, 1. NP a 2. NP) s užitnou plochou cca 500 m² a byla
nově zrekonstruována v roce 2025. Jedná se o bývalou vodárnu se železobetonovou konstrukcí.
Dispoziční řešení umožňuje variabilní využití, jak pro vlastní provoz, tak pro kombinaci více provozů či
investiční záměr. Více informací v projektové dokumentaci mezi fotografiemi. Mezi fotografiemi je
rovněž zařazena vizualizace, která znázorňuje finální podobu celého objektu po celkové rekonstrukci a
sjednocení fasády. Díky svému technickému řešení je objekt vhodný zejména pro zdravotnická zařízení,
ordinace, kliniky, rehabilitační centra, administrativu nebo jiné nerušící provozy. Významnou výhodou je
pevná železobetonová konstrukce původní vodárenské stavby, která zajišťuje dlouhodobou stabilitu
objektu. Nemovitost se nachází v zavedené lokalitě služeb v rámci města Jindřichův Hradec s dobrou
dopravní dostupností. Více informací Vám poskytne realitní makléřka Ivana Szepová. Ev. číslo: 28071.
Další parametry
- 3
- Po rekonstrukci
- Cihla
- C - Úsporná
Na tomto webu zpracováváme cookies potřebné pro jeho fungování a analytiku.