Prodej bytu 2+1 63 m²
Kolín, Bezručova






























Popis
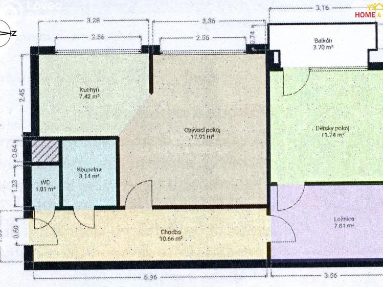
Prodej bytu v osobním vlastnictví o dispozici 2+1 63,36 m², se zaskleným balkonem 5 m². Byt se nachází v 11. podlaží panelového domu o 12. NP. Při rekonstrukci vznikl záměr oddělit větší dětský pokoj příčkou, čímž vznikla nová místnost, která je využívána jako ložnice. Byt je nyní využíván dispozičně jako 3+1. V rámci těchto změn byly položeny nové podlahy ve všech místnostech a také byla provedena nová elektroinstalace a nové stropy. Rozvod topení je ústřední dálkové, zdroj vody zajišťuje dálkový vodovod. V chodbě je moderní prostorná skříň, která je využívána nejen na oblečení, ale i jako další úložný prostor. Kuchyně je dostatečně větratelná, po celé délce místnosti jsou velká okna. Samostatná kuchyňská linka je plně vybavená spotřebiči: lednice, plynový sporák, pečící trouba a mikrovlnka. Moderní koupelna s vanou a samostatná toaleta, jsou obloženy dlaždicemi. Plastová okna mají venkovní elektrické žaluzie na dálkové ovládání, využít je možné i klasické vnitřní žaluzie. Vchodové dveře jsou polstrované s bezpečnostním zámkem. Dům je zateplen a došlo k rozšíření balkonu se zasklením. Nákladní a osobní výtahy umožňují pohodlnou frekvenci uživatelů. V suterénu domu je sklepní kóje 2 m² a kolárna. Byt je světlý, situovaný na západ a skýtá příjemný výhled do okolí. Parkování je možné na parkovišti u domu. Dům je v lokalitě, kde se v naprosté blízkosti nachází ZŠ, MŠ, plavecký stadion se sportovním využitím, Billa. Nedaleko je i centrum města, dále pak Kaufland a Penny. MHD umožňuje spojení po celém městě. Nádraží poskytuje pravidelná rychlá spojení do Prahy, Pardubice atd. Osobním autem na Černý Most se lze dostat cca za 45 min. Pro více informací a sjednání prohlídky mě kdykoli kontaktujte. Ev. číslo: 32107.
Další parametry
- 12
- 11
- Velmi dobrý
- Panel
- C - Úsporná
- osobní
Na tomto webu zpracováváme cookies potřebné pro jeho fungování a analytiku.