Prodej bytu 4+1 87 m²
Liberec, Pazderkova 933/3














Popis
Hledáte větší byt, ale nechcete platit cenu klasického 4+1?
Tato nabídka vám umožní získat komfort čtyř pokojů za cenu bytu 3+1.
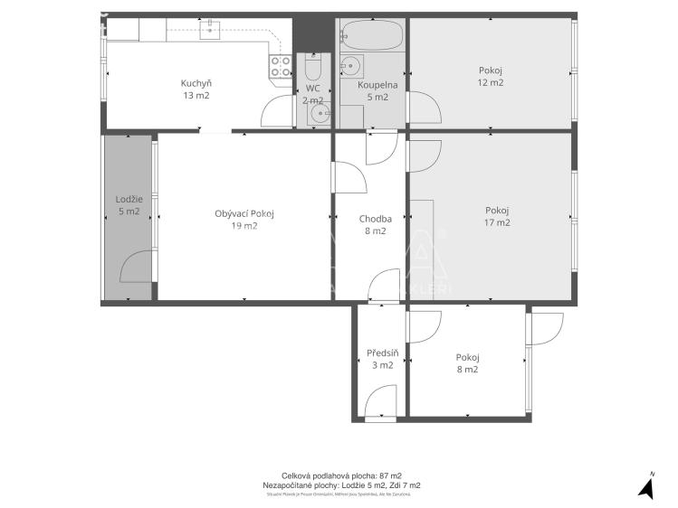
Předmětem prodeje je bytová jednotka v osobním vlastnictví o dispozici 3+1 a výměře 75 m² + 5 m² lodžie. Díky další samostatné místnosti o velikosti 8 m², (která byla dříve užívána jako sušárna pro obyvatele patra, ale je v praxi součástí bytu - viz půdorys), je dlouhodobě pronajata a byt je tak v praxi užíván jako plnohodnotný 4+1.
Budoucí vlastník tak bude mít k dispozici celkovou užívanou plochu 87 m².
• pronajatá místnost 8 m² – nájemné 1 000 Kč / měsíc
• sklepní prostor 15 m² – nájemné 1 500 Kč / rok
• možnost pronájmu garáže nacházející se hned před domem
Nemovitost se nachází v klidné části města Liberec s kompletní občanskou vybaveností v docházkové vzdálenosti. V okolí naleznete školy, školky, obchody, zdravotní služby, zastávky MHD i dostatek zeleně pro volnočasové aktivity.
Lokalita nabízí výbornou dostupnost do centra města i rychlé napojení směrem do přírody.
Tato nabídka představuje zajímavou příležitost získat prostorné rodinné bydlení s dispozicí 4+1.
Pro více informací nebo sjednání prohlídky mne neváhejte kontaktovat.
Tato nabídka vám umožní získat komfort čtyř pokojů za cenu bytu 3+1.
Předmětem prodeje je bytová jednotka v osobním vlastnictví o dispozici 3+1 a výměře 75 m² + 5 m² lodžie. Díky další samostatné místnosti o velikosti 8 m², (která byla dříve užívána jako sušárna pro obyvatele patra, ale je v praxi součástí bytu - viz půdorys), je dlouhodobě pronajata a byt je tak v praxi užíván jako plnohodnotný 4+1.
Budoucí vlastník tak bude mít k dispozici celkovou užívanou plochu 87 m².
• pronajatá místnost 8 m² – nájemné 1 000 Kč / měsíc
• sklepní prostor 15 m² – nájemné 1 500 Kč / rok
• možnost pronájmu garáže nacházející se hned před domem
Nemovitost se nachází v klidné části města Liberec s kompletní občanskou vybaveností v docházkové vzdálenosti. V okolí naleznete školy, školky, obchody, zdravotní služby, zastávky MHD i dostatek zeleně pro volnočasové aktivity.
Lokalita nabízí výbornou dostupnost do centra města i rychlé napojení směrem do přírody.
Tato nabídka představuje zajímavou příležitost získat prostorné rodinné bydlení s dispozicí 4+1.
Pro více informací nebo sjednání prohlídky mne neváhejte kontaktovat.
Další parametry
- radiátory
- ústřední dálkové
- 1
- 5
- 5 m2
- 8
- 115 kWh/m2
- č. 264/2020 Sb.
- 542 m2
- 2
- Velmi dobrý
- Panel
- D - Méně úsporná
- osobní
- Zobrazit průkaz energetické náročnosti budovy
Na tomto webu zpracováváme cookies potřebné pro jeho fungování a analytiku.