Prodej bytu 2+KK 38 m²
Praha 5, Zoubkova




















Popis
Nabízíme zděný byt 2+kk o celkové ploše 38,42 m², ve 3. patře v klidné lokalitě širšího centra Prahy 5 - Smíchov. Byt je v současnosti užíván jako 1+kk a je vhodný k částečné rekonstrukci. S okny do klidného dvora na západ. V mezipatře domu jsou balkóny, např. pro věšení prádla. Ze zadního vchodu domu je vstup na menší zahradu, kterou lze využívat. Dům je v klidné ulici.
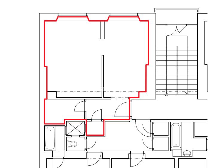
Rozměry místností: předsíň 3,53 m², obývací pokoj s KK 13,40 m², koupelna s WC 3,51 m², pokoj 16,97 m², komora 1,01 m². Vytápění je elektrickými přímotopy. Příprava teplé vody v elektrickém zásobníku. Koupelna je s vanou, umyvadlem a WC, vejde se tam i pračka.
Výborná dostupnost. Metro a tramvaj do 10 min pěšky na stanici Anděl. 150 m je zastávka autobusu. Rychlé spojení na dálnici D5 a Pražský okruh. Smíchov disponuje vlakovým i autobusovým nádražím i pro příměstské spoje.
V docházkové vzdálenosti je ZŠ i MŠ, supermarket Albert, restaurace, ostatní občanská vybavenost v nedalekém centru Smíchova, kde je i obchodní centrum Nový Smíchov. V blízkosti je zimní stadion Nikolajka. Parkování je možné v okolních komunikacích. V blízkosti lokality jsou přírodní oblasti Šalamounka, Měchurka, sportovní areál Santoška.
Ideální pro mladé páry nebo investory, kteří hledají bydlení s potenciálem v atraktivní lokalitě s výbornou dopravní dostupností. Byt je aktuálně pronajatý s možností pokračování nájmu. Ev. číslo: 27941.
Rozměry místností: předsíň 3,53 m², obývací pokoj s KK 13,40 m², koupelna s WC 3,51 m², pokoj 16,97 m², komora 1,01 m². Vytápění je elektrickými přímotopy. Příprava teplé vody v elektrickém zásobníku. Koupelna je s vanou, umyvadlem a WC, vejde se tam i pračka.
Výborná dostupnost. Metro a tramvaj do 10 min pěšky na stanici Anděl. 150 m je zastávka autobusu. Rychlé spojení na dálnici D5 a Pražský okruh. Smíchov disponuje vlakovým i autobusovým nádražím i pro příměstské spoje.
V docházkové vzdálenosti je ZŠ i MŠ, supermarket Albert, restaurace, ostatní občanská vybavenost v nedalekém centru Smíchova, kde je i obchodní centrum Nový Smíchov. V blízkosti je zimní stadion Nikolajka. Parkování je možné v okolních komunikacích. V blízkosti lokality jsou přírodní oblasti Šalamounka, Měchurka, sportovní areál Santoška.
Ideální pro mladé páry nebo investory, kteří hledají bydlení s potenciálem v atraktivní lokalitě s výbornou dopravní dostupností. Byt je aktuálně pronajatý s možností pokračování nájmu. Ev. číslo: 27941.
Další parametry
- 6
- 4
- Dobrý
- Cihla
- G - Mimořádně nehospodárná
- osobní
Na tomto webu zpracováváme cookies potřebné pro jeho fungování a analytiku.