Prodej rodinného domu 127 m², pozemek 857 m²
Staňkovice













Popis
Nabízíme k prodeji moderní cihlovou novostavbu rodinného domu ve fázi hrubé stavby, nacházející se v klidné části obce Staňkovice, okres Louny. Dům představuje ideální příležitost dokončit si bydlení přesně podle vlastních představ, nebo využít možnost kompletní dostavby na klíč přímo od nás.
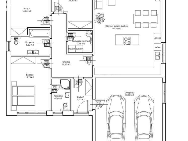
Dům je navržen s důrazem na komfort rodinného bydlení a nabízí užitnou plochu 127 m² při zastavěné ploše 193 m². Dispozice zahrnuje čtyři prostorné pokoje s dostatkem místa pro rodinu, dětské pokoje, pracovnu i společný obytný prostor.
Velkou výhodou je prostorná garáž o velikosti 35 m², která poskytuje komfortní parkování i dostatek prostoru pro uskladnění, dílnu nebo hobby zázemí.
Celková plocha pozemku činí 857 m², z čehož zahrada o velikosti 664 m² nabízí široké možnosti využití. Je ideální pro vybudování terasy, pergoly, bazénu, dětského hřiště nebo relaxační zóny. Díky své velikosti poskytuje dostatek soukromí i prostoru pro rodinné aktivity.
Dům je aktuálně nabízen ve fázi hrubé stavby, což umožňuje dokončení interiéru přesně dle vašich požadavků a standardu. Současně nabízíme možnost kompletní dostavby domu na klíč včetně všech profesí, finálních povrchů a připravenosti k okamžitému bydlení. Cena kompletně dokončeného domu na klíč činí 7 950 000 Kč.
Nemovitost se nachází v klidné a bezpečné lokalitě vhodné pro rodinné bydlení. V obci je dostupná základní občanská vybavenost včetně mateřské a základní školy. Okolí nabízí příjemné prostředí s možností procházek, cyklovýletů a aktivního trávení volného času.
Tato nemovitost představuje ideální příležitost pro ty, kteří hledají moderní rodinný dům s možností dokončení dle vlastních představ nebo bezstarostné řešení formou kompletní realizace na klíč v klidné lokalitě.
Pro více informací, cenovou nabídku dostavby nebo domluvení prohlídky nás neváhejte kontaktovat.
Dům je navržen s důrazem na komfort rodinného bydlení a nabízí užitnou plochu 127 m² při zastavěné ploše 193 m². Dispozice zahrnuje čtyři prostorné pokoje s dostatkem místa pro rodinu, dětské pokoje, pracovnu i společný obytný prostor.
Velkou výhodou je prostorná garáž o velikosti 35 m², která poskytuje komfortní parkování i dostatek prostoru pro uskladnění, dílnu nebo hobby zázemí.
Celková plocha pozemku činí 857 m², z čehož zahrada o velikosti 664 m² nabízí široké možnosti využití. Je ideální pro vybudování terasy, pergoly, bazénu, dětského hřiště nebo relaxační zóny. Díky své velikosti poskytuje dostatek soukromí i prostoru pro rodinné aktivity.
Dům je aktuálně nabízen ve fázi hrubé stavby, což umožňuje dokončení interiéru přesně dle vašich požadavků a standardu. Současně nabízíme možnost kompletní dostavby domu na klíč včetně všech profesí, finálních povrchů a připravenosti k okamžitému bydlení. Cena kompletně dokončeného domu na klíč činí 7 950 000 Kč.
Nemovitost se nachází v klidné a bezpečné lokalitě vhodné pro rodinné bydlení. V obci je dostupná základní občanská vybavenost včetně mateřské a základní školy. Okolí nabízí příjemné prostředí s možností procházek, cyklovýletů a aktivního trávení volného času.
Tato nemovitost představuje ideální příležitost pro ty, kteří hledají moderní rodinný dům s možností dokončení dle vlastních představ nebo bezstarostné řešení formou kompletní realizace na klíč v klidné lokalitě.
Pro více informací, cenovou nabídku dostavby nebo domluvení prohlídky nás neváhejte kontaktovat.
Další parametry
- místní zdroj vody, vodovod
- podlahové vytápění
- tepelné čerpadlo
- tepelné čerpadlo
- vzduchem
- dálnice, silnice, mhd, bus
- 3 fáze
- dlážděná, asfaltová
- Ne
- 2
- 4
- plynovod
- veřejná kanalizace
- 663 m2
- 2
- 1
- č. 264/2020 Sb.
- 230V
- 193 m2
- 857 m2
- Novostavba
- Cihla
- B - Velmi úsporná
Na tomto webu zpracováváme cookies potřebné pro jeho fungování a analytiku.