Pronájem bytu 2+1 51 m²
Kladno, Havanská 2140

16 000 za měsíc

kauce 30.000.-, služby 4.000.-/ měs. provize 16.000 + DPH

Kontakt:Ing. Marek Kotík E-mail:Telefon:722222228
Kliknutím souhlasíte s našimi

Popis

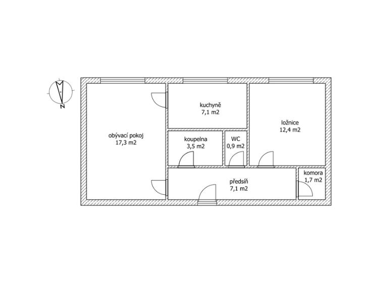
Nabízíme k dlouhodobému pronájmu byt 2+1 v 5. patře panelového domu v ulici Havanská v Kladně. Jednotka prošla kompletní a zdařilou rekonstrukcí, má dřevěné interiérové dveře a zárubně, plovoucí podlahy a v celém bytě žaluzie.

Obytné místnosti jsou světlé, orientované na jih a poskytují hezký výhled do okolní zeleně; přímo za domem je dětské hřiště. Byt se pronajímá kompletně vybavený. V ložnici se nachází manželská postel a velká vestavěná skříň, v předsíni další vestavěná skříň. Obývací pokoj je zařízen sedací soupravou, konferenčním stolkem, PC stolem a úložnými skříňkami. Kuchyně je vybavena lednicí, vestavnou troubou, indukční varnou deskou, mikrovlnnou troubou, digestoří a kuchyňskou linkou na míru. Koupelna má vanu a pračku. WC je samostatné. Vstup do bytu zajišťují bezpečnostní dveře. Součástí bytu je sklepní kóje o rozloze 2 m2.

Dům je po celkové revitalizaci – má nová plastová okna, modernizované výtahy, zateplenou fasádu a střechu a vyměněné stoupací vedení. Lokalita patří k vyhledávané části Kladna směrem na Prahu a nabízí výbornou dopravní dostupnost do metropole. V bezprostředním okolí je kompletní občanská vybavenost včetně školy, školky a obchodů, zároveň je blízko do lesa a k trasám pro volnočasové aktivity. K bytu lze pronajmout samostatnou garáž v bezprostřední blízkosti, byt je připraven k okamžitému nastěhování.

Další parametry

  • vodovod
  • radiátory
  • centrální dálkové
  • vlak, dálnice, silnice, mhd, bus
  • 5
  • plynovod
  • veřejná kanalizace
  • 7
  • 70 kWh/m2
  • č. 264/2020 Sb.
  • 2 m2
  • 1235 m2
  • 6
  • Velmi dobrý
  • Panel
  • D - Méně úsporná
  • osobní
Na tomto webu zpracováváme cookies potřebné pro jeho fungování a analytiku.

Upozornění

Používáte nepodporovaný (zastaralý) internetový prohlížeč!

Pro správný běh našeho portalu není možné použít vámi používaný prohlížeč.

Použijte prosím Microsoft Edge nebo některý z jiných prohlížečů, např. Google Chrome, Firefox.