Prodej obchodního prostoru 671 m²
Kralupy nad Vltavou, Lidové nám. 90
Cena k jednání










































Popis
- Tento popis je v:
Nabízíme Vám výhradní zprostředkování prodeje komerčního objektu v nezátopové části obce Kralupy nad Vltavou, na rohu ulice Lidové nám. a Přemyslova, postavené na pozemku o celkové výměře 548 m2. Současná zastavěná plocha budovy činí 313 m2, užitná plocha 671 m2 (1.NP 266 m) + (2.NP 257 m) + (sklep 148 m).
Objekt byl dosud využíván jako restaurace s barem, nyní již slouží jen na pořádání různých oslav či firemních večírků. Parkování je možné zdarma před budovou a pro zásobování je využíván vchod za domem. Objekt je možné využívat nadále pro gastronomické účely, obchod, sklad, lehká výroba nebo v územním plánu je nyní povolena přestavba na klasický rodinný dům se dvěma bytovými jednotkami, nicméně po konzultaci s městským architektem možnost přestavba na bytový dům max. se třemi N.P. Bližší stavební dokumentaci zašleme na vyžádání.
Cihlová budova byla kolaudovaná v roce 2005 a současně není zateplena. Budova je napojena na veřejnou kanalizaci, městský vodovod, plyn a elektřinu 230 a 400 V a je vytápěna vlastním plynovým kotlem. Je zde také k dispozici vzduchotechnika.
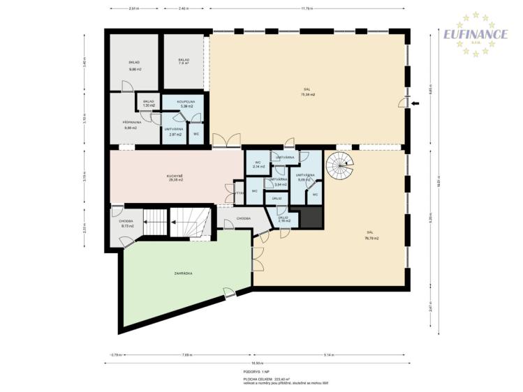
V 1.NP je k dispozici velká prostorná restaurace s barem, kuchyně s dalšími povinnými místnostmi dle hygienických norem, samostatné pánské a dámské toalety, WC pro personál aj. skladovací místnosti. Po točitém schodišti vystoupáme do 2.NP, kde se nachází rovněž velký společenský prostor se stoly, kulečníkovým stolem, velký bar, samostatné dámské i pánské toalety a technické místnosti. Většina objektu je podsklepena a je zde několik technických a skladovacích prostorů.
K dispozici je virtuální prohlídka všech podlaží vč. suterénu. Detailní technickou dokumentaci vč. územní informace zašleme na vyžádání.
V Kralupech je k dispozici veškerá občanská vybavenost: mateřské školky, základní školy, obchody, supermarkety, zdravotní středisko, nemocnice, pošty, banky, společenská a sportovní střediska, aj. V centru města se nachází vlakové nádraží s přímým spojem 25 min do centra Prahy na Masarykovo a Hlavní nádraží a rovněž autobusové zastávky PID s dopravou na nejbližší metra Ládví, Letňany, Bořislavka. Cena k jednání 12 500 000,- vč. veškerých poplatků a právních služeb.
Objekt byl dosud využíván jako restaurace s barem, nyní již slouží jen na pořádání různých oslav či firemních večírků. Parkování je možné zdarma před budovou a pro zásobování je využíván vchod za domem. Objekt je možné využívat nadále pro gastronomické účely, obchod, sklad, lehká výroba nebo v územním plánu je nyní povolena přestavba na klasický rodinný dům se dvěma bytovými jednotkami, nicméně po konzultaci s městským architektem možnost přestavba na bytový dům max. se třemi N.P. Bližší stavební dokumentaci zašleme na vyžádání.
Cihlová budova byla kolaudovaná v roce 2005 a současně není zateplena. Budova je napojena na veřejnou kanalizaci, městský vodovod, plyn a elektřinu 230 a 400 V a je vytápěna vlastním plynovým kotlem. Je zde také k dispozici vzduchotechnika.
V 1.NP je k dispozici velká prostorná restaurace s barem, kuchyně s dalšími povinnými místnostmi dle hygienických norem, samostatné pánské a dámské toalety, WC pro personál aj. skladovací místnosti. Po točitém schodišti vystoupáme do 2.NP, kde se nachází rovněž velký společenský prostor se stoly, kulečníkovým stolem, velký bar, samostatné dámské i pánské toalety a technické místnosti. Většina objektu je podsklepena a je zde několik technických a skladovacích prostorů.
K dispozici je virtuální prohlídka všech podlaží vč. suterénu. Detailní technickou dokumentaci vč. územní informace zašleme na vyžádání.
V Kralupech je k dispozici veškerá občanská vybavenost: mateřské školky, základní školy, obchody, supermarkety, zdravotní středisko, nemocnice, pošty, banky, společenská a sportovní střediska, aj. V centru města se nachází vlakové nádraží s přímým spojem 25 min do centra Prahy na Masarykovo a Hlavní nádraží a rovněž autobusové zastávky PID s dopravou na nejbližší metra Ládví, Letňany, Bořislavka. Cena k jednání 12 500 000,- vč. veškerých poplatků a právních služeb.
Další parametry
- vodovod
- plynový kotel
- plynový kondenzační kotel
- 1
- vlak, silnice, mhd, bus
- telefon, internet, kabelová televize, kabelové rozvody
- 3 fáze
- asfaltová
- Ano
- 4
- lokální plynové
- plynovod
- veřejná kanalizace
- 2
- č. 264/2020 Sb.
- 230V
- 148 m2
- 313 m2
- Velmi dobrý
- Cihla
- G - Mimořádně nehospodárná
Na tomto webu zpracováváme cookies potřebné pro jeho fungování a analytiku.