Prodej rodinného domu 99 m², pozemek 261 m²
Pečky, Dobřichovská 243
Konečná cena včetně Kupní smlouvy, advokátní úschovy a zpracování výhodného úvěru.




















Popis
Nabízím k prodeji rodinný dům v obci Pečky, necelých pět minut pěšky od vlakového a autobusového nádraží. Velmi dobré spojení do Prahy. Autem na Černý Most za půl hodiny a vlakem do centra Prahy za 1 hodinu. Za 20 minut jste na nádraží v Kolíně.
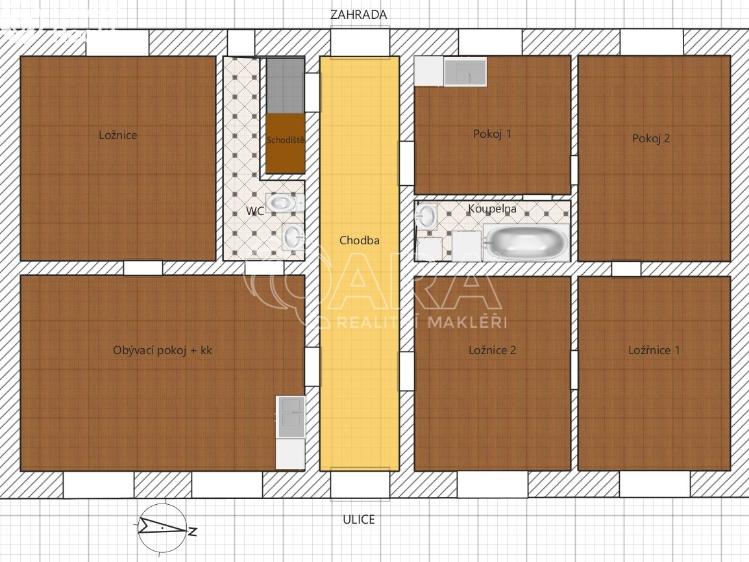
Tento dům smíšené konstrukce je v řadové zástavbě a nabízí dostatek místností pro velkou rodinu. Celková zastavěná plocha domu činí 154 m², zatímco užitná plocha je 99 m². Součástí parcely je také zahrada za domem o celkové výměře 261 m². Na zahradě je meruňka a ořech. Na hranici pozemku je studna s užitkovou vodou a je používaná napůl se sousedy. Další prostory najdete na půdě, která má v ploše přes 100 m² a její prostor tak můžete využít pro další zvětšení domu, například sklad či jiné prostory.
Dům je před rekonstrukcí, což poskytuje nové možnosti pro úpravy dle individuálních představ budoucího majitele. U domu se nachází sklep s plochou 7 m².
Dům je připojen na obecní vodovod a na kanalizaci. Také na plynovod a elektřinu s napětím 230 V. Internetové přípojka na VDSL, což zajišťuje rychlé a spolehlivé připojení.
Vytápění je řešeno prostřednictvím WAW topných těles, zatímco teplá voda v koupelně se ohřívá po staru v kotli na tuhá paliva. V koupelně je k dispozici vana.
Nemovitost se nachází v příjemném prostředí a při rekonstrukci má potenciál stát se útulným domovem podle individuálních představ.
K domu jsou zpracovány i internetové stránky. Bohužel pravidla Sreality neumožňují dávat přímé internetové odkazy. Pro zaslání adresy internetové stánky tohoto domu mi napište, nebo je adresa zveřejněna na jiných inzertních portálech.
V případě zájmu o prohlídku mě neváhejte kontaktovat.
Energetický štítek v kategorii G.
Tento dům smíšené konstrukce je v řadové zástavbě a nabízí dostatek místností pro velkou rodinu. Celková zastavěná plocha domu činí 154 m², zatímco užitná plocha je 99 m². Součástí parcely je také zahrada za domem o celkové výměře 261 m². Na zahradě je meruňka a ořech. Na hranici pozemku je studna s užitkovou vodou a je používaná napůl se sousedy. Další prostory najdete na půdě, která má v ploše přes 100 m² a její prostor tak můžete využít pro další zvětšení domu, například sklad či jiné prostory.
Dům je před rekonstrukcí, což poskytuje nové možnosti pro úpravy dle individuálních představ budoucího majitele. U domu se nachází sklep s plochou 7 m².
Dům je připojen na obecní vodovod a na kanalizaci. Také na plynovod a elektřinu s napětím 230 V. Internetové přípojka na VDSL, což zajišťuje rychlé a spolehlivé připojení.
Vytápění je řešeno prostřednictvím WAW topných těles, zatímco teplá voda v koupelně se ohřívá po staru v kotli na tuhá paliva. V koupelně je k dispozici vana.
Nemovitost se nachází v příjemném prostředí a při rekonstrukci má potenciál stát se útulným domovem podle individuálních představ.
K domu jsou zpracovány i internetové stránky. Bohužel pravidla Sreality neumožňují dávat přímé internetové odkazy. Pro zaslání adresy internetové stánky tohoto domu mi napište, nebo je adresa zveřejněna na jiných inzertních portálech.
V případě zájmu o prohlídku mě neváhejte kontaktovat.
Energetický štítek v kategorii G.
Další parametry
- vodovod
- WAW
- WAW
- kotel na tuhá paliva, průtokový ohřívač
- VDSL
- vlak, silnice, bus
- 3 fáze
- asfaltová
- Ne
- 1
- 1
- plynovod
- veřejná kanalizace
- 168 m2
- 1
- č. 264/2020 Sb.
- 230V
- 7 m2
- 154 m2
- 261 m2
- Před rekonstrukcí
- Smíšená
- G - Mimořádně nehospodárná
Na tomto webu zpracováváme cookies potřebné pro jeho fungování a analytiku.